Wohnobjekt

Erstbezug 4.5-Zimmer-Genossenschafts-Wohnungen in Arbon in unmittelbarer Nähe zum See

CHF 1'760

 | 

96 m²

 | 

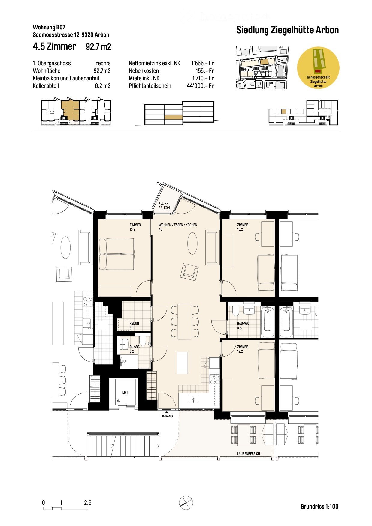
4.5 Zimmer

Seemoosstrasse, 9320 Arbon

Erstbezug 4.5-Zimmer-Genossenschafts-Wohnungen in Arbon in unmittelbarer Nähe zum See - Karte
Die Genossenschaft Ziegelhütte Arbon erstellt an der Romanshornerstrasse ihre erste Siedlung mit insgesamt 75 Wohnungen.
Die erste Bauetappe mit 45 Wohnungen ist ab September 2026 bezugsbereit. Wir vermieten Neubauwohnungen zu kostengünstigen Mieten. Für die Genossenschaftswohnungen müssen Pflichtanteilscheine gezeichnet werden.
Wir vermieten Wohnungen in unterschiedlichen Grössen von 2.5 Zi, 3.5 Zi, 4.5 Zi und 5.5 Zimmern sowie Reihenhäuser.
Auf der Webseite www.ziegelhuette-arbon.ch erfahren sie alles zu unserer Genossenschaft und den Wohnungsangeboten.
Die Siedlung Ziegehütte liegt in Seenähe mit optimaler Anbindung an den öffentlichen Verkehr, zu Fuss;
_ Postautohaltestelle 2 min
_ S-Bahnhaltestelle Seemossried in 5min
_ Schule Seegarten, Kindergarten und Taesschule 5min
_ Altstadt von Arbon 10 min
Bauweise
Die gesamte Siedlung ist im Minergie-P Standart erstellt. Die Mehrfamilienhäuser sind in Hybridbauweise (Betondecken/Aussenwände in Holzelementbau) erstellt, die Reihenhäuser als reine Holzbauten. Die Wärmeerzeugung erfolgt über Erdwärmesonden. Auf den Dachflächen wird mit PV Elementen Strom zum Eigenverbrauch produziert.
Wohnungsausstattungen
Alle Wohnungen verfügen über einen grossen Ess- und Wohnbereich, Badezimmer mit bodenebenen Duschen sowie jeweils ein Reduit welches Stauraum bietet. Private Aussenräume auf den Lauben mit Balkonschränken und zum Teil Kleinbalkone. Die Böden sind mit Eichenparkett belegt, Decken in Sichtbeton, weiss lasiert. Die Fenster bestehen aus massivem, gestrichenem Fichtenholz, die Wände aus weiss gestrichenen Variovliestapeten. Die Einbauküchen sind mit Arbeitsplatten aus Keramik versehen, ausgestattet mit Geschirrspülmaschinen und einem Backofen.
Die Wohnungen sind über das offene Treppenhaus oder den Lift erreichbar.
Gemeinschaftsangebote
Der Siedlungshof ist der zentrale Ort der Siedlung und bietet Gartenbeete und Aufenthaltsbereiche zur Mitbenutzung. Zu jedem Haus gehört eine gemeinsam nutzbare Waschküche im Keller. Im ehemaligen Pflegeheim befinden sich zahlreiche Gemeinschaftsräume sowie zumietbare Gästezimmer, Mansarden und Gewerberäume.
Parkplätze
In der Einstellhalle stehen zumietbare Parkplätze zur Verfügung. Ausrüstung mit Ladestationen für e-Autos möglich. Mietpreis Parkplatz 120.-/Mt. Motorrad = CHF 50.- /Monat. Das Velo, E-Bike oder Cargo-Bike können im Aussenraum oder in der Einstellhalle abgestellt werden
Haustiere
Haustiere müssen von der Verwaltung bewilligt werden.
Anteilscheine
MieterInnen werden gemäss den Statuten durch die Zeichnung von Pflichtanteilscheinen GenossenschafterInnen. Für die Pflichtanteilscheine sind auch Bezüge aus der Pensionskasse oder der Säule 3a möglich.
Bewerbungsverfahren
Interessierte füllen bitte das Anmeldeformular aus und senden es per Mail an;
[email protected]
Wir nehmen danach Kontakt zu Ihnen auf und laden zu einem Treffen ein. Bei einer positiven Zusage unsererseits stellen wir einen Reservationsvertrag aus. Die Anteilscheine werden mit der Unterzeichnung des Reservationsvertrages fällig.

Verfügbarkeit

Verfügbar ab:
1. September 2026

Kosten

Mietpreis:
CHF 1'760

Angaben

Objektkategorie
Miete
Objektreferenz
07728ce1-25d1-4963-9be1-159e81917e63
Adresse
Seemoosstrasse
PLZ/Ort
9320 Arbon
Region
Arbon
Wohnfläche
96 m²
Anzahl Zimmer
4.5
Etage
1
Baujahr
2026

Merkmale und Ausstattung

Haustiere erlaubt
Balkon
Lift
Garage
Schöne Aussicht
Parkplatz
Kinderfreundlich
Rollstuhlgängig
Minergie

Kontakt

Inge Abegglen
  • Inge Abegglen
  • gibt Ihnen gerne Auskunft.

Auch inseriert auf:

homegate.ch