Wohnobjekt

Erstbezug: Moderne 5.5-Zimmer-Wohnung

CHF 3'500

 | 

136 m²

 | 

5.5 Zimmer

Moosstrasse 12, 5443 Niederrohrdorf

Erstbezug: Moderne 5.5-Zimmer-Wohnung - Karte
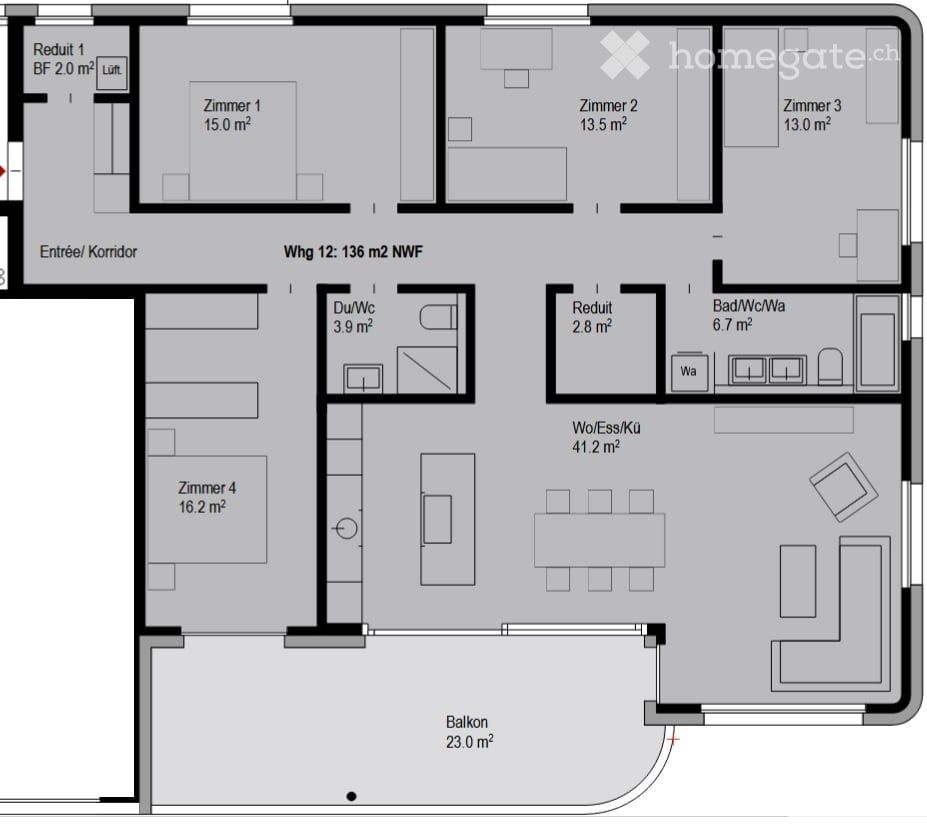
Ab frühestens 1. März 2026 (Erstbezug) vermieten wir diese exklusive 5.5-Zimmer-Neubauwohnung in einem gepflegten Mehrfamilienhaus mit sieben Wohneinheiten. Die Wohnung besticht durch eine moderne Architektur und ein durchdachtes Energiekonzept.
Ihre Highlights auf einen Blick:
Wohnkomfort pur: Eigentumsstandard mit hochwertigen Materialien. Grosszügiger Grundriss mit Eichenparkett in den Zimmern. Der Wohnbereich und die Nasszellen sind mit Keramikplatten ausgestattet.
Küche: Offene, moderne Küche mit Kochinsel, integrierter Kochfeldabsaugung und grossem Kühlschrank.
Nachhaltige Technik: Erdwärme-Heizung, Photovoltaikanlage auf dem Dach und eine kontrollierte Komfortlüftung pro Wohnung sorgen für ein erstklassiges Raumklima und tiefe Nebenkosten.
Privatsphäre & Entspannung: Grosser Balkon (23m2) für gemütliche Stunden im Freien.
Praktischer Alltag: Eigener Waschturm (Waschmaschine/Tumbler) direkt in der Wohnung sowie eine hauseigene Wasser-Entkalkungsanlage.
Barrierefrei: Bequemer Zugang mittels Lift von der Tiefgarage direkt auf die Etage.
Kellerraum: Abschliessbarer Kellerraum (8.7m2).
Parken: Zusätzlich sind zwei Parkplätze in der Tiefgarage verfügbar.
Lage & Umgebung:
Die Wohnung befindet sich in einer ruhigen Umgebung und ist dennoch bestens angebunden. In nur wenigen Gehminuten erreichen Sie das Dorfzentrum, diverse Einkaufsmöglichkeiten sowie den öffentlichen Verkehr. Familien profitieren von der unmittelbaren Nähe zum Kindergarten sowie zu den Primar- und Oberstufenschulen.
Interessiert? Gerne zeigen wir Ihnen die Wohnung bei einer persönlichen Besichtigung. Wir freuen uns auf Ihre Kontaktaufnahme!

Verfügbarkeit

Bezugstermin:
1. März 2026

Kosten

Nettomiete:
CHF 3'200
Nebenkosten:
300
Mietpreis:
CHF 3'500

Angaben

Objektkategorie
Miete
Objektreferenz
1d7340b3-c13c-4aac-b52c-802e67eeb6e9
Adresse
Moosstrasse 12
PLZ/Ort
5443 Niederrohrdorf
Region
Baden
Wohnfläche
136 m²
Anzahl Zimmer
5.5
Etage
1
Baujahr
2026

Merkmale und Ausstattung

Balkon
Lift
Garage
Schöne Aussicht
Parkplatz
Kinderfreundlich
Rollstuhlgängig

Kontakt

Auch inseriert auf:

homegate.ch