Wohnobjekt

7 ½ Zimmer-Bauernhaus in Russikon kaufen

CHF 1'850'000

 | 

235 m²

 | 

7.5 Zimmer

Unterdorf 18, 8332 Russikon

7 ½ Zimmer-Bauernhaus in Russikon kaufen - Karte
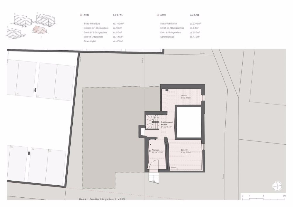
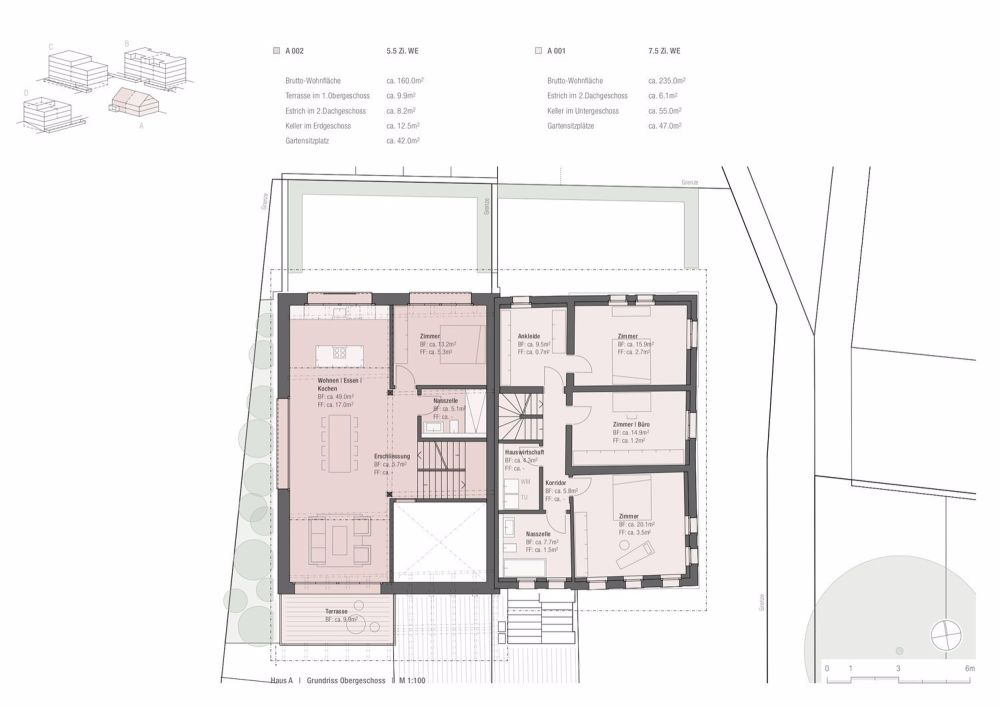
Wir freuen uns, Ihnen diese einzigartige 7.5-Zimmer-Bauernhaushälfte in einer malerischen Umgebung anbieten zu können. Das alte Bauernhaus erstreckt sich über drei Etagen und verbindet historischen Charme mit modernen Annehmlichkeiten.

Hauptmerkmale:


* Bruttowohnfläche: 235 m²
* Grundstücksfläche: 295 m²
* Zimmer: 7.5
* Nasszellen: Auf jeder der drei Etagen befindet sich eine Nasszelle
* Hauswirtschaftsraum: Praktischer Wirtschaftsraum im 2. Obergeschoss
* Keller: Naturboden im UG, ideal für Lagerung von Wein oder als rustikaler Stauraum

Highlights:
Das Bauernhaus wird kernsaniert, dabei wird grosser Wert darauf gelegt, den ursprünglichen Charakter zu bewahren, während moderne Materialien und Techniken eingesetzt werden, um den Wohnkomfort zu erhöhen. Die Kombination von historischen Elementen mit zeitgemässen Akzenten schafft eine einladende und stilvolle Atmosphäre.

Ihr neues Zuhause:
Dieses einmalige Bauernhaus vereint das Beste aus zwei Welten – historischen Flair und modernen Wohnkomfort. Lassen Sie sich von der einzigartigen Atmosphäre und den vielseitigen Nutzungsmöglichkeiten begeistern. Ob als grosszügiges Familiendomizil oder als Rückzugsort mit Charme – dieses Haus bietet Ihnen alles, was Sie sich wünschen.

Bezugstermin ist Frühling 2026.

Kontaktieren Sie uns noch heute, um einen unverbindlichen Beratungstermin zu vereinbaren!

Kosten

Kaufpreis:
CHF 1'850'000

Angaben

Objektkategorie
Eigentum
Objektreferenz
5f120858-d0ed-424c-b6a5-574dfed40724
Adresse
Unterdorf 18
PLZ/Ort
8332 Russikon
Region
Pfäffikon
Wohnfläche
235 m²
Grundstücksfläche
295 m²
Anzahl Zimmer
7.5

Merkmale und Ausstattung

Balkon
Garage
Parkplatz

Kontakt

  • BEREUTER Totalunternehmung AG
  • Bahnhofstrasse 21, 8307, Effretikon

Auch inseriert auf:

flatfox.ch