Wohnobjekt

5 ½ Zimmer-Bauernhaus in Russikon kaufen

CHF 1'590'000

 | 

160 m²

 | 

5.5 Zimmer

Unterdorf 18A, 8332 Russikon

5 ½ Zimmer-Bauernhaus in Russikon kaufen - Karte
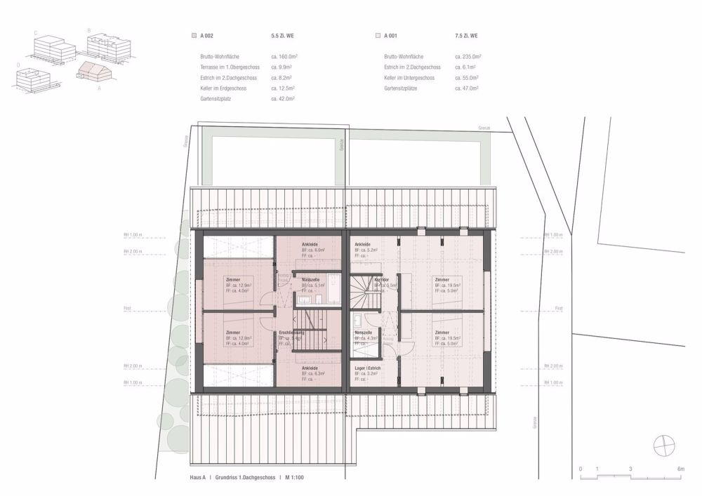
Wir freuen uns, Ihnen diese einzigartige 5.5-Zimmer-Maisonette Hausteil in einer malerischen Umgebung anbieten zu können. Das Hausteil wurde neu ausgebaut und erstreckt sich über drei Etagen und verbindet historischen Charme mit modernen Annehmlichkeiten.

Hauptmerkmale:


* Bruttowohnfläche: 160 m²
* Grundstücksfläche: 227 m²
* Zimmer: 5.5
* 2 Nasszellen
* Grosse Eingangshalle mit separater Garderobe und Galerie
* Praktischer Hauswirtschaftsraum/Keller und Bürozimmer im EG
* Grosszügiger Wohn-/Essbereich mit Küche
* 3 Schlafzimmer
* 2 Ankleidezimmer

Highlights:
Das Bauernhaus wird kernsaniert, dabei wird grosser Wert darauf gelegt, den ursprünglichen Charakter zu bewahren, während moderne Materialien und Techniken eingesetzt werden, um den Wohnkomfort zu erhöhen. Die Kombination von historischen Elementen mit zeitgemässen Akzenten schafft eine einladende und stilvolle Atmosphäre.

Ihr neues Zuhause:
Dieses einmalige Bauernhaus vereint das Beste aus zwei Welten – historischen Flair und modernen Wohnkomfort. Lassen Sie sich von der einzigartigen Atmosphäre und den vielseitigen Nutzungsmöglichkeiten begeistern. Ob als grosszügiges Familiendomizil oder als Rückzugsort mit Charme – dieses Haus bietet Ihnen alles, was Sie sich wünschen.

Bezugstermin ist Frühling 2026.

Kontaktieren Sie uns noch heute, um einen unverbindlichen Beratungstermin zu vereinbaren!

Kosten

Kaufpreis:
CHF 1'590'000

Angaben

Objektkategorie
Eigentum
Objektreferenz
012a1c00-e667-409b-a5ae-7256d61054b0
Adresse
Unterdorf 18A
PLZ/Ort
8332 Russikon
Region
Pfäffikon
Wohnfläche
160 m²
Grundstücksfläche
227 m²
Anzahl Zimmer
5.5

Merkmale und Ausstattung

Balkon
Garage
Parkplatz

Kontakt

  • BEREUTER Totalunternehmung AG
  • Bahnhofstrasse 21, 8307, Effretikon

Auch inseriert auf:

flatfox.ch