Wohnobjekt

6.5-Zimmer Eigentumswohnung im Neubauprojekt "Smiledörfli Wydum Rorbas" - Haus 2

CHF 1'299'000

 | 

170 m²

 | 

6.5 Zimmer

Weiacherstrasse 30, 8427 Rorbas

6.5-Zimmer Eigentumswohnung im Neubauprojekt "Smiledörfli Wydum Rorbas" - Haus 2 - Karte
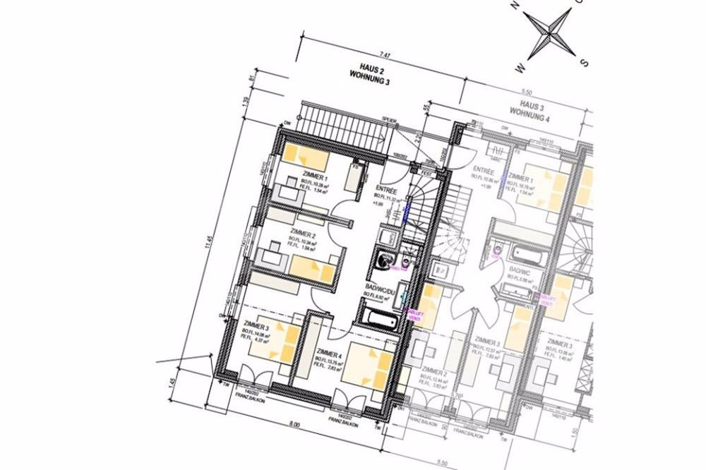
Moderne 6.5-Zi.-ETW im OG-DG mit grosser Terrasse, Kaufpreis CHF 1’299’000.00 inklusive 2 TG-PP im Haus 2. NWF 170 m² Baustart erfolgt, Bezug Winter 2024/ Frühling 2025 Projekt mit einem Einfamilienhaus, Rheineinfamilienhäusern und grosszügigen Eigentumswohnungen. - Konventionell und nachhaltig erstellt mit Doppelschalenmauerwerk, - 3-fach Verglasung usw. und einem zweckmässigen Innenausbau. - pewiHAUS als tolles und sehr erfahrenes Realisierungsteam mit der Erfahrung aus über 700 Bauten. Lassen auch Sie sich begeistern und ein Lächeln auf Ihr Gesicht zaubern! Die moderne, luxuriöse und grosszügige Überbauung „Smiledörfli Wydum“ , bauen mit einem Lächeln, befindet sich im ländlichen Dorf Rorbas, an der Weiacherstrasse 30, in einem familienfreundlichen und gut besonnten Wohnquartier. Mit seinen rund 2’900 Einwohner ist Rorbas dem Bezirk Bülach zugeordnet. Der Steuerfuss in Rorbas beträgt 103% ohne Kirchensteuer im Jahr 2022. In unmittelbarer Nähe (ca. 350 Meter) befindet sich für den täglichen Einkauf ein Volg. Ebenfalls in kurzer Distanz findet man eine Bushaltestelle, von wo aus gute Verbindungen im Halbstundentackt verkehren. Auch mit dem motorisierten Individualverkehr sind von Rorbas aus bekannte Zentren wie der Flughafen Zürich (17 Min.), Andelfingen (17 Min.), Winterthur (19 Min.) und Zürich (27 Min.) rasch erreichbar. Eine Kindertagesstätte, Schulhäuser aller Stufen (zusammen mit Freienstein-Teufen) sowie das Jugendhaus sind nur einige der zahlreichen öffentlichen Einrichtungen, die im Dorf beherbergt sind. Im Sommer lädt das tolle Schwimmbad Töss Side zum Verweilen ein. Für Wanderlustige starten vom Gemeindehaus aus einige gut markierte Wanderwege, wie die Route der Töss entlang bis zur Tössegg oder der Weg über die Römerbrücke nach Freienstein und weiter bis nach Winterthur.

Kosten

Kaufpreis:
CHF 1'299'000

Angaben

Objektkategorie
Eigentum
Objektreferenz
2d5ffce0-c76e-417e-8c51-d2c406897e0f
Adresse
Weiacherstrasse 30
PLZ/Ort
8427 Rorbas
Region
Bülach
Wohnfläche
170 m²
Anzahl Zimmer
6.5
Baujahr
2025

Merkmale und Ausstattung

Balkon
Kabelfernsehen

Kontakt

  • Stadthausstrasse 123, 8400, Winterthur
  • Nummer Anzeigen

Auch inseriert auf:

homegate.ch