Wohnobjekt

Terrassenhaus Höhewäg Rafz - Wohnung 1

CHF 1'550'000

 | 

140 m²

 | 

4.5 Zimmer

Höhewäg 12, 8197 Rafz

Terrassenhaus Höhewäg Rafz - Wohnung 1 - Karte
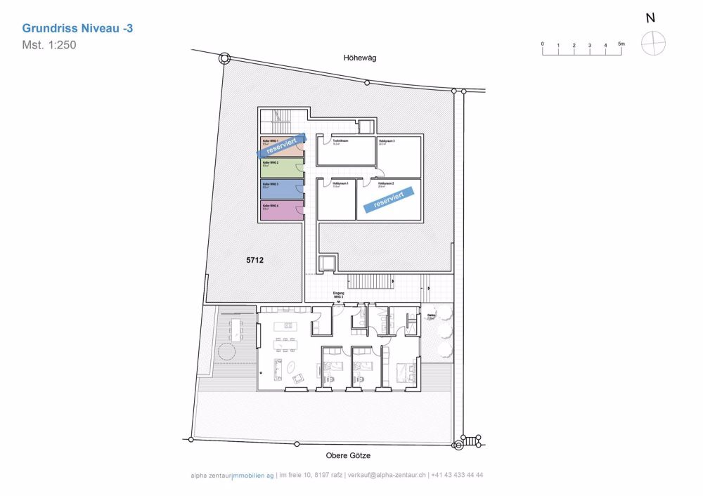
Neubauprojekt Die vier grosszügigen 4 ½-Zimmer Terrassenhäuser überzeugen durch die geradlinige moderne Architektur und einen idealen Grundriss. Zugang und Zufahrt erfolgen vom obersten Geschoss (Höhewäg) aus. Die kleine Einstellhalle bietet Platz für sechs PP. Besucher können ihr Motorfahrzeug auf dem geräumigen Vorplatz abstellen. Über Treppen oder den Lift sind alle Geschosse erreichbar. Ein Geschoss weiter unten (Niveau -1) liegt der Eingang zum obersten Terrassenhaus 1. Beim Eintreten erwartet Sie ein geräumiges Entrée mit viel Stauraum. Nach wenigen Schritten gelangen Sie in den nach Süden und Westen orientierten Wohn- /Essbereich mit grosszügiger Küche und praktischer Kochinsel. Alles ist offen und grosszügig gestaltet. Hier fällt es leicht, eine gemütliche Wohnatmosphäre zu schaffen. Durch den Wohnbereich erreichen Sie den seitlich gelagerten, gedeckten Terrassenbereich, von wo Sie die eindrückliche Aussicht über Rafz und Umgebung geniessen können. Wenden Sie sich vom Entrée nach links erreichen Sie zwei nach Süden orientierte Privaträume, sowie einen grossen Raum mit Schlafbereich, einer Ankleide und einem Bad en Suite. Von hier können Sie direkt in den seitlich angrenzenden Gartenbereich gelangen. Die Nasszelle mit Du/WC, sowie das Gäste-WC sind im hangseitigen Bereich des Terrassenhauses angeordnet. Terrassenhaus 2 auf Niveau -2 ist als Gartenwohnung konzipiert. Terrassenhaus 3 auf Niveau -3 ist analog zum Terrassenhaus 1 konzipiert und verfügt über einen gedeckten Sitzplatz und eine seitlich angeordnete Gartenfläche. Terrassenhaus 4 auf Niveau -4 ist als Gartenwohnung konzipiert. Lage Die vier Terrassenwohnungen am Hang werden am Höhewäg 12 in Rafz, in einem ruhigen Quartier an aussichtsreicher Südhanglage realisiert. Die Natur beginnt direkt vor der Haustüre und Spaziergänge führen Sie an idyllischen Rebhängen vorbei. Der Anschluss an die öffentlichen Verkehrsmittel ist gut. Die Bushaltestelle unten an der Landstrasse erreichen Sie in ca. 8 min. Minuten, um mit dem Bus rund 3 Minuten später am Bahnhof Rafz auszusteigen. Zu Fuss oder mit dem Fahrrad sind bis zum Bahnhof Rafz 1.5 Kilometer zurückzulegen. Auf dem Grundstück steht zurzeit ein älteres Wohnhaus, welches vor Baubeginn abgebrochen wird. Es entstehen vier Terrassenhäuser mit vielseitigen Nutzungsmöglichkeiten. Die Wohnungen eignen sich für Familien, Paare oder Singles, und für alle, die grosszügiges Wohnen und ein schönes Zuhause schätzen. Individuelle Grundrissgestaltung Zum jetzigen Zeitpunkt ist betreffend Grundrissgestaltung und Innenausbau noch vieles möglich. Anpassungen nach ihren persönlichen Wünschen können noch in die Planung einfliessen.

Kosten

Kaufpreis:
CHF 1'550'000

Angaben

Objektkategorie
Eigentum
Objektreferenz
8b69ded5-08e6-4243-8cd7-9064e1559ecd
Adresse
Höhewäg 12
PLZ/Ort
8197 Rafz
Region
Bülach
Wohnfläche
140 m²
Anzahl Zimmer
4.5
Baujahr
2027

Merkmale und Ausstattung

Balkon
Kabelfernsehen
Garage
Schöne Aussicht
Kinderfreundlich
Rollstuhlgängig

Kontakt

  • alpha zentaur immobilien ag
  • Im Freie 10, 8197, Rafz
  • Nummer Anzeigen

Auch inseriert auf:

homegate.ch