Wohnobjekt

Exklusive Attikawohnung mit Weitblick über Rafz

CHF 995'000

 | 

100 m²

 | 

3.5 Zimmer

Müliacker, 8197 Rafz

Exklusive Attikawohnung mit Weitblick über Rafz - Karte
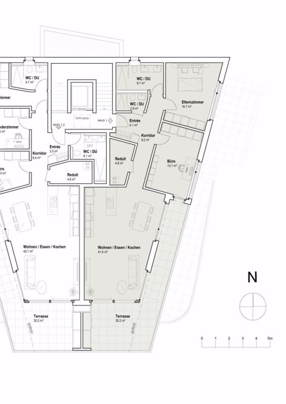
Im beschaulichen Rafz, an erhöhter, beliebter Wohnlage, entsteht das exklusive Wohnprojekt ?Müliacker? mit vier exklusiven Eigentumswohnungen. Am nördlichen Rand der Gemeinde Rafz schlängelt sich die verkehrsberuhigte Quartierstrasse zwischen den Rebhängen bis in den Wald hinauf. Das Projekt am Müliacker liegt daher ruhig und umgeben von Grün, während der Dorfkern mit Einkaufsmöglichkeiten, Bushaltestelle und dem Bahnhof zugleich zu Fuss erreichbar sind. Ein Lift erschliesst alle Wohnungen bis zum Untergeschoss mit Kellerräumen und einer hauseigenen Einstellhalle mit 7 Stellplätzen. Die 3.5-Zimmer-Attikawohnung verfügt über: 100 Quadratmeter WohnflächeEntrée mit Einbau-Garderobeheller Wohn- und Essbereich mit offener Küchegut besonnte Terrasse (süd-östlich), teilweise gedecktzwei Schlaf- oder Arbeitszimmer mit Morgensonnezwei vollwertige BadezimmerReduit mit WaschturmKellerabteil im UntergeschossMöchten Sie mehr über das Projekt "Müliacker" erfahren? Wir freuen uns auf Ihre Kontaktaufnahme: 052 635 10 22

Kosten

Kaufpreis:
CHF 995'000

Angaben

Objektkategorie
Eigentum
Objektreferenz
6713787d-6df1-4995-987c-81ce42ca0e92
Adresse
Müliacker
PLZ/Ort
8197 Rafz
Region
Bülach
Wohnfläche
100 m²
Anzahl Zimmer
3.5
Etage
1
Baujahr
2026

Merkmale und Ausstattung

Lift
Garage
Kinderfreundlich
Rollstuhlgängig

Kontakt

  • IT3 Treuhand + Immobilien AG
  • Schönmaiengässchen 1, 8200, Schaffhausen
  • Nummer Anzeigen

Auch inseriert auf:

homegate.ch