Kaufen
Mieten
Premium-Abo
FAQ
Inserieren
Anbieter
Immobilien Ratgeber
Testimonials & Referenzen
Marketing
Newsletter anmelden
Jetzt Anmelden!
Kontakt
Über uns
AGB
Kaufen
Mieten
Premium-Abo
FAQ
Inserieren
Mehr..
Anbieter
Immobilien Ratgeber
Testimonials & Referenzen
Marketing
Newsletter anmelden
Merkliste
Anmelden
Anmelden
Passwort vergessen?
Benutzername oder E-Mail-Adresse
Passwort
Angemeldet bleiben
Anmelden
Noch nicht registriert?
Kostenlos registrieren und Suchprofil erstellen
Als Immobilien-Anbieter registrieren
Mein Konto
Meine Suchprofile
Einstellungen
Premium Abonnement
Hilfebereich
Logout
Exklusiv Recherchiert
Publiziert am 31.10.2025.
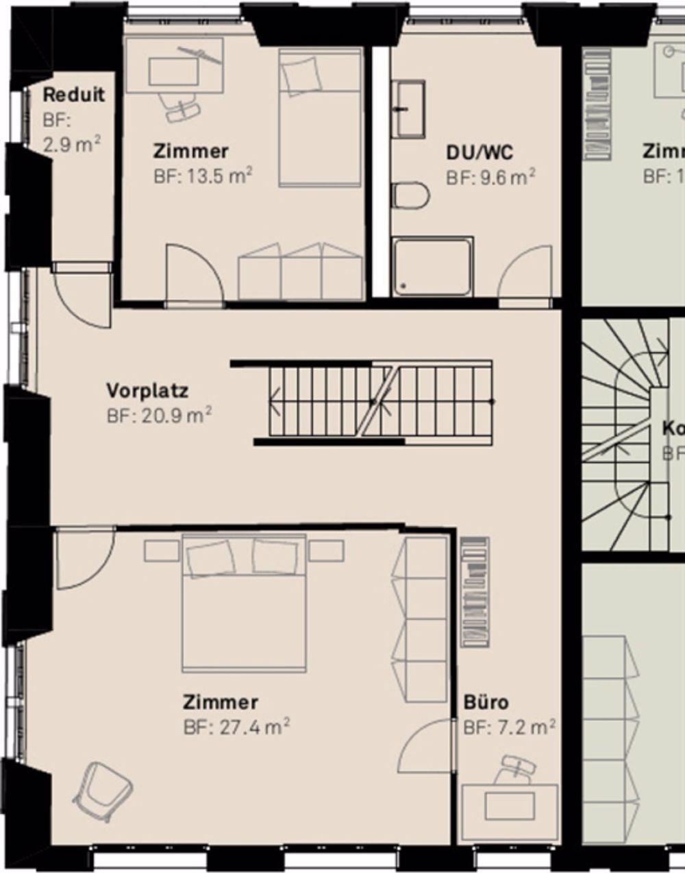
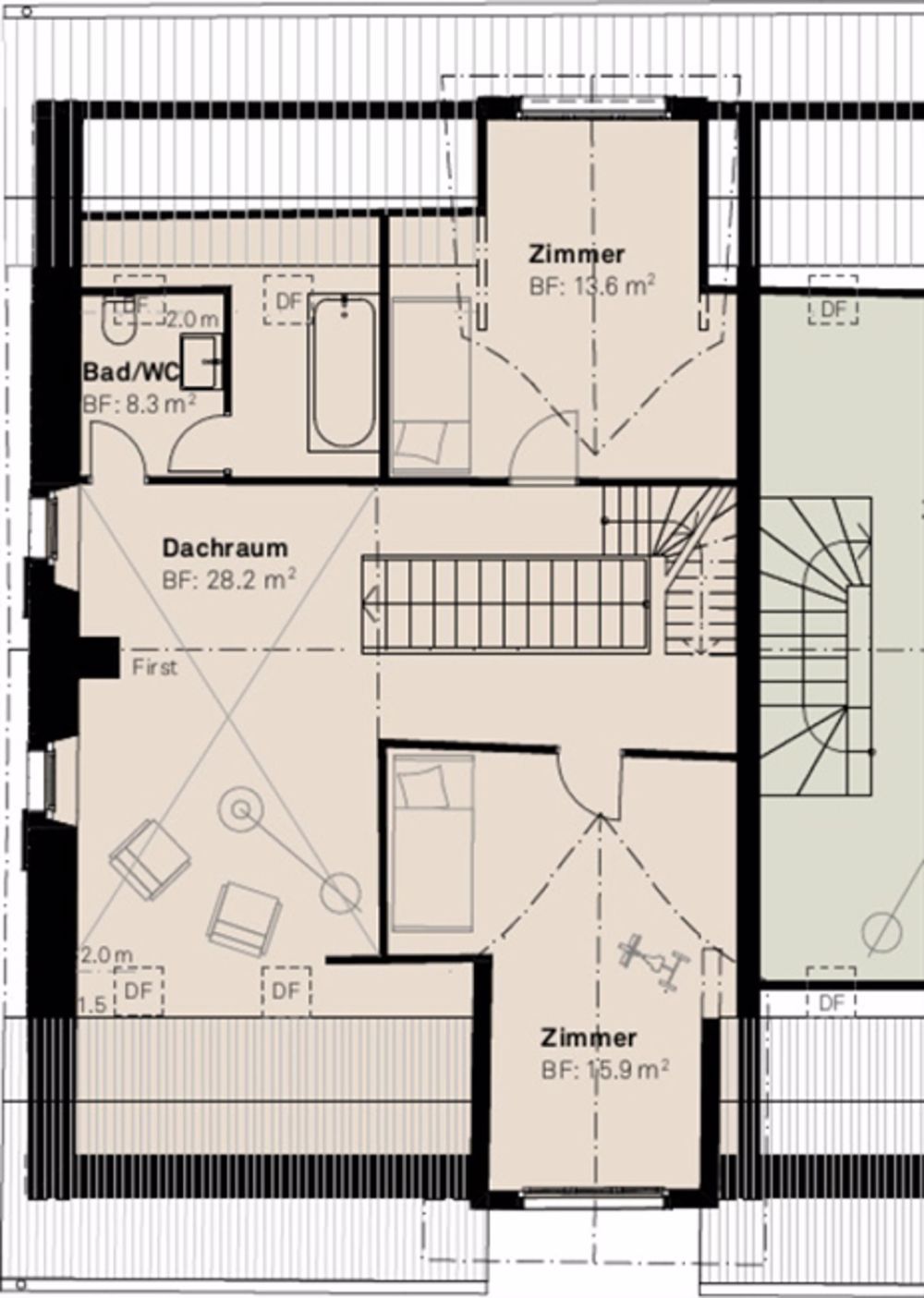
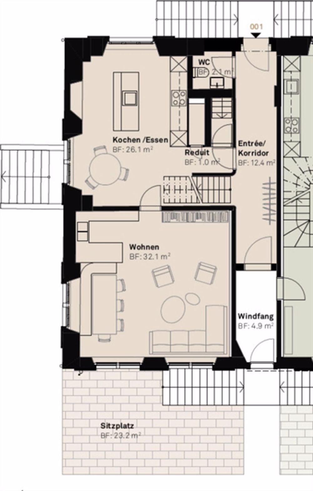
Wohnobjekt
BAUSTART IST ERFOLGT «Dorf Ottikon
CHF
1'200'000
|
4.5
Zimmer
Kontakt
Auch inseriert auf:
urbanhome.ch
Grüningerstrasse, 8626 Ottikon (Gossau ZH)
Karte anzeigen
Karte vergrössern
4.5 Zimmer Dachwohnung
Mehr Text sehen
Kosten
Kaufpreis:
CHF 1'200'000
Angaben
Objektkategorie
Eigentum
Objektreferenz
4ddaf76e-7726-4afc-96b5-379df1416796
Adresse
Grüningerstrasse
PLZ/Ort
8626
Ottikon (Gossau ZH)
Region
Hinwil
Anzahl Zimmer
4.5
Etage
3
Baujahr
2025
Merkmale und Ausstattung
Balkon
Garage
Kontakt
Auch inseriert auf:
urbanhome.ch
Ihre letzten Ansichten