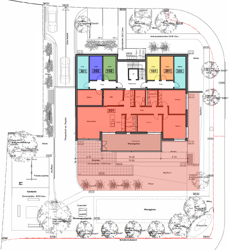
Wohnobjekt

4 ½ Zimmer-Gartenwohnung mit Wintergarten und eigenem Gartenbereich

CHF 1'390'000

 | 

131 m²

 | 

4.5 Zimmer

Gugelrebenstrasse 1a, 8912 Obfelden

4 ½ Zimmer-Gartenwohnung mit Wintergarten und eigenem Gartenbereich - Karte
Zu Hause Sein – Herzlich willkommen im ländlich gelegenen Obfelden
Obfelden verbindet ländliche Ruhe mit urbaner Nähe. Die Gemeinde im Kanton Zürich bietet attraktive Wohnlagen, Naturerlebnisse und ein familienfreundliches Umfeld. Dank guter Anbindung an die A4, der Nähe zu Zürich, Zug und dem Flughafen Zürich ist Obfelden verkehrstechnisch bestens erschlossen. Einkaufsmöglichkeiten für den täglichen Bedarf gibt es direkt im Ort.
Freuen Sie sich zudem auf diese Highlights der Gartenwohnung:
- traumhafte Gartenwohnung mit Südausrichtung
- mit Mingergie-Label zertifiziert
- grossflächiger Gartenbereich mit Sitzplatz
- lichtdurchfluteter Wintergarten
- offen gestalteter Wohn- und Essbereich
- qualitativ hochwertiger Innenausbau
- moderne Küche mit Kochinsel
- kontrollierte Wohnungslüftung
- Photovoltaikanlage auf Flachdach
- Wärmebezug mit Erdsonden und Wärmepumpe
- 2 Tiefgaragenparkplätze, Vorbereitung Wallbox vorhanden
- Nettowohnfläche 130.5 m2 (ohne Wintergarten, Hobbyraum)
- Bruttowohnfläche 173.9 m2 (mit Wintergarten, Hobbyraum)
4 ½ Zimmer-Gartenwohnung CHF 1’390'000.00 (inkl. Hobbyraum)
2 x Tiefgaragenparkplätze CHF 120'000.00
Verkaufspreis CHF 1'510'000.00
Haben wir Ihr Interesse an diesem einmaligen Wohnobjekt geweckt und wünschen Sie eine Verkaufsdokumentation oder einen Besichtigungstermin?
Bitte nehmen Sie hierfür gerne mit Frau Karin Meyer Kontakt auf.

Kosten

Kaufpreis:
CHF 1'390'000

Angaben

Objektkategorie
Eigentum
Objektreferenz
eeedcfc1-5f12-4e3f-b6d2-2ab4735a615e
Adresse
Gugelrebenstrasse 1a
PLZ/Ort
8912 Obfelden
Region
Affoltern
Wohnfläche
131 m²
Anzahl Zimmer
4.5
Etage
EG
Baujahr
2025

Merkmale und Ausstattung

Balkon
Lift
Garage
Minergie

Kontakt

Karin Meyer
  • Karin Meyer
  • axessa Finanz AG
  • gibt Ihnen gerne Auskunft.
  • Nummer Anzeigen

Auch inseriert auf:

homegate.ch