Publiziert am 31.10.2025.
CHF 1'890'000
|122 m²
|4.5 Zimmer
Limbergstrasse 16, 8700 Küsnacht ZH
 
  
 Der Weiler Limberg in der Seegemeinde Küsnacht liegt malerisch: eingebettet in Wiesen, Felder und Wald sowie von Sonne verwöhnt auf meist nebelfreier Höhe und doch nur wenige Autominuten von der Zürcher City entfernt. Hier entsteht ein Mehrfamilienhaus mit maximal zehn Eigentumswohnungen, dass eine traditionell-ländliche Architektur mit einem topmodernen Innenausbau zu einer hohen Wohnqualität vereint.
Ob Studio als praktisches Pied-à-Terre in Stadtnähe, familienfreundliches Gartendaheim mit sonnigem Sitzplatz oder grosszügige Attikawohnung unter heimeligen Dachschrägen - Sie können sich über gut geschnittene Räume, zeitgemässes Design, hochwertige Materialien und einen eigenen Aussenbereich mit wertvoller Privatsphäre freuen. Die Wohnungsgrössen von 1½ bis 5½ Zimmer sowie die Bruttowohnflächen von gut 30 m² bis über 195 m² bilden die ideale Basis für jedes Lebenskonzept. In den Wohnungen ab 3½ Zimmern geniessen Sie ausserdem den Komfort von zwei Badezimmern.
Für das Dachgeschoss bestehen zwei Grundrissoptionen: Der eine sieht den Ausbau mit einer 2½- und einer 4½-Zimmer-Wohnung vor. Beim anderen lässt sich unter dem hohen Giebel eine einzige Wohnung über die gesamte Etage mit 5½ Zimmern, drei Bädern, zwei Balkonen und direktem Liftzugang realisieren.
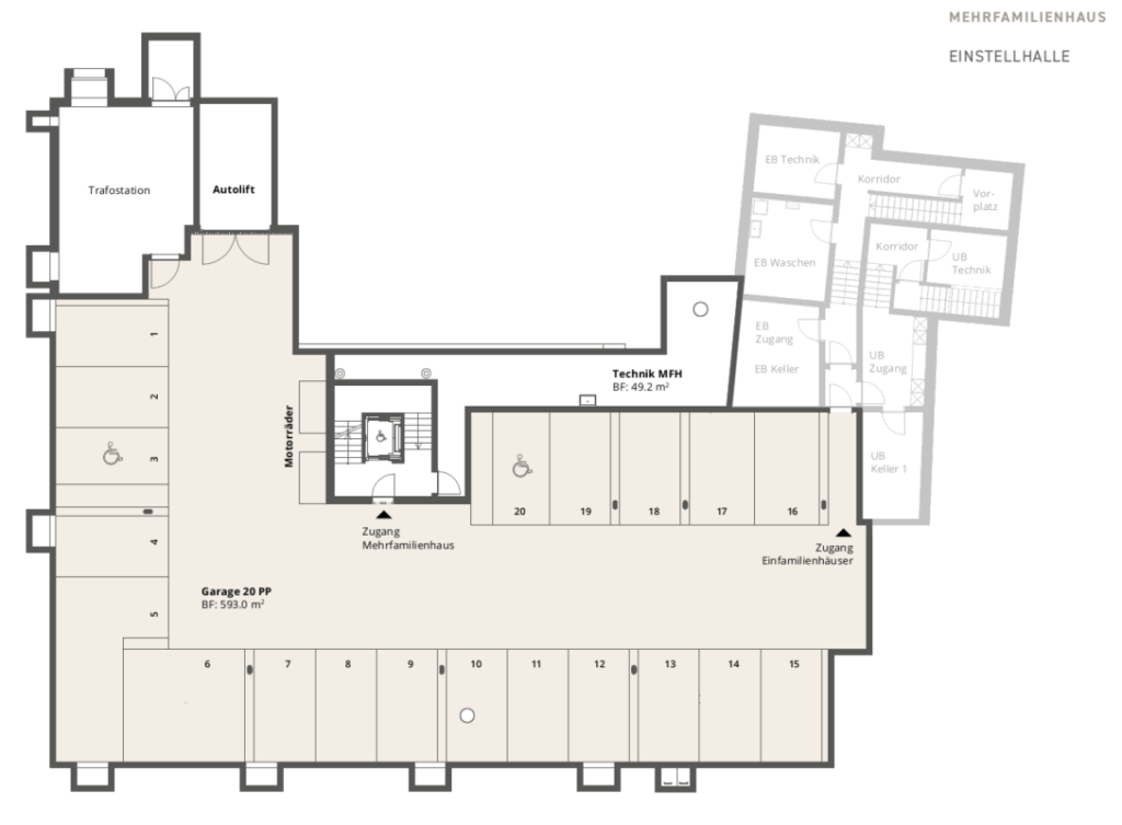
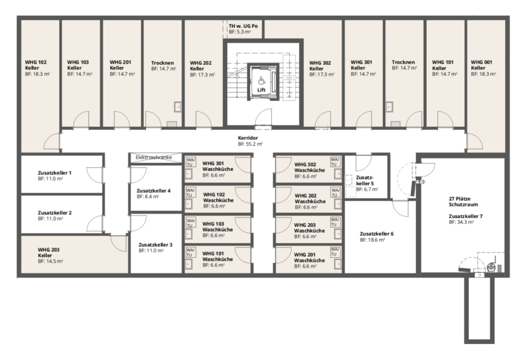
Ein rollstuhl- und kinderwagengängiger Lift verbindet schwellenlos die Etagen miteinander. Zu den Wohnungen gehören im Untergeschoss des Hauses ein geräumiger Keller sowie eine eigene Waschküche. Ausserdem stehen in der Tiefgarage mit Autolift ausreichend Stellplätze für Autos und Motorräder zur Verfügung.
Entdecken Sie einmalige Wohnqualität in ländlichem, stadtnahem Umfeld - wir stellen Ihnen die Neubauwohnungen in Limberg und Ihr Mitgestaltungspotenzial gerne persönlich vor.