Wohnobjekt

BAUSTART IST ERFOLGT! Hohe Wohnqualität: Neubauwohnungen in Natur-, See- und Stadtnähe

CHF 1'150'000

 | 

66 m²

 | 

2.5 Zimmer

Limbergstrasse, 8700 Küsnacht ZH

BAUSTART IST ERFOLGT! Hohe Wohnqualität: Neubauwohnungen in Natur-, See- und Stadtnähe - Karte
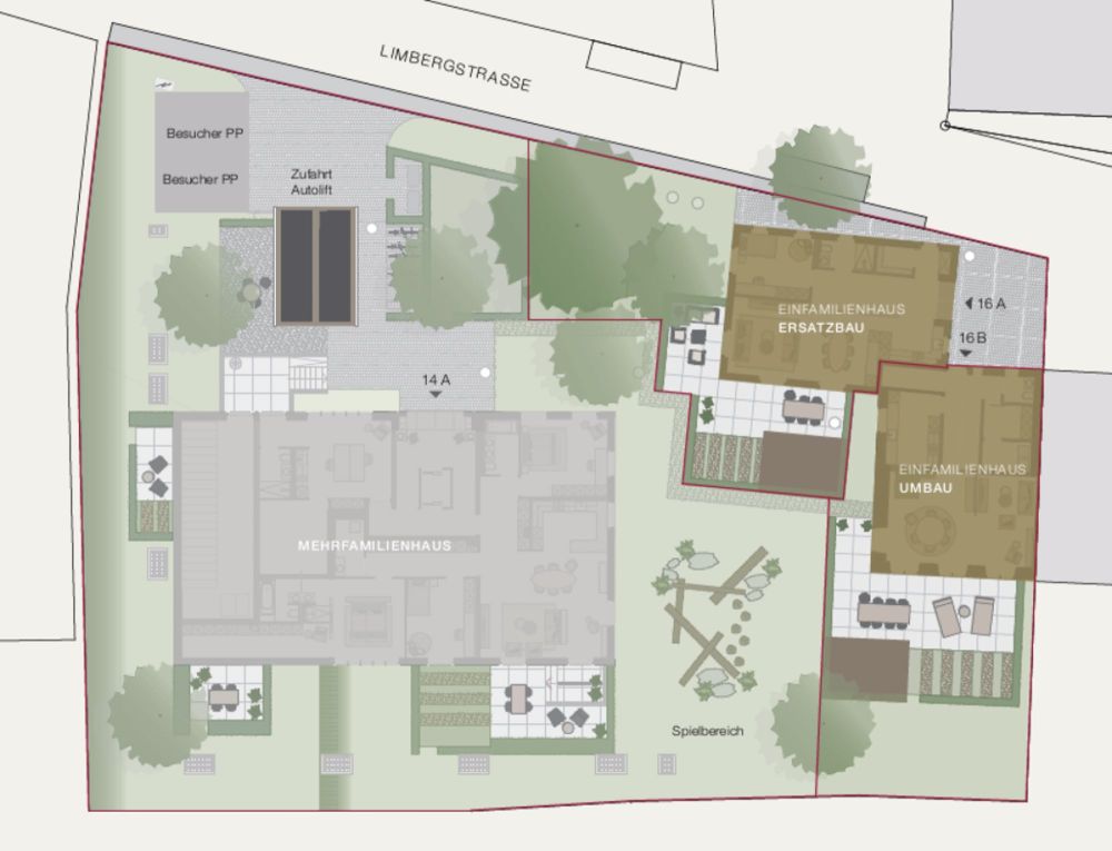
Der Weiler Limberg in der Seegemeinde Küsnacht liegt malerisch: eingebettet in Wiesen, Felder und Wald sowie von Sonne verwöhnt auf meist nebelfreier Höhe und doch nur wenige Autominuten von der Zürcher City entfernt. Hier entsteht ein Mehrfamilienhaus mit maximal zehn Eigentumswohnungen, dass eine traditionell-ländliche Architektur mit einem topmodernen Innenausbau zu einer hohen Wohnqualität vereint.
Ob Studio als praktisches Pied-à-Terre in Stadtnähe, familienfreundliches Gartendaheim mit sonnigem Sitzplatz oder grosszügige Attikawohnung unter heimeligen Dachschrägen - Sie können sich über gut geschnittene Räume, zeitgemässes Design, hochwertige Materialien und einen eigenen Aussenbereich mit wertvoller Privatsphäre freuen. Die Wohnungsgrössen von 1½ bis 5½ Zimmer sowie die Bruttowohnflächen von gut 30 m² bis über 195 m² bilden die ideale Basis für jedes Lebenskonzept. In den Wohnungen ab 3½ Zimmern geniessen Sie ausserdem den Komfort von zwei Badezimmern.
Für das Dachgeschoss bestehen zwei Grundrissoptionen: Der eine sieht den Ausbau mit einer 2½- und einer 4½-Zimmer-Wohnung vor. Beim anderen lässt sich unter dem hohen Giebel eine einzige Wohnung über die gesamte Etage mit 5½ Zimmern, drei Bädern, zwei Balkonen und direktem Liftzugang realisieren.
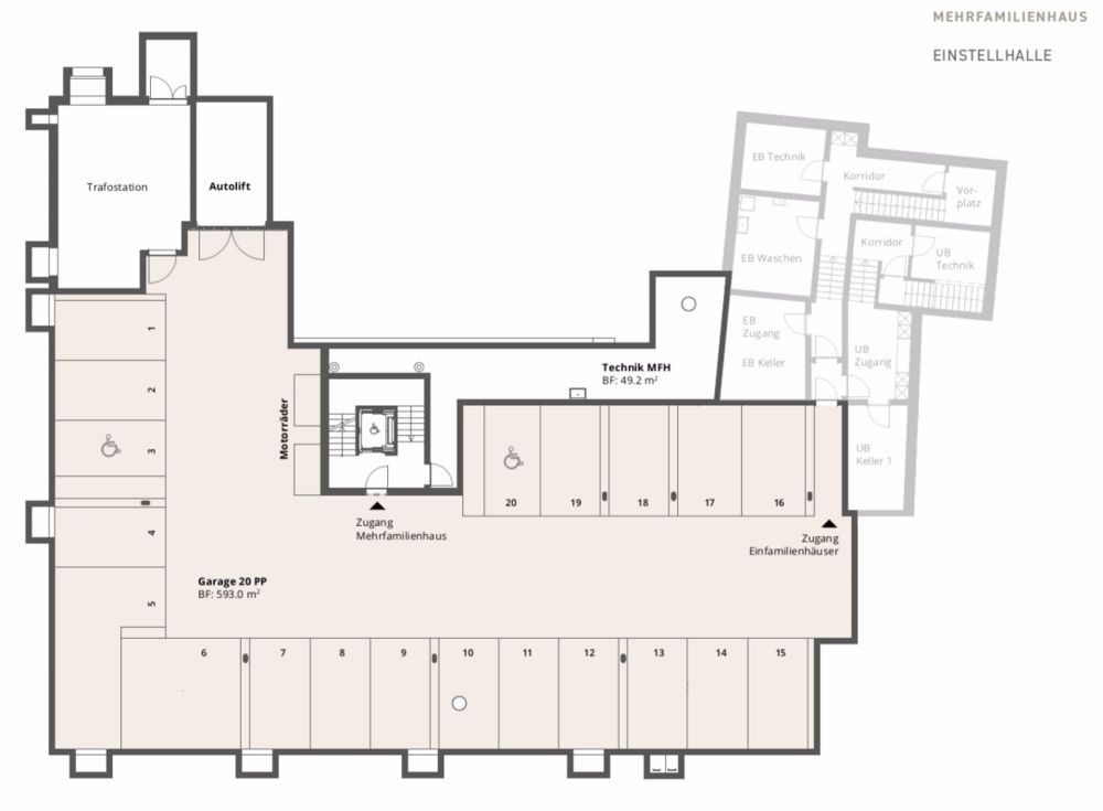
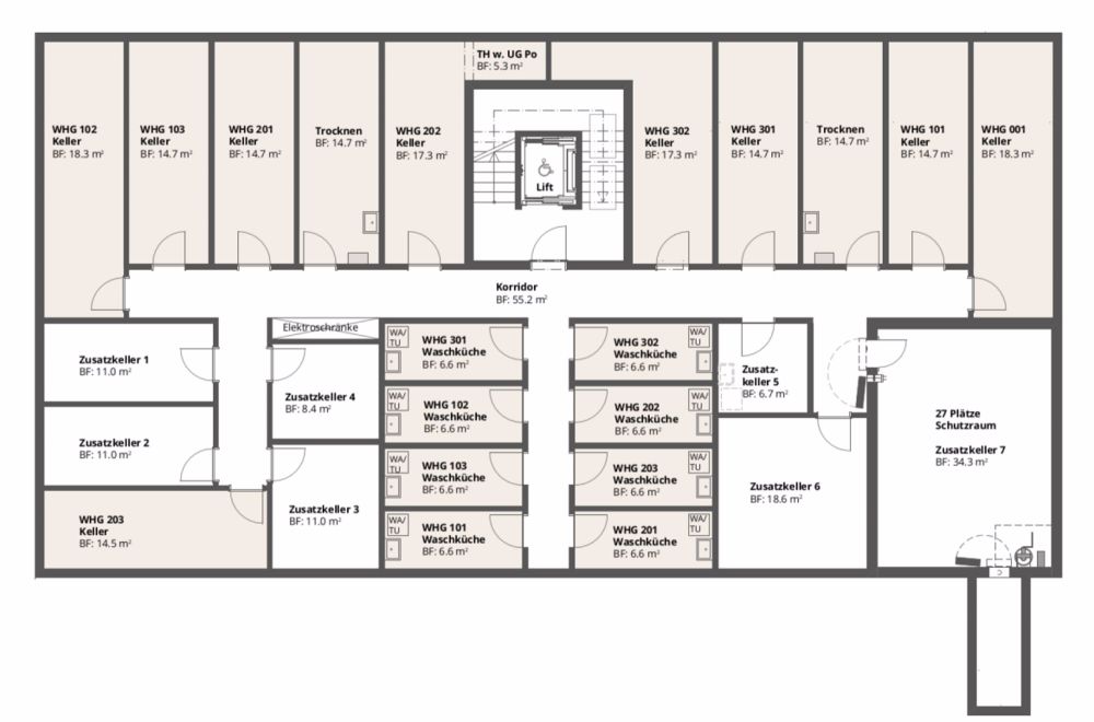
Ein rollstuhl- und kinderwagengängiger Lift verbindet schwellenlos die Etagen miteinander. Zu den Wohnungen gehören im Untergeschoss des Hauses ein geräumiger Keller sowie eine eigene Waschküche. Ausserdem stehen in der Tiefgarage mit Autolift ausreichend Stellplätze für Autos und Motorräder zur Verfügung.
Entdecken Sie einmalige Wohnqualität in ländlichem, stadtnahem Umfeld - wir stellen Ihnen die Neubauwohnungen in Limberg und Ihr Mitgestaltungspotenzial gerne persönlich vor.

Kosten

Kaufpreis:
CHF 1'150'000

Angaben

Objektkategorie
Eigentum
Objektreferenz
6d5a29c5-76f6-4ffc-bc6f-f7bf3ed5ab21
Adresse
Limbergstrasse
PLZ/Ort
8700 Küsnacht ZH
Region
Meilen
Wohnfläche
66 m²
Anzahl Zimmer
2.5
Etage
1
Baujahr
2025

Kontakt

  • art-im IMMOBILIEN AG
  • Florastrasse 18A, 8610, Uster
  • Nummer Anzeigen

Auch inseriert auf:

immoscout24.ch