Wohnobjekt

GROSSE 3 1/2-ZIMMER WOHNUNG, PARTIELLE SEESICHT, SONNIG, RUHIG, MITTEN IM DORF

CHF 1'490'000

 | 

102 m²

 | 

3.5 Zimmer

Blattenstrasse 7, 8634 Hombrechtikon

GROSSE 3 1/2-ZIMMER WOHNUNG, PARTIELLE SEESICHT, SONNIG, RUHIG, MITTEN IM DORF - Karte
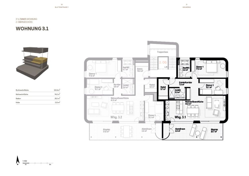
An ruhiger, sonniger und dorfzentraler Aussichtslage, lediglich 50 Meter von der nächsten Einkaufsmöglichkeit entfernt, entsteht energieeffizienter und moderner Wohnraum. Die grosszügige Obergeschosswohnung 3.1 zeichnet sich aus durch:
101.2 m2 Bruttowohnfläche
Sicht auf die Berge, teilweise Seesicht
25.7 m2 gedeckter Balkon mit 2.6 m2 grossem Abstellraum
offenes Wohnen/Essen/Kochen
Reduit in der Wohnung
2 Badezimmer, eines davon "en suite" im Elternzimmer
13.3 m2 grosser Kellerraum
Bezug Winter 2026/2027
Eine Wärmepumpe mit Erdsonden versorgt das Gebäude mit Wärme. Dabei liefert die Photovoltaik Anlage Energie für das Heizsystem und den Boiler. Dreifach-Isolierverglasungen und und eine solide Gebäudedämmung minimieren den Energieverlust.
Erfüllen Sie sich Ihren Wohntraum in grosszügigen lichtdurchfluteten und gut möblierbaren Räumen - ganz nach Ihrem Geschmack. Die Ihnen zur Verfügung stehenden Budgets ermöglichen Ihnen einen hochwertigen Innenausbau mit Annehmlichkeiten wie edlem Eichen-Parkettboden, grosszügiger Küche mit viel Arbeitsfläche, begehbaren Duschen oder elektrischen Lamellenstoren.
Erleben Sie das Wohnraumgefühl in 3D und klicken Sie auf den virtuellen Rundgang der Wohnung 3.2 im Inserat.
Haben wir Ihr Interesse geweckt? Gerne senden wir Ihnen auf Anfrage die Verkaufsdokumentation zu.
Ein Projekt der immoARTE AG, Stäfa

Kosten

Kaufpreis:
CHF 1'490'000

Angaben

Objektkategorie
Eigentum
Objektreferenz
03ce2eca-e109-403f-880d-350fc4f06840
Adresse
Blattenstrasse 7
PLZ/Ort
8634 Hombrechtikon
Region
Meilen
Wohnfläche
102 m²
Anzahl Zimmer
3.5
Etage
2
Baujahr
2027

Merkmale und Ausstattung

Balkon
Lift
Garage
Schöne Aussicht
Parkplatz
Kinderfreundlich

Kontakt

  • Habitus Immobilien GmbH
  • Dorfstrasse 2, 8712, Stäfa
  • Nummer Anzeigen

Auch inseriert auf:

homegate.ch