Wohnobjekt

Jenseits des Gewöhnlichen: komfortables Neubauwohnen mitten in Gossau

CHF 1'750'000

 | 

117 m²

 | 

4.5 Zimmer

Chapfstrasse 8, 8625 Gossau ZH

Jenseits des Gewöhnlichen: komfortables Neubauwohnen mitten in Gossau - Karte

Gossau im Zürcher Oberland verbindet Beschaulichkeit mit Komfort im Alltag: Einkauf, Gastronomie, Kindergarten, Schule, Freibad und die Natur zwischen Greifen- und Pfäffikersee - alles ist in bequemer Nähe. Dazu kommt die gute Verkehrsanbindung an wichtige Zentren wie Wetzikon, Uster, Rapperswil-Jona und natürlich an Zürich.

Mitten im Ort - in einem lebendigen, grünen Umfeld - entsteht Ihr zukünftiges Zuhause. Der Neubau ist charaktervoll, folgt keinen starren Formen und schafft damit ein Maximum an Wohnqualität für unterschiedliche Lebensentwürfe und -phasen. Sieben Eigentumswohnungen bieten 2½ bis 4½ Zimmer auf grosszügigen Grundrissen mit eigenständigen Raumlayouts. Als Variante lässt sich im gesamten Erdgeschoss eine 5½-Zimmer-Familienwohnung mit über 169 m² realisieren.

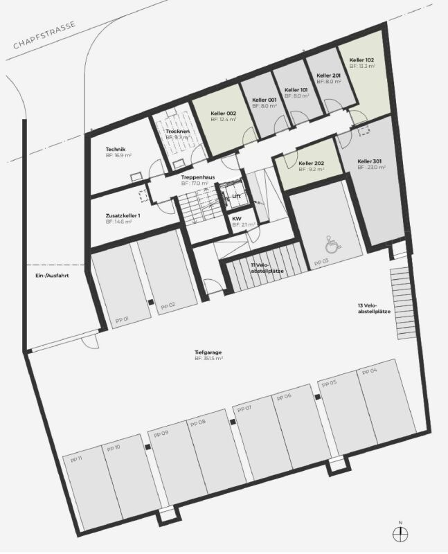
Das Erd- und die beiden Obergeschosse profitieren von nach Süden ausgerichteten Gartensitzplätzen und Balkonen, die Attikawohnung verfügt gleich über drei Sonnenterrassen. Ausbau und Ausstattung sind hochwertig und können abhängig von der Bauetappe nach eigenen Wünschen mitgestaltet werden. Für Nachhaltigkeit sorgen eine Wärmepumpe und die Photovoltaikanlage auf dem Flachdach. Ein Lift verbindet alle Etagen mit dem Untergeschoss, wo zu jeder Wohnung ein Keller gehört, sowie mit der Tiefgarage mit ausreichend Stellplätzen für Autos und Zweiräder. Spiel und Begegnung werden auf der gemeinschaftlich genutzten Gartenfläche zum verbindenden Erlebnis.

Chapfstrasse 8 in Gossau - das ist überzeugend komfortables Wohngefühl jenseits des Gewöhnlichen.

Verfügbarkeit

Nach Vereinbarung

Kosten

Kaufpreis:
CHF 1'750'000

Angaben

Objektkategorie
Eigentum
Status
Verfügbar
Objektreferenz
0073_4.5_301
Adresse
Chapfstrasse 8
PLZ/Ort
8625 Gossau ZH
Region
Hinwil
Wohnfläche
117 m²
Anzahl Zimmer
4.5 Zi
Etage
4
Baujahr
2026
Objekttyp
Attikawohnung

Merkmale und Ausstattung

Haustiere erlaubt
Kabelfernsehen
Ladestation
Lift
Parkplatz
Kinderfreundlich
Sonnig
Partner-Netzwerk

Kontakt

art-im Immobilien AG
Gino Ponsillo
  • Gino Ponsillo
  • art-im IMMOBILIEN AG
  • gibt Ihnen gerne Auskunft.
  • Nummer Anzeigen

  • Einer von mehr als 80 Premium-Partnern
  • Projekte schon in der Vorvermarktung auf Neubauprojekte.ch
  • Garantierte Antwort
Anbieter kontaktieren
Anbieter kontaktieren