Publiziert am 31.10.2025.
CHF 790'000
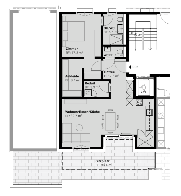
|74 m²
|2.5 Zimmer
Grüningerstrasse 181, 8625 Gossau ZH
 
  
 Als kleine Wacht der Gemeinde Gossau im Zürcher Oberland liegt Ottikon ruhig und eingebettet in die Natur. Hier geniesst man Landleben mit Stadtanschluss. Der Bus fährt in zehn Minuten nach Wetzikon, auf der Forchautobahn dauert die Fahrt mit dem Privatwagen nach Uster kurze zwölf Minuten, nach Zürich nur rund zwanzig Minuten.
Im gewachsenen, gepflegten Dorf entsteht ein einzigartiges Ensemble, das Freiraum für individuelle Lebensformen mit herzlicher Nachbarschaft verbindet: Das bestehende Haupthaus schaut bereits auf eine über 200-jährige Geschichte zurück. Eine Hälfte davon wird zu zwei Hausteilen mit 4½ und 6½ Zimmern auf mehreren Etagen umgebaut - topmodern, aber mit historischem Charme. Die zweite Gebäudehälfte weicht einem Ersatzbau, der drei Wohnungen mit je 3½ Zimmern beherbergt. Vervollständigt wird das Trio durch einen Neubau mit sechs Eigentumswohnungen von 2½ bis 4½ Zimmern.
Umbau, Ersatzbau und Neubau haben ihren eigenen Charakter und Stil, dennoch passen sie perfekt zusammen und ins Ortsbild. Eine hochwertige Massivbauweise, grosszügige Grundrisse, moderner Wohnkomfort sowie ein erstklassiger Ausbau prägen sowohl die beiden Hausteile wie auch die Eigentumswohnungen. Jede Einheit profitiert dank Gartensitzplatz, Loggia oder Balkon von einem privaten Aussenbereich; ein geschützter Gemeinschaftsplatz mit Pergola und Hochbeeten lädt zu Begegnung und Spiel. Die Tiefgarage, die im Ersatz- und Neubau per Lift zu erreichen ist, bietet ausreichend Stellplätze. Zum schonenden Umgang mit Ressourcen sind für das Ensemble eine Photovoltaik-Anlage, eine Erdsonden-Wärmepumpe sowie ein Last- und Lademanagementsystem für E-Mobilität geplant.
Schenken Sie Ihrem Leben neuen Raum - wir beraten Sie gerne zu Ihren Wohnoptionen in «Ottikon Dorf».