Kaufen
Mieten
Premium-Abo
FAQ
Inserieren
Anbieter
Immobilien Ratgeber
Testimonials & Referenzen
Marketing
Newsletter anmelden
Jetzt Anmelden!
Kontakt
Über uns
AGB
Kaufen
Mieten
Premium-Abo
FAQ
Inserieren
Mehr..
Anbieter
Immobilien Ratgeber
Testimonials & Referenzen
Marketing
Newsletter anmelden
Merkliste
Anmelden
Anmelden
Passwort vergessen?
Benutzername oder E-Mail-Adresse
Passwort
Angemeldet bleiben
Anmelden
Noch nicht registriert?
Kostenlos registrieren und Suchprofil erstellen
Als Immobilien-Anbieter registrieren
Mein Konto
Meine Suchprofile
Einstellungen
Premium Abonnement
Hilfebereich
Logout
Exklusiv Recherchiert
Publiziert am 17.11.2025.
Wohnobjekt
BAUSTART IST ERFOLGT! «Dorf Ottikon
CHF
790'000
|
2.5
Zimmer
Kontakt
Auch inseriert auf:
urbanhome.ch
Grüningerstrasse, 8625 Gossau ZH
Karte anzeigen
Karte vergrössern
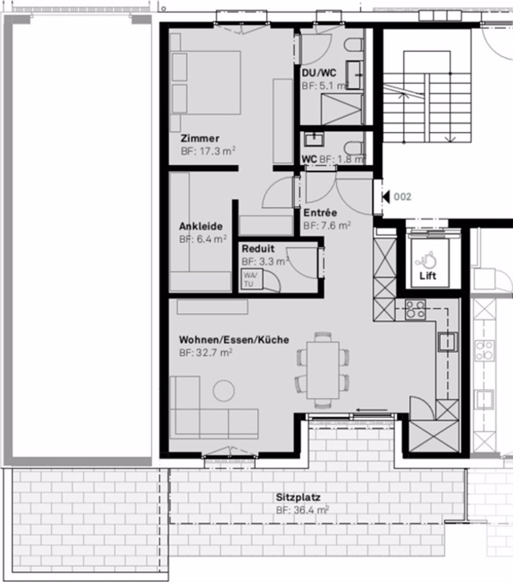
2.5 Zimmer Wohnung
Mehr Text sehen
Kosten
Kaufpreis:
CHF 790'000
Angaben
Objektkategorie
Eigentum
Objektreferenz
5cda656d-1022-4523-8a4e-bee685efca8a
Adresse
Grüningerstrasse
PLZ/Ort
8625
Gossau ZH
Region
Hinwil
Anzahl Zimmer
2.5
Etage
3
Baujahr
2025
Merkmale und Ausstattung
Balkon
Garage
Kontakt
Auch inseriert auf:
urbanhome.ch
Ihre letzten Ansichten