Wohnobjekt

Herausragende 3-Zimmer Neubauwohnung in Bubikon

keine Preisangabe

 | 

100 m²

 | 

3 Zimmer

8608 Bubikon

Herausragende 3-Zimmer Neubauwohnung in Bubikon - Karte
Dieses Haus wurde von einem Star Architekten entwickelt und lässt keine Wünsche offen.
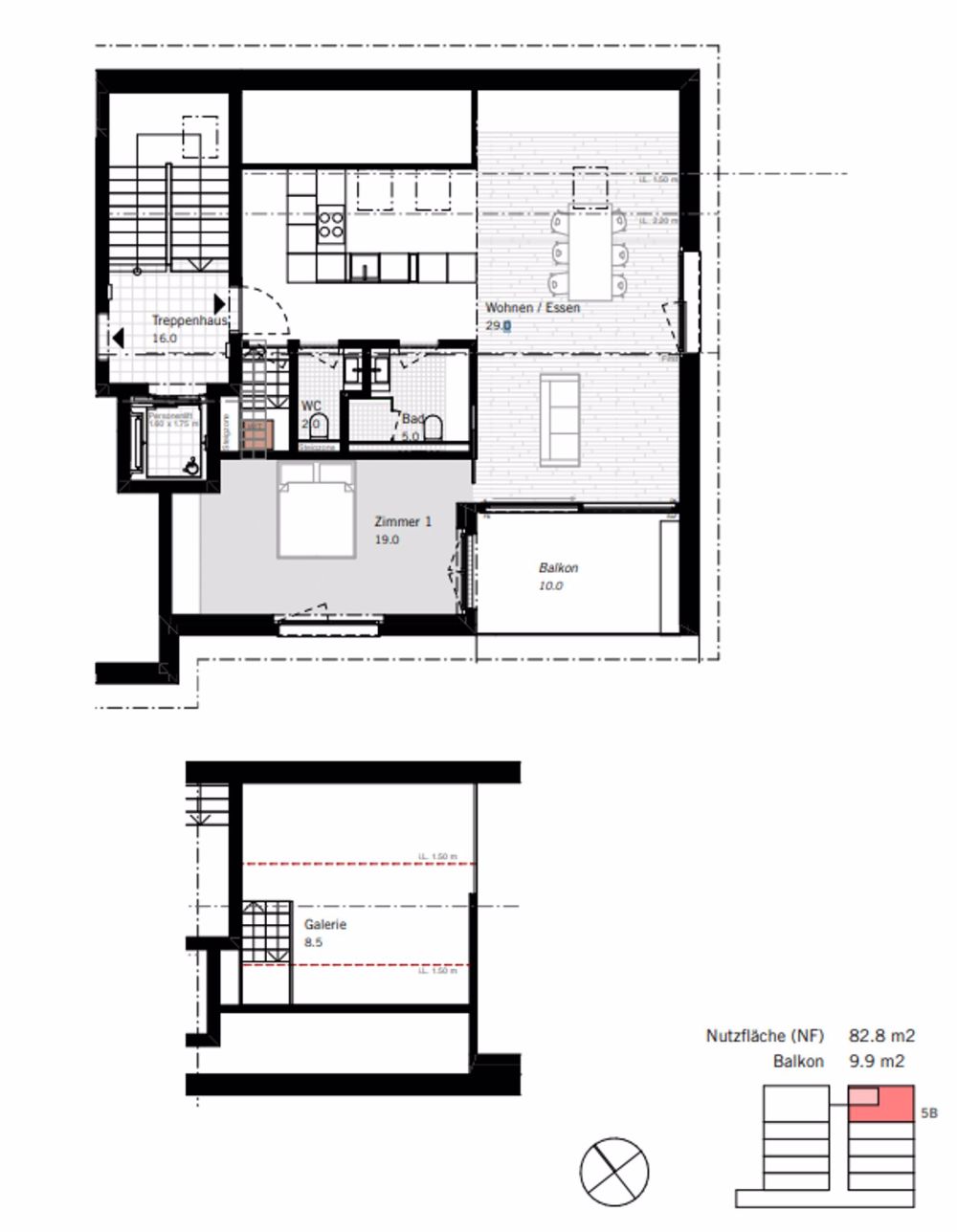
Die moderne 3-Zimmer-Wohnung begeistert mit einem lichtdurchfluteten Wohnzimmer und einer nagelneuen, offenen Küche. Zwei Schlafzimmer und ein Badezimmer bieten ausreichend Platz für Komfort. Der Keller und der Lift sorgen für praktische Annehmlichkeiten. In unmittelbarer Nähe finden Sie Einkaufsmöglichkeiten, Restaurants, Cafés, Bars, hervorragende Verkehrsanbindungen und vieles mehr.


Das Objekt wird im Jahr 2025 erbaut und präsentiert sich in einem exzellenten Zustand. Der moderne, sonnige und ruhige Charakter der Immobilie schafft eine einladende Atmosphäre. Der Ausbaustandard ist hochwertig und zeitgemäss. Die Fussbodenheizung sorgt für behagliche Wärme in den Räumen. Dank der Solaranlage auf dem Dach werden die Nebenkosten automatisch tiefgehalten.


Dieses properti Angebot zeichnet sich aus durch:
Verfügt über Ladestation für E-Fahrzeuge und E-FahrräderRollstuhlzugänglichSonniger Balkon für gemütliche StundenModerner AusbaustandardSolaranlage auf dem DachNahe gelegene Einkaufs- und Freizeitmöglichkeiten (Bahnhof, Volg, Restaurant etc.)Ruhige Lage mit guter VerkehrsanbindungLift für bequemen ZugangFussbodenheizung für angenehmes Wohnklima1 Parkplatz in der TiefgarageFree Cooling System im HausBau 2025 / Bezug 2026Interessiert? Kontaktieren Sie uns für ein unverbindliches Gespräch!


Selbst eine Immobilie zu vermarkten? Wir überzeugen mit fairen und transparenten Konditionen!

Kosten

Kaufpreis:
keine Preisangabe

Angaben

Objektkategorie
Eigentum
Objektreferenz
e64e1eba-3df0-49aa-8b43-9aa4edbf3115
PLZ/Ort
8608 Bubikon
Region
Hinwil
Wohnfläche
100 m²
Anzahl Zimmer
3
Etage
5
Baujahr
2025

Merkmale und Ausstattung

Haustiere erlaubt
Lift
Rollstuhlgängig

Kontakt

  • Properti AG
  • Flurstrasse 62, 8048, Zürich
  • Nummer Anzeigen

Auch inseriert auf:

homegate.ch