Wohnobjekt

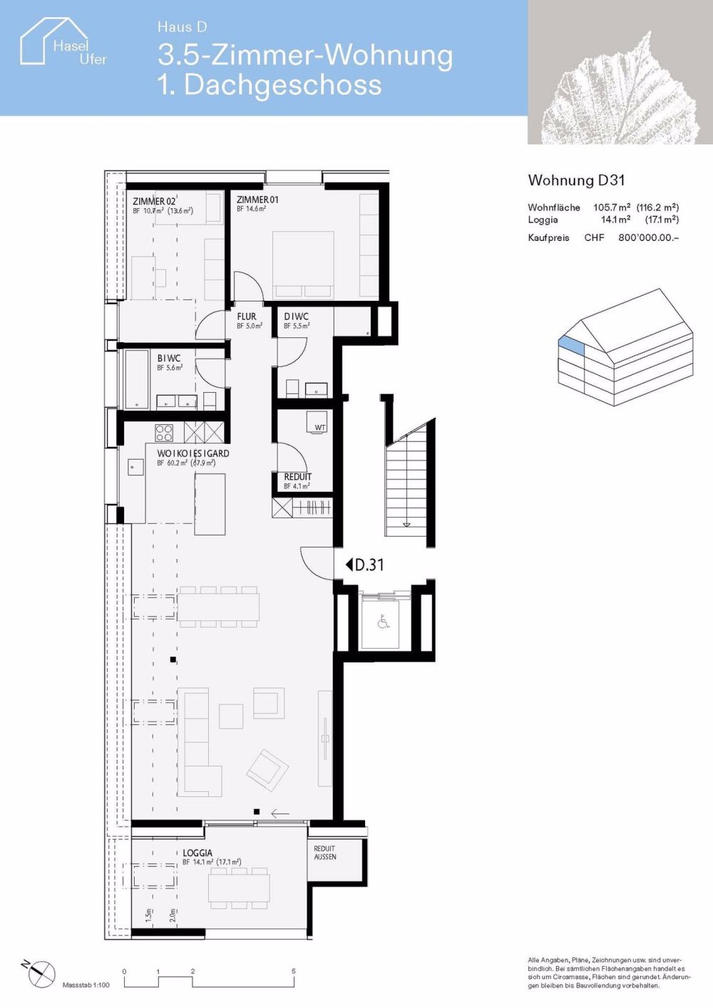
www.hasel-ufer.ch Wohnung D31

keine Preisangabe

 | 

105 m²

 | 

3.5 Zimmer

Haselhalden, 8494 Bauma

www.hasel-ufer.ch   Wohnung D31 - Karte
Grosszügiges Wohnen, verbunden mit hohem ästhetischem Anspruch in ruhiger, naturnaher Umgebung. Das verspricht die Eigentumswohnung in der neuen Überbauung „HaselUfer“.
Wenn Sie interessiert sind, können Sie uns gerne Ihre Koordinaten mitteilen. Bitte verwenden Sie hierzu das Kontaktformular oder bewerben Sie sich über unsere Webseite www.hasel-ufer.ch (siehe Link).
Die geplante Überbauung liegt direkt am Ufer der Töss, unmittelbar neben dem Schulhaus Haselhalde. Die neuen, optimal nach Südwesten ausgerichteten Mehrfamilienhäuser sind eingebettet in ein ruhiges Wohnquartier, welches künftig von einer harmonisch gestalteten Gartenanlage durchzogen sein wird. Hier, auf einem leicht zur Töss geneigtem Gelände, erleben Sie Wohnkomfort auf hohem Standard und dem wohltuenden Gefühl „zu Hause" zu sein.
Wohnen am Wasser
optimal besonnte, helle Wohnungen
unverbaubare Aussicht zu den umliegenden Hügeln
grosse Balkone mit Aussenreduit
Minergie-Standard
alternative Energieerzeugung und Photovoltaik-Anlage
nachhaltige Bauweise
hinterlüftete, vorpatinierte Holzfassade
regelbare, kontrollierte Wohnungslüftung
Parkplätze und Velostellplätze in Tiefgarage
Elektromobilität
Umgebungsgestaltung mit viel Grünflächen, Sträuchern und Bäumen
Zögern Sie nicht, mit uns Kontakt aufzunehmen.

Kosten

Kaufpreis:
keine Preisangabe

Angaben

Objektkategorie
Eigentum
Objektreferenz
0e47c288-e09a-464b-9b49-39e8057a6fb0
Adresse
Haselhalden
PLZ/Ort
8494 Bauma
Region
Pfäffikon
Wohnfläche
105 m²
Anzahl Zimmer
3.5
Etage
3
Baujahr
2027

Merkmale und Ausstattung

Balkon
Kabelfernsehen
Lift
Garage
Schöne Aussicht
Parkplatz
Kinderfreundlich
Rollstuhlgängig
Minergie

Kontakt

Claudia Motalli
  • Claudia Motalli
  • Novaron Architekten AG
  • gibt Ihnen gerne Auskunft.
  • Nummer Anzeigen

Auch inseriert auf:

homegate.ch