Wohnobjekt

Appartement neuf de 3,5 pièces en hauteur privilégiée

CHF 679'000

 | 

121 m²

 | 

3.5 Zimmer

3930 Visp

Appartement neuf de 3,5 pièces en hauteur privilégiée - Karte
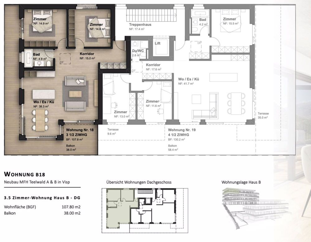
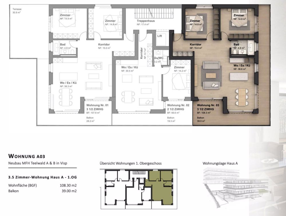
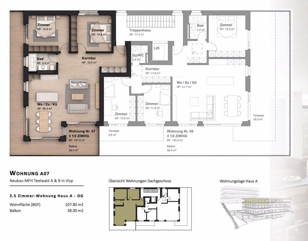
Les 4 appartements neufs de 3.5 pièces restants au premier, deuxième et troisième étage à Visp offrent un confort de vie moderne dans l'un des plus beaux endroits de la région. Ils sont prêts à emménager et peuvent être visités. Chaque unité séduit par ses matériaux de haute qualité et une disposition bien pensée qui crée une ambiance lumineuse et ouverte. De grandes baies vitrées laissent entrer beaucoup de lumière naturelle et offrent des vues impressionnantes sur les montagnes environnantes et la nature. Les équipements sont de haut standing : cuisines élégantes avec des appareils modernes, salles de bains raffinées avec des surfaces nobles, et de grands balcons ou terrasses qui invitent à la détente. Le chauffage au sol et une construction éco-énergétique assurent un climat intérieur agréable et des coûts d'exploitation réduits. Les appartements de Teelwald sont parfaits pour les familles, les couples ou les personnes seules qui apprécient une combinaison de confort urbain et de qualité de vie proche de la nature. En outre, le bâtiment propose des équipements modernes tels que des places de parking souterraines, des espaces de rangement et un ascenseur offrant un accès sans obstacle à tous les étages. L'emplacement est calme tout en étant bien relié, avec des écoles, des commerces et des installations de loisirs à proximité immédiate. Programme des pièces : Entrée avec espace pour vestiaireChambre d'enfantsChambre des parentsWC/Salle de bainsCuisine entièrement équipéeGrand salon et salle à mangerTerrasse de 30 m²Balcon de 28 m²Cave Particularités : Des garages individuels ou des places de stationnement peuvent être achetés en supplémentUn local à vélos et une buanderie/séchoir sont à la disposition de tous.Il est possible d'installer une machine à laver le linge dans le placard intégré. Emplacement: La charmante petite ville de Viège offre une qualité de vie exceptionnelle grâce à un mélange impressionnant de nature alpine et d'infrastructures urbaines. Entourée de montagnes majestueuses, Viège est un point de départ idéal pour les activités de plein air, qu'il s'agisse de randonnées, de ski ou de promenades relaxantes dans l'air pur de la montagne. Le centre-ville de Viège séduit par son offre animée de cafés, de restaurants, de boutiques et une vie culturelle riche. Grâce à d'excellentes connexions de transport, y compris une gare moderne avec des liaisons directes vers Berne, Zurich et l'Italie, Viège est une résidence attrayante pour les navetteurs et les amoureux de la nature. Avec de nombreuses écoles, installations sportives et services de santé, Viège est parfait pour les familles et les personnes actives. De plus, la région se distingue par une dynamique économique, marquée par l'industrie et l'innovation, qui en fait un lieu de vie et de travail tourné vers l'avenir. Viège est l'endroit idéal pour profiter d'un équilibre entre un environnement naturel et un style de vie moderne. Vous souhaitez obtenir plus d'informations ou le dossier complet? Contactez-moi [email protected] et je me ferai un plaisir de vous aider. Je me tiens également à votre disposition pour une visite sur place. Die verbleibenden vier 3.5 Zimmer Neubauwohnungen im ersten, zweiten und dritten Stock in Visp bieten modernen Wohnkomfort in einer der schönsten Lagen der Region. Sie sind einzugsbereit und können besichtigt werden. Jede Einheit besticht durch hochwertige Materialien und eine durchdachte Raumaufteilung, die für ein helles und offenes Wohngefühl sorgt. Große Fensterfronten lassen viel Tageslicht einströmen und eröffnen beeindruckende Ausblicke...

Verfügbarkeit

Ab Sofort

Kosten

Kaufpreis:
CHF 679'000

Angaben

Objektkategorie
Eigentum
Objektreferenz
79fcda9b-9570-49bb-b906-d07fc31ff32c
PLZ/Ort
3930 Visp
Region
Visp
Wohnfläche
121 m²
Anzahl Zimmer
3.5
Etage
1
Baujahr
2024

Merkmale und Ausstattung

Balkon
Lift
Garage
Kinderfreundlich
Rollstuhlgängig

Kontakt

  • Valimmobilier SA
  • Avenue de la Gare 39, 1964, Conthey
  • Nummer Anzeigen

Auch inseriert auf:

homegate.ch