Kaufen
Mieten
Premium-Abo
FAQ
Inserieren
Anbieter
Immobilien Ratgeber
Testimonials & Referenzen
Marketing
Newsletter anmelden
Jetzt Anmelden!
Kontakt
Über uns
AGB
Kaufen
Mieten
Premium-Abo
FAQ
Inserieren
Mehr..
Anbieter
Immobilien Ratgeber
Testimonials & Referenzen
Marketing
Newsletter anmelden
Merkliste
Anmelden
Anmelden
Passwort vergessen?
Benutzername oder E-Mail-Adresse
Passwort
Angemeldet bleiben
Anmelden
Noch nicht registriert?
Kostenlos registrieren und Suchprofil erstellen
Als Immobilien-Anbieter registrieren
Mein Konto
Meine Suchprofile
Einstellungen
Premium Abonnement
Hilfebereich
Logout
Exklusiv Recherchiert
Publiziert am 24.10.2025.
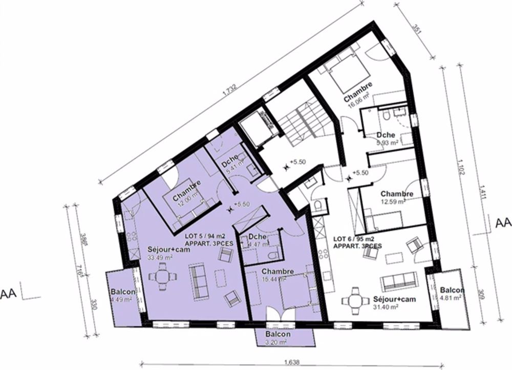
Wohnobjekt
OPEN CONSTRUCTION - Neue Promotion auf Sächsisch
CHF
545'000
|
3.5
Zimmer
Kontakt
Auch inseriert auf:
urbanhome.ch
1907 Saxon
Karte anzeigen
Karte vergrössern
Mehr Text sehen
Kosten
Kaufpreis:
CHF 545'000
Angaben
Objektkategorie
Eigentum
Objektreferenz
f0882343-42ca-428e-81a6-863e26ef38ec
PLZ/Ort
1907
Saxon
Region
Martigny
Anzahl Zimmer
3.5
Etage
4
Baujahr
2026
Merkmale und Ausstattung
Lift
Kontakt
Auch inseriert auf:
urbanhome.ch
Ihre letzten Ansichten