Wohnobjekt

BAUSTELLE GEÖFFNET - Neue Promotion in Saxon

CHF 562'000

 | 

69 m²

 | 

3.5 Zimmer

1907 Saxon

BAUSTELLE GEÖFFNET - Neue Promotion in Saxon - Karte
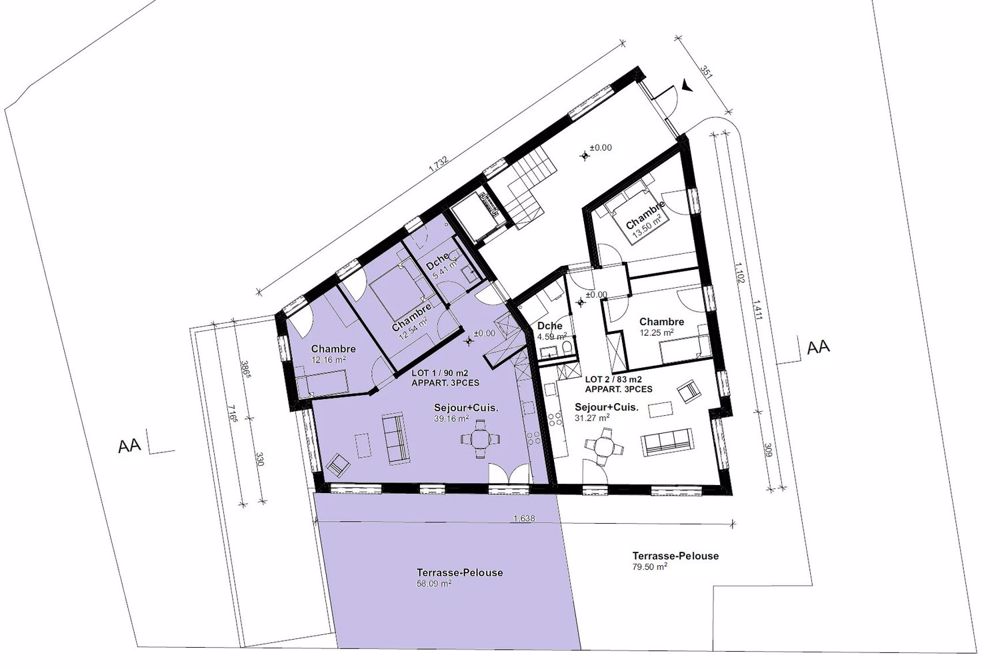
Omnia Immobilier Valais hat die Freude, Ihnen diese neue Promotion von 10 Apartments vorzustellen, die von 2,5 bis 4,5 Zimmer reichen und für den Sommer 2026 auf einem 1'100m2 großen Grundstück geplant sind. Sie liegt in einem ruhigen Wohnviertel der ruhigen Gemeinde Saxon, in der Nähe aller Annehmlichkeiten, Schulen, öffentlicher Verkehrsmittel, die nur 10 Minuten zu Fuß entfernt sind, und Autobahnanbindungen, die in 3 Minuten erreichbar sind. Verpassen Sie nicht die Gelegenheit, ein vollständig personalisierbares Apartment zu erwerben. Träumen Sie von einem Objekt, das Ihrem Bild entspricht? Das ist möglich, alle Ausführungen sind nach Wunsch des Käufers. Ideal für eine erste Anschaffung oder als Investition. Sie profitieren von großzügigen Räumen, optimaler Besonnung dank der schönen Ausrichtung und einem sehr schönen Blick auf die umliegenden Berge. Die Kombination aus Komfort und Modernität bietet Ihnen ein wunderschönes Lebensumfeld! Die Wohnung Nr. 1 besteht aus: - Eingang mit Garderobe - Geräumiges Wohnzimmer mit etwa 39m2, mit direktem Zugang zur Terrasse und zum Garten, insgesamt etwa 58m2, und einer modernen, voll ausgestatteten offenen Küche - 2 große Schlafzimmer mit etwa 12 und 13m2 - Badezimmer mit Waschbecken, Dusche und WC Parkplätze ergänzen diese Apartments zusätzlich zum Preis. 1 Außenparkplatz CHF 15'000.- zusätzlich und obligatorisch Innenparkplatz CHF 30'000.- zusätzlich und optional Ob Sie eine Hauptwohnung oder eine Immobilieninvestition suchen, diese Promotion bietet eine seltene Gelegenheit in Saxon. Fertigstellung Anfang Sommer 2026. Für weitere Informationen: Anne SAUNIER OMNIA Immobilier Martigny [email protected] +41 78 718 02 26

Kosten

Kaufpreis:
CHF 562'000

Angaben

Objektkategorie
Eigentum
Objektreferenz
63f28ef4-4114-4fd2-aa80-21b3e6f2f767
PLZ/Ort
1907 Saxon
Region
Martigny
Wohnfläche
69 m²
Anzahl Zimmer
3.5
Etage
EG
Baujahr
2026

Merkmale und Ausstattung

Lift
Schöne Aussicht
Rollstuhlgängig

Kontakt

  • Avenue de la Gare 45, 1920, Martigny
  • Nummer Anzeigen

Auch inseriert auf:

homegate.ch