Wohnobjekt

Magnifique appartement 3.5 pièces neuf à Savièse

CHF 730'000

 | 

95 m²

 | 

3.5 Zimmer

Chemin des Chênes 10, 1965 Savièse

Magnifique appartement 3.5 pièces neuf à Savièse - Karte
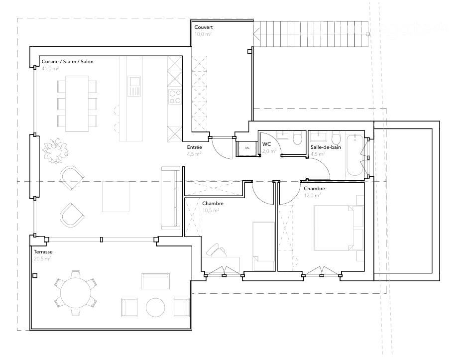
Nous vous proposons un magnifique appartement 3,5 pces attique, vendu sur plan, bénéficiant de finitions haut de gamme et d’une vue panoramique exceptionnelle sur la plaine et les montagnes environnantes. Ce bien est situé sur la commune ensoleillée de Savièse (VS).
Cet appartement offre une distribution idéale avec une partie nuit composée de deux chambres orientées plein Sud, dont une suite, ainsi qu’une partie jour lumineuse comprenant un agréable séjour et une cuisine ouverte donnant accès à une superbe terrasse de 20 m². La terrasse panoramique offre un cadre magnifique, permettant de profiter pleinement du paysage, de l’air pur des montagnes et des belles soirées d’été.
Distribution
Partie nuit
Hall d’entrée
2 chambres dont 1 chambre en suite
Salle de douche/WC
Partie jour
Beau séjour avec salon, coin repas/bar et cuisine ouverte entièrement équipée
WC visiteurs
Accès à la terrasse de 20 m²
Divers
Finitions de haute qualité
Architecture soignée, parfaitement intégrée au paysage
Pompe à chaleur et installations modernes
Chauffage au sol pour un confort optimal
Environnement calme avec vue panoramique tout en restant proche des commodités. La livraison est prévue pour le printemps 2027, garantissant des installations modernes et une construction respectueuse de l’environnement.
L’appartement dispose d’un couvert pour un véhicule (CHF 25’000.-) ainsi qu’une place extérieure (CHF 15’000.-), en sus du prix de vente affiché.
Un descriptif de construction détaillé est disponible sur demande.
Savièse
La commune de Savièse se situe sur un plateau ensoleillé au nord de Sion (rive droite). Elle bénéficie d’un climat agréable tout au long de l’année. Sion se trouve à seulement 5 à 10 minutes en voiture.
À moins de 30 minutes, vous rejoignez plusieurs domaines skiables majeurs tels que Les 4 Vallées, Crans-Montana ou Anzère
Contact visite : Johan Luyet | 079 752 88 04

Verfügbarkeit

Bezugstermin:
27. März 2026

Kosten

Kaufpreis:
CHF 730'000

Angaben

Objektkategorie
Eigentum
Objektreferenz
fc0ed855-c3e4-4cdf-80a5-70873fc703d8
Adresse
Chemin des Chênes 10
PLZ/Ort
1965 Savièse
Region
District de Sion
Wohnfläche
95 m²
Anzahl Zimmer
3.5
Etage
3
Baujahr
2026

Merkmale und Ausstattung

Balkon
Garage
Schöne Aussicht
Parkplatz
Kinderfreundlich
Minergie

Kontakt

Johan Luyet
  • Johan Luyet
  • gibt Ihnen gerne Auskunft.
  • Nummer Anzeigen

Auch inseriert auf:

homegate.ch