Wohnobjekt

Glacier view bei der Skipiste, hotelmässig bewirtschaftete Zweitwohnung.

CHF 1'395'000

 | 

114 m²

 | 

4.5 Zimmer

Dorfstrasse 26A, 3906 Saas-Fee

Glacier view bei der Skipiste, hotelmässig bewirtschaftete Zweitwohnung. - Karte
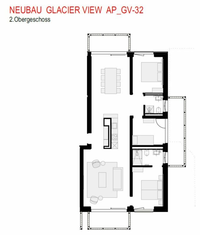
Glacier View neue 4.5 Zimmerwohnung mit Hotelservice und Mietverplichtung Sehr gediegene 4.5 Zimmerwohnung im 2. Stock bestehend aus: 3 Schlafzimmer, 2 Nasszellen, Living mit Süd-und Nordsicht, 3 Balkone, süd, ost und nord. Voll möbliert, bereit für eine professionelle Vermietung ab dem 1.Tag. Ein Premiumangebot das seinem Namen gerecht wird.

Verfügbarkeit

Bezugstermin:
1. Dezember 2026

Kosten

Kaufpreis:
CHF 1'395'000

Angaben

Objektkategorie
Eigentum
Objektreferenz
38757b71-e376-425d-889d-ff6b7216f781
Adresse
Dorfstrasse 26A
PLZ/Ort
3906 Saas-Fee
Region
Visp
Wohnfläche
114 m²
Grundstücksfläche
1051 m²
Anzahl Zimmer
4.5
Etage
1
Baujahr
2026

Merkmale und Ausstattung

Balkon
Kinderfreundlich

Kontakt

Tobias Zurbriggen
  • Tobias Zurbriggen
  • Saas Property AG
  • gibt Ihnen gerne Auskunft.
  • Nummer Anzeigen

Auch inseriert auf:

homegate.ch