Wohnobjekt

Einfamilienhaus-Projekt in Geimen sonnig, modern, einzigartig

keine Preisangabe

 | 

194 m²

 | 

4.5 Zimmer

3904 Naters

Einfamilienhaus-Projekt in Geimen  sonnig, modern, einzigartig - Karte
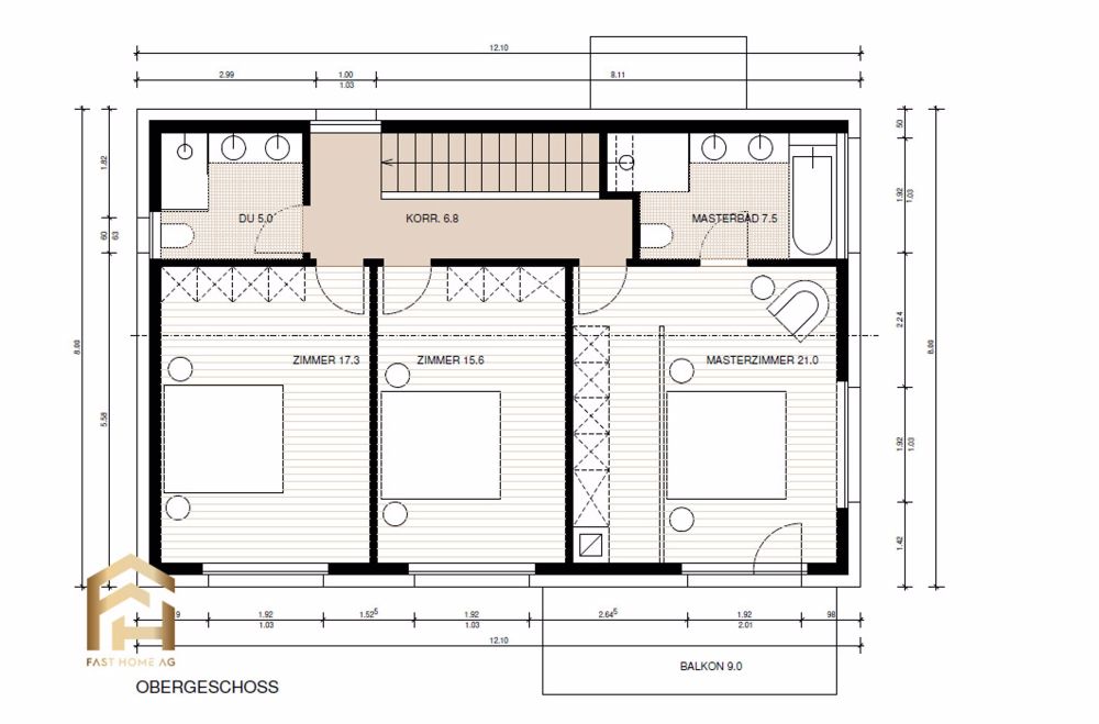
Willkommen im idyllischen Weiler Geimen, eingebettet zwischen Naters und Blatten. Hier geniessen Sie sonnige Tage, atemberaubende Aussichten und die perfekte Balance zwischen Ruhe und Nähe zu wichtigen Infrastrukturen. Nur wenige Fahrminuten entfernt erwarten Sie die Talgemeinden Naters, Brig und Visp mit Einkaufsmöglichkeiten, Schulen und Kulturangeboten. Das nahe Blatten-Belalp lockt im Winter mit top präparierten Skipisten und im Sommer mit abwechslungsreichen Wanderwegen ein Paradies für Sportbegeisterte und Naturliebhaber. Auch Ausflugsziele wie die Thermen von Brigerbad, der Aletsch-Spa in Naters oder die Loipen im Goms sind schnell erreichbar. Das zum Verkauf stehende Einfamilienhaus ist als Neubau-Projekt geplant. Die Baupläne liegen vor, die Genehmigungen sind eingeholt und die Bodenplatte ist bereits erstellt. Geplant ist ein charmantes 4.5-Zimmer-Chalet, das als Erst- oder Zweitwohnsitz erworben werden kann. Beim weiteren Bau haben Sie als Käufer Mitspracherecht und können die Materialisierung nach Ihren Wünschen gestalten. Der Grundriss überzeugt mit einer klaren Aufteilung: Im Erdgeschoss befindet sich der lichtdurchflutete Wohn-, Ess- und Küchenbereich, geprägt von grossen Fensterfronten aus Lärchenholz, die für Helligkeit und eine gemütliche Atmosphäre sorgen. Ergänzt wird diese Etage durch ein separates Tages-WC, einen Technikraum sowie ein Kellerabteil. Im Obergeschoss liegen drei Schlafzimmer, darunter das Elternzimmer mit eigenem Bad. Ein weiteres Badezimmer steht ebenfalls zur Verfügung. Vom Balkon geniessen Sie den herrlichen Ausblick und können entspannte Sonnenstunden verbringen. Zum Haus gehört ein Aussenparkplatz, der den Komfort abrundet. Dieses Projekt bietet Ihnen die Möglichkeit, Ihre Wohnträume in einer einmaligen Lage zu verwirklichen. Ob als fester Wohnsitz oder als Feriendomizil hier erwartet Sie ein Zuhause, in dem Sie den Alltag hinter sich lassen können. Haben wir Ihr Interesse geweckt? Gerne geben wir Ihnen weitere Informationen und begleiten Sie auf dem Weg zu Ihrem neuen Eigenheim in Geimen.Naters ist eine Gemeinde im Oberwallis und eines der geografischen Zentren dieser Region. Es ist eine der größten Gemeinden im Wallis und hat eine reiche Geschichte, die eng mit der Entwicklung des Wallis verbunden ist. Das Dorfzentrum von Naters ist wunderschön und hat einen charmanten alten Kern, der einen Einblick in die Geschichte der Region gibt. Naters hat den Status einer Kleinstadt und zieht Besucher mit seinem einladenden Charme an. Die Gemeinde liegt am Fuße des Skigebiets Belalp und bietet eine beeindruckende Landschaft mit viel Sonnenschein und hoher Schneesicherheit. Mit über 87 Pistenkilometern und einer Höhe von 3.118 Metern über dem Meeresspiegel ist Naters ein Paradies für Wintersportbegeisterte. Neben den zahlreichen Sport- und Freizeitmöglichkeiten bietet Naters auch ein vielfältiges Angebot an Kunst und Kultur. Besucher können lokale Kunstwerke bewundern oder an kulturellen Veranstaltungen teilnehmen, die das reiche kulturelle Erbe der Region widerspiegeln. Naters ist eine Gemeinde, die für alle offen ist, unabhängig von ihrer Größe. Sowohl große als auch kleine Besucher werden sich hier wohl und willkommen fühlen. Die Gemeinde bietet eine einzigartige Kombination aus Naturschönheit, sportlichen Aktivitäten, kulturellen Erfahrungen und herzlicher Gastfreundschaft.

Kosten

Kaufpreis:
keine Preisangabe

Angaben

Objektkategorie
Eigentum
Objektreferenz
e0b020cb-732e-4930-b1fe-daf371f663f5
PLZ/Ort
3904 Naters
Region
Brig
Wohnfläche
194 m²
Anzahl Zimmer
4.5
Baujahr
2025

Merkmale und Ausstattung

Haustiere erlaubt
Balkon
Schöne Aussicht
Parkplatz
Kinderfreundlich
Minergie

Kontakt

Xaver Imhof
  • Xaver Imhof
  • Fast Home AG
  • gibt Ihnen gerne Auskunft.
  • Nummer Anzeigen

Auch inseriert auf:

homegate.ch