Wohnobjekt

Neues Bauprojekt Les Giettes

CHF 811'000

 | 

150 m²

 | 

5.5 Zimmer

1870 Monthey

Neues Bauprojekt Les Giettes - Karte
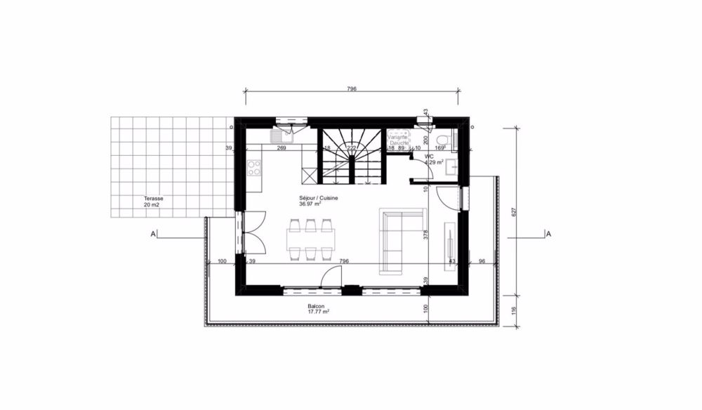
Zweitwohnsitz und Verkauf an Ausländer möglich.Neues Bauprojekt eines individuellen 5,5-Zimmer-Familienhauses im Gebiet La Loëx in einem kleinen Paradies auf den Höhen und nur 10 Minuten vom Stadtzentrum von Monthey entfernt. Am Fuße der beeindruckenden Dents-du-Midi und nur 8 km von der Stadt Monthey entfernt, bietet diese Parzelle eine panoramische Aussicht auf die Rhone-Ebene und den Genfer See.Das präsentierte Projekt kann genau so realisiert werden oder an die Wünsche der Kunden angepasst werden. Die Auswahl der Architektur, des Designs und der Ausführungen erfolgt nach den Vorlieben des Käufers (Küche, Fliesen, Malerei usw.). Das Projekt kann noch an die Vorlieben der Käufer angepasst werden und Solarpanele sind bereits im Verkaufspreis enthalten.Die Aufteilung des präsentierten Hauses ist wie folgt:Keller von 57 m2:Garage von 18,5 m2Büro von 7 m2Waschküche/Technikraum von 8,5 m2EingangshalleErdgeschoss 67 m2:Helles Wohnzimmer von 37 m2 (Küche, Esszimmer und Wohnzimmer)Gästetoilette von 4 m2 mit Möglichkeit, auch eine Dusche zu habenTerrasse von 20 m2Balkon von 18 m2Obergeschoss von 60 m2:Verteilerflur von 3 m23 Schlafzimmer (12,5, 11 und 8,5 m2)Badezimmer von 5,5 m2Besonderheiten:Auswahl der Ausführungen und des DesignsSolarpanele15 Minuten von Monthey entfernt20 Minuten von der Autobahn entferntDie Region Les Giettes interessiert Sie, besuchen Sie auch auf unserer Website die anderen Bauprojekte mit gültigen Baugenehmigungen.Hinweise:Das Dorf Les Giettes ist Teil der Gemeinde Monthey im Wallis. Ein Kanton, der für seine zahlreichen sozialen Vorteile und seine moderaten Steuern (Krankenkasse, Fahrzeugsteuer, Kapitalleistungen und andere Steuern) bekannt ist. Es liegt auch weniger als 4 km von den Whitepod (18 luxuriöse Dôme im Herzen der Alpen sowie ein Restaurant, das gesunde und regionale Küche anbietet) entfernt. In der Region finden Sie auch die Thermalbäder von Lavey, zahlreiche Touristenziele (Aquaparc und Swiss Vapeur Parc in Bouveret, Labyrinthe Aventure in Evionnaz usw.) sowie kulturelle Sehenswürdigkeiten (Saint-Maurice und seine tausendjährige Abtei, Martigny und die Fondation Gianadda, Monthey und sein Theater du Crochetan, Montreux und sein Jazz-Festival von internationalem Rang usw.).Dieses Objekt kann als Zweitwohnsitz oder Hauptwohnsitz und auch für im Ausland ansässige Personen verkauft werden.Sie möchten Genaueres erfahren, das Grundstück besichtigen? Kontaktieren Sie mich telefonisch, per E-Mail oder besuchen Sie uns in einer unserer Agenturen im Chablais (Collombey-Muraz oder Torgon) und wir informieren Sie sehr gerne. Alle unsere Objekte finden Sie auf www.valimmobilier.ch - kostenlose Schätzung Ihres Objekts, professionelle, helle und qualitativ hochwertige Fotos, Luftaufnahmen und optimale Präsentation des Objekts.

Kosten

Kaufpreis:
CHF 811'000

Angaben

Objektkategorie
Eigentum
Objektreferenz
c2d021bf-7474-41ea-9595-af0938292d41
PLZ/Ort
1870 Monthey
Region
District de Monthey
Wohnfläche
150 m²
Grundstücksfläche
664 m²
Anzahl Zimmer
5.5
Baujahr
2025

Merkmale und Ausstattung

Schöne Aussicht

Kontakt

  • Valimmobilier SA
  • Avenue de la Gare 39, 1964, Conthey
  • Nummer Anzeigen

Auch inseriert auf:

immoscout24.ch