Wohnobjekt

NEU - 3.5 Zimmer NEU - 1. Stock - Martigny

CHF 650'000

 | 

98 m²

 | 

3.5 Zimmer

Rue du Saule 11, 1920 Martigny

NEU - 3.5 Zimmer NEU - 1. Stock - Martigny - Karte
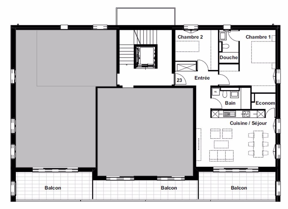
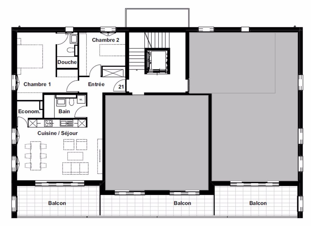
EXKLUSIVITÄT BESTA IMMOBILILER !Neue Promotion in Martigny - Rue du Saule 11Geplante Fertigstellung Anfang 2027BESTA Immobilier SA bietet Ihnen exklusiv eine neue Realisierung in einem ruhigen und Wohngebiet von Martigny, in unmittelbarer Nähe zum Bahnhof. Diese Qualitäts-Promotion verbindet modernen Komfort, energetische Leistung und strategische Lage.- Das Gebäude besteht aus 11 Wohnungen, die sich über 4 Ebenen verteilen, mit verschiedenen Typologien: 2.5 Zimmer, 3.5 Zimmer und 5.5 Zimmer.- Fernwärme-System (CAD): eine ökologische Lösung, die es ermöglicht, die PPE-Kosten zu reduzieren.- Freie Gestaltung durch den Mieter: passen Sie Ihre zukünftige Wohnung Ihren Bedürfnissen und Vorlieben an. 2 Wohnungen mit 3.5 Zimmern verfügbar - 1. StockZwei wunderschöne Einheiten mit 3.5 Zimmern sind noch verfügbar:- PPE-Fläche: 106 m²- Rohfläche: ~98 m²- Balkon von 16 m²- Elternschlafzimmer mit eigenem Duschbad- Badezimmer mit Anschluss für die Waschmaschine- Offene Küche mit angrenzendem AbstellraumDiese Wohnungen bieten eine optimale Raumaufteilung und eine schöne Helligkeit, ideal für Familien oder Paare, die sich in einer angenehmen und praktischen Umgebung niederlassen möchten.Parkplatz17 Parkplätze im Untergeschoss werden zum Preis von CHF 35'000.- pro Platz angeboten. Verfügbarkeit: Anfang 2027 Für alle Anfragen zum Verkaufsprospekt kontaktieren Sie uns unter:BESTA Immobilier SARue des Sablons 151920 [email protected]: +41 79 748 23 54

Kosten

Kaufpreis:
CHF 650'000

Angaben

Objektkategorie
Eigentum
Objektreferenz
88434fc0-cbb0-44ea-a0a2-53b465f9ea3e
Adresse
Rue du Saule 11
PLZ/Ort
1920 Martigny
Region
Martigny
Wohnfläche
98 m²
Grundstücksfläche
1283 m²
Anzahl Zimmer
3.5
Etage
1
Baujahr
2026

Kontakt

  • BESTA Immobilier SA
  • Rue des Sablons 15, 1920, Martigny
  • Nummer Anzeigen

Auch inseriert auf:

immoscout24.ch