Wohnobjekt

Superbe Villa de 5,5 pièces avec vue imprenable à Lens (VS).

CHF 1'380'000

 | 

180 m²

 | 

5.5 Zimmer

1978 Lens

Superbe Villa de 5,5 pièces avec vue imprenable à Lens (VS). - Karte
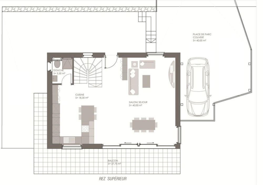
Votre future Villa individuelle avec vue imprenable à Lens (VS).Plongez dans l'exceptionnel avec cette Villa individuelle à construire dans les vignes de Lens avec des matériaux nobles, alliant authenticité et raffinement.Idéalement située à quelques minutes de Sion et Sierre, ce bien rare offre un cadre de vie unique !Caractéristiques principales :Surface habitable d'environ 180 m² sur 3 niveaux Très grand séjour Cuisine ouverte moderneChambres: 4, dont une chambre de plus de 20m2 avec penderieSalles de bains: 3Terrasse: 40 m²Balcon: 28m2 Jardin Buanderie Vue panoramique uniqueParkings extérieurs couvert : 2Local de stockage Système de chauffage par pompe à chaleur réversible Choix des finitions au grès du preneur (selon budget et descriptif technique) Ne manquez pas l'opportunité d'acquérir cette maison d'exception. Contactez-nous dès aujourd'hui pour organiser une visite sur place et tomber sous le charme de ce bien unique à la vente.Contact:Claudio Maturo+41 79 857 74 22

Kosten

Kaufpreis:
CHF 1'380'000

Angaben

Objektkategorie
Kauf
Objektreferenz
b220fcbb-31ed-4b3c-aaf6-497dc96f66f0
PLZ/Ort
1978 Lens
Region
District de Sierre
Wohnfläche
180 m²
Anzahl Zimmer
5.5
Baujahr
2025

Merkmale und Ausstattung

Balkon
Feuerstelle
Schöne Aussicht
Parkplatz

Kontakt

  • Duo Immobilier
  • Route du Village 10, 1807 Blonay - Saint-Légier
  • Nummer Anzeigen

Auch inseriert auf:

homegate.ch