Wohnobjekt

NEUF Grand Duplex 3.5 pièces avec vue panoramique à budget maîtrisé lot 303

CHF 630'000

 | 

113 m²

 | 

3.5 Zimmer

1978 Lens

NEUF  Grand Duplex 3.5 pièces avec vue panoramique à budget maîtrisé  lot 303 - Karte
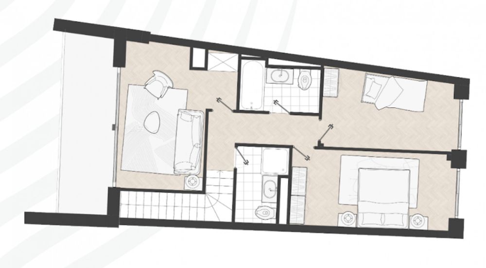
Offrir à votre quotidien une dimension supplémentaire, tant en termes despace que de perspective : le lot 303 du projet Montara en région de Lens propose une manière de vivre la montagne différente, plus verticale, plus intime, et résolument tournée vers la vue.Ce duplex sur deux niveaux sadresse à celles et ceux qui recherchent de l'espace, une belle luminosité et un panorama hors du commun. Ici, chaque étage a sa fonction, chaque volume trouve naturellement sa place, et la vue sur les Alpes accompagne les moments de vie, du lever du jour jusquaux derniers reflets du soleil couchant.Situé en rez-de-chaussée avec un étage supérieur (R+1), au sein dun immeuble résidentiel à taille humaine de seulement 10 appartements, ce logement labellisé Minergie bénéficie dune implantation privilégiée. Lorientation sud-ouest garantit un ensoleillement généreux et une atmosphère lumineuse tout au long de la journée.Avec une surface utile appréciable denviron 129 m², ce 3.5 pièces en duplex offre des volumes bien proportionnés, une grande hauteur de plafond sous comble à létage et une organisation fluide. Ses 2 balcons exceptionnels dune surface totale denviron 24 m², orientés Sud-Ouest et ouverts sur un panorama dégagé, deviennent un véritable belvédère privé sur les Alpes valaisannes, idéal pour se détendre, recevoir ou simplement contempler le paysage.Les larges ouvertures assurent une connexion permanente avec lextérieur, tandis que la qualité des matériaux et des finitions confère à lensemble une ambiance chaleureuse, contemporaine et personnalisable selon vos envies par notre bureau d'architecture d'intérieur partenaire (en sus).Le confort est assuré par un chauffage écologique par pompe à chaleur Air/Eau et la possibilité (en sus) dajouter un poele à bois, garantissant efficacité énergétique et charges maîtrisées. Une cave privative ainsi que des places de parc sous couvert ou extérieures (en sus) complètent ce bien au positionnement particulièrement attractif.ORGANISATION DE L'APPARTEMENT :Pensé comme une véritable maison sur deux niveaux, le lot 303 offre une distribution claire et équilibrée, favorisant à la fois la convivialité et lintimité.Lappartement sorganise de la manière suivante :Au rez:Entrée avec rangements,Cuisine moderne conviviale agencée et parfaitement équipée ouverte sur une salle à manger avec accès à un 1er balcon orienté Sud-Ouest avec vue imprenable sur les AlpesA l'étage :Séjour lumineux avec de larges baies vitrées ouvrant sur le second balcon orienté Sud-Ouest avec vue panoramique sur les Alpes2 jolies chambres orientées Nord-Est2 salle de bains élégantes aux finitions soignées, l'une avec baignoire / lavabo / WC et la seconde avec douche / lavabo / WCLES ATOUTS UNIQUES DE CE LOT :Le lot 303 se distingue par une combinaison rare de fonctionnalités, de vue et de prix :Configuration duplex2 chambres, 2 salles de bainsSituation exceptionnelle, avec vue panoramique imprenable sur les Alpes valaisannesOrientation sud-ouest, pour une luminosité optimale tout au long de la journéeGrands balcons à chaque niveau, dune surface totale de 24 m², idéals pour profiter pleinement du panoramaAmbiance calme et préservéeAppartement unique personnalisable selon vos goûts (choix des finitions)Matériaux et équipements de qualité, sélectionnés avec soinProjet Minergie, durable et respectueux de lenvironnementPrix très attractif pour un grand 3.5 pièces neuf en duplex proche des stationsPossibilité de place de parc sous couvert ou extérieure en optionUne opportunité idéale pour accéder à un duplex lumineux avec vue, à un budget maîtr

Kosten

Kaufpreis:
CHF 630'000

Angaben

Objektkategorie
Kauf
Objektreferenz
eeb2e8d9-5942-4be5-a8a6-87c9502a1e7e
PLZ/Ort
1978 Lens
Region
District de Sierre
Wohnfläche
113 m²
Anzahl Zimmer
3.5
Etage
2
Baujahr
2026

Merkmale und Ausstattung

Balkon
Garage
Schöne Aussicht

Kontakt

Jean-Christophe Seurat
  • Jean-Christophe Seurat
  • JustImmo Sàrl
  • gibt Ihnen gerne Auskunft.
  • Nummer Anzeigen

Auch inseriert auf:

homegate.ch