Kaufen
Mieten
Premium-Abo
FAQ
Inserieren
Anbieter
Immobilien Ratgeber
Testimonials & Referenzen
Marketing
Newsletter anmelden
Jetzt Anmelden!
Kontakt
Über uns
AGB
Kaufen
Mieten
Premium-Abo
FAQ
Inserieren
Mehr..
Anbieter
Immobilien Ratgeber
Testimonials & Referenzen
Marketing
Newsletter anmelden
Merkliste
Anmelden
Anmelden
Passwort vergessen?
Benutzername oder E-Mail-Adresse
Passwort
Angemeldet bleiben
Anmelden
Noch nicht registriert?
Kostenlos registrieren und Suchprofil erstellen
Als Immobilien-Anbieter registrieren
Mein Konto
Meine Suchprofile
Einstellungen
Premium Abonnement
Hilfebereich
Logout
Exklusiv Recherchiert
Publiziert am 23.10.2025.
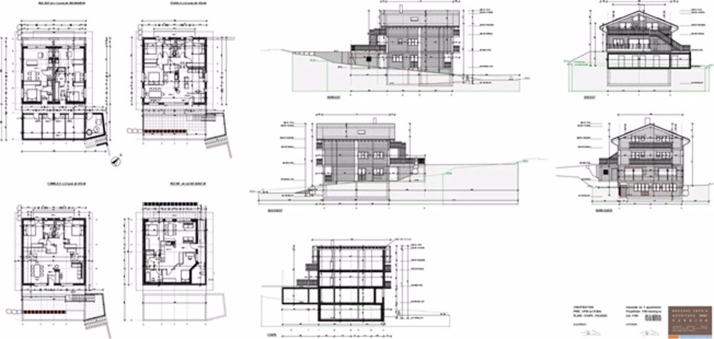
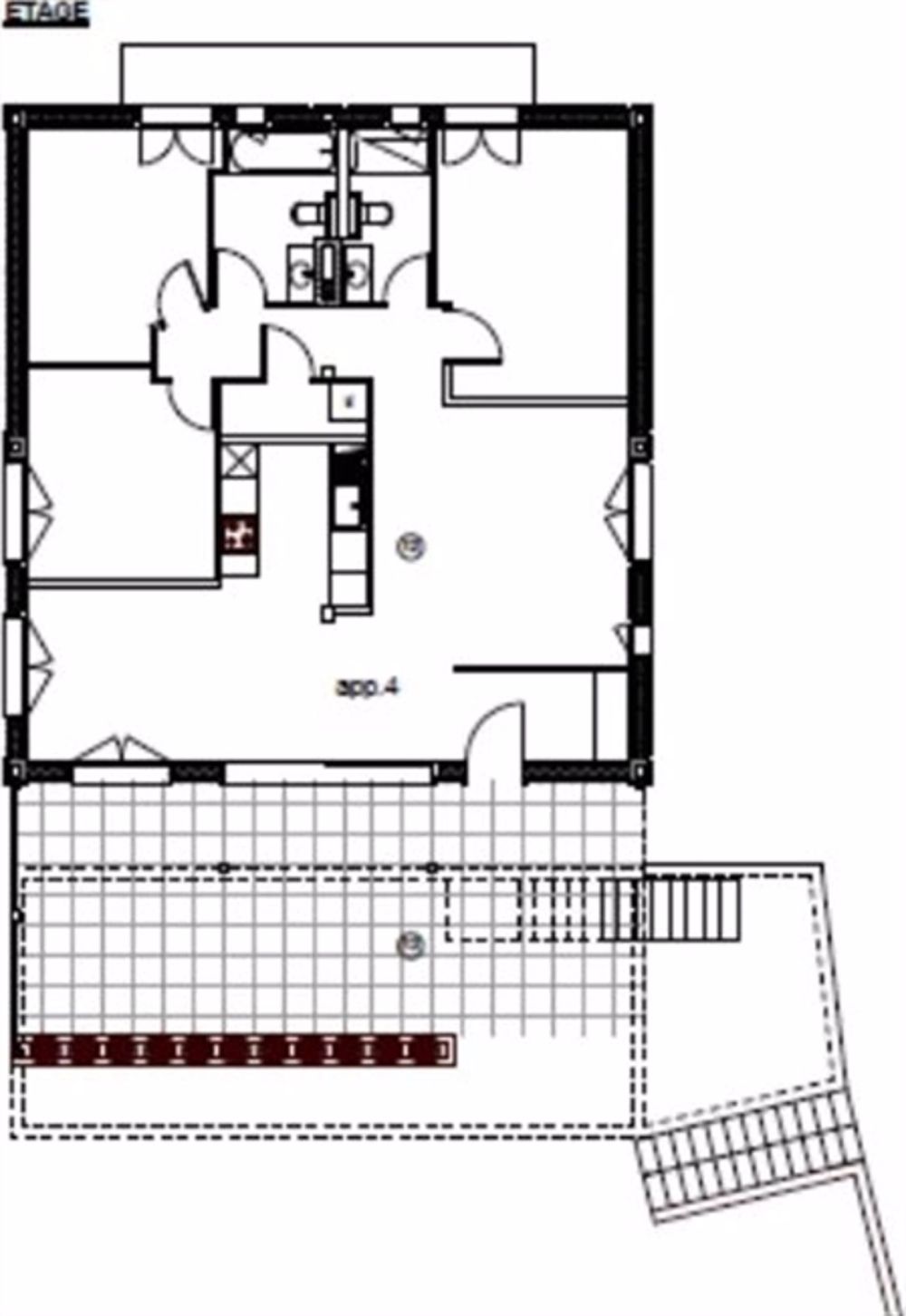
Wohnobjekt
Luxuriöses Apartment mit Bergblick in Bagnes
CHF
1'270'000
|
4.5
Zimmer
Kontakt
Auch inseriert auf:
urbanhome.ch
1934 Le Châble VS
Karte anzeigen
Karte vergrössern
4.5 Zimmer Wohnung
Mehr Text sehen
Kosten
Kaufpreis:
CHF 1'270'000
Angaben
Objektkategorie
Eigentum
Objektreferenz
bb2101d2-e169-4b62-94d1-6ab1b6f83f26
PLZ/Ort
1934
Le Châble VS
Region
District d'Entremont
Anzahl Zimmer
4.5
Etage
4
Baujahr
2024
Merkmale und Ausstattung
Balkon
Kontakt
Auch inseriert auf:
urbanhome.ch
Ihre letzten Ansichten