Wohnobjekt

Appartement 3,5 Zimmer mit Garten gegenüber dem Golf von Sierre

CHF 554'700

 | 

104 m²

 | 

3.5 Zimmer

Impasse de l'Orme, 3979 Grône

Appartement 3,5 Zimmer mit Garten gegenüber dem Golf von Sierre - Karte
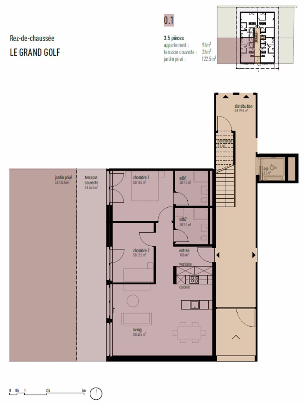
Entdecken Sie Le Grand Golf, eine neue, erdbebensichere Residenz der Extraklasse, ideal gelegen gegenüber dem prestigeträchtigen Golf von Sierre, nur wenige Schritte vom See von Corne, dem Ortszentrum, dem Hallenbad und dem Sportkolleg entfernt. Dieses exklusive Projekt umfasst 30 moderne und komfortable Apartments, die darauf ausgelegt sind, eine optimale Lebensqualität in einer friedlichen und grünen Umgebung zu bieten. Die Apartments sind wie folgt aufgeteilt: - Eingang mit großen Einbauschränken - Wohnzimmer mit ausgestatteter Küche und Außenzugang - 2 große Schlafzimmer mit Außenzugang, eines mit Dusche - Dusche mit Waschmaschine - Große überdachte Terrasse und privater Garten Ein dauerhafter Komfort und respektvoll gegenüber der Umwelt: - 100% ökologische Heizung dank Wärmepumpe und Photovoltaikzellen (30-jährige Garantie) - Fußbodenheizung mit umgekehrtem Fluss für den Sommer - Erdbebensichere Konstruktion, die Sicherheit und Ruhe gewährleistet - Zugänglichkeit für Menschen mit eingeschränkter Mobilität - Hochwertige Ausstattung in den Küchen und Bädern Jedes Apartment kann mit folgendem ergänzt werden: - Abgedeckter Parkplatz + verschlossener Raum & Elektrizität CHF 40'000.- - Außenparkplatz, unbedeckt CHF 10'000.- - Elektroanschlüsse auf Anfrage verfügbar Die Residenz verfügt über 15 Besucherparkplätze, einen Spiel-/Treffpunkt und einen überdachten Fahrradabstellplatz. Die Apartments werden "schlüsselgerecht" innerhalb von 18 Monaten ab Beginn der Bauarbeiten übergeben. Verkauf in PPE mit Administrator, Concierge und Renovierungsfonds. 3,5-Zimmer-Appartement mit Garten ab CHF 554'700.- - Apartment 0-1 Erdgeschoss - Westausrichtung 94m2 + Balkon 26m2 + Garten 122m2 CHF 599'900.- - Apartment 0-2 Erdgeschoss - Westausrichtung 105,5m2 + Balkon 52,5m2 + Garten 146m2 CHF 723'500.- - Apartment 0-4 Erdgeschoss - Ostaussrichtung 91,5m2 + Balkon 26m2 + Garten 97,5m2 CHF 554'700.- Bruttorendite bei Jahresvermietung: 4 bis 5% pro Jahr Verfügbarkeit auf Anfrage

Kosten

Kaufpreis:
CHF 554'700

Angaben

Objektkategorie
Eigentum
Objektreferenz
3d4d75ab-e2af-4470-b520-a0a1d60b9c58
Adresse
Impasse de l'Orme
PLZ/Ort
3979 Grône
Region
District de Sierre
Wohnfläche
104 m²
Grundstücksfläche
98 m²
Anzahl Zimmer
3.5
Etage
EG
Baujahr
2025

Merkmale und Ausstattung

Lift
Rollstuhlgängig

Kontakt

  • Alp Real Estate SA
  • Route des Ecluses 19, 1997, Haute-Nendaz
  • Nummer Anzeigen

Auch inseriert auf:

homegate.ch