Wohnobjekt

Villa 5,5 pièces à Conthey

CHF 890'000

 | 

145 m²

 | 

5.5 Zimmer

1964 Conthey

Villa 5,5 pièces à Conthey - Karte
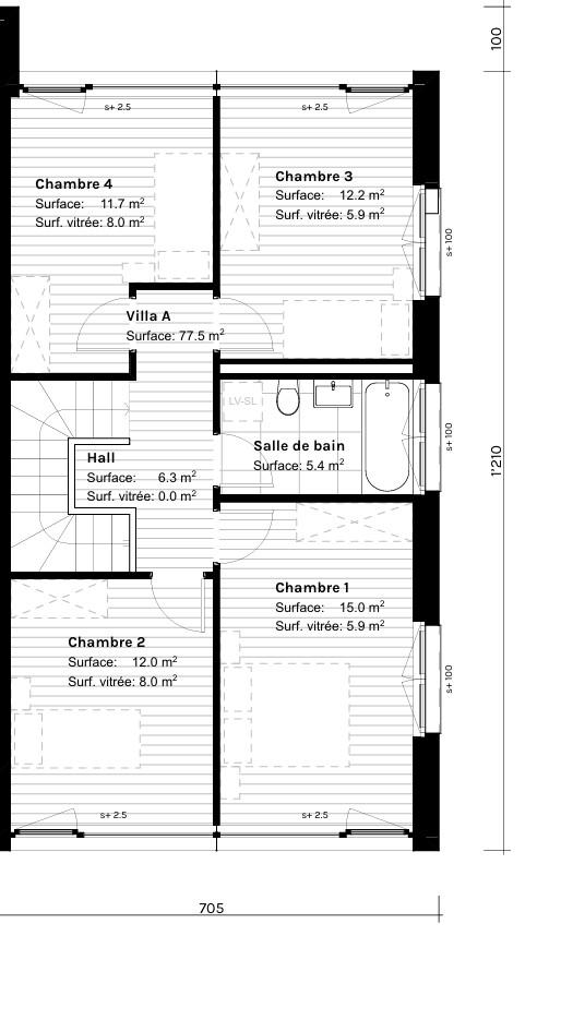
Villas jumelées de 5.5 pièces à ContheySitué sur la commune prisée de Conthey, au coeur du Valais central, ce nouveau projet immobilier propose 4 villas jumelées contemporaines conçues pour offrir confort, espace et qualité de vie dans un environnement privilégié. Entre vignobles, montagnes et plaine du Rhône, Conthey séduit par son cadre naturel et sa situation idéale à quelques minutes seulement de Sion et des principaux axes de communication.Ces villas modernes et lumineuses ont été pensées pour répondre aux besoins des familles. Chaque logement dispose de 4 chambres spacieuses, permettant d'aménager aisément chambres d'enfants, bureau ou espace loisirs. Les volumes généreux et la distribution fonctionnelle offrent un cadre de vie agréable et convivial.Le projet bénéficie d'une situation résidentielle calme tout en restant proche de toutes les commodités : écoles, commerces, transports et accès rapide à l'autoroute. La commune de Conthey offre un environnement particulièrement apprécié des familles, combinant dynamisme économique, infrastructures complètes et qualité de vie au coeur du Valais.Points forts du projet :4 villas jumelées contemporaines4 chambres par villa2 salles d'eauEspaces de vie lumineux et fonctionnelsEnvironnement résidentiel agréableProximité des commodités et de SionFinitions à choix de l'acquéreur selon budgetLes villas sont disposées ainsi :Hall d'entrée avec armoireSalle d'eau avec douche et WCCuisine ouverteSéjourSalon avec accès à la terrasse4 chambres à l'étage de 12m2 à 15m2Salle d'eau avec baignoire et WCCaveChaque maison possède 2 places de parc extérieures.Villa A - D à Chf 890'000.00Villa B - C à Chf 850'000.00Ces villas représentent une opportunité idéale pour les familles à la recherche d'un logement spacieux et moderne dans une commune dynamique du Valais. Détails des pièces Cave | CellierCuisine avec coin repasHall d'entréeLocal techniqueRéduit / RangementSalle à mangerSéjourTerrasse Chambres Chambre double / parentale : 1Chambre simple / enfant : 3 Salles d'eau Salle de bain : 1Salle de douche : 1Total WC : 1 Nombre de box, garages et places de parc Place de parc extérieure 2 Environnement Calme | TranquilleVillage Vue Dégagée Exposition Sud Proximité Aire de jeuxBanquesCentre sportifCentre villeCentres commerciauxCommercesCrècheEcoles primairesEcoles secondairesGarePosteRestaurantSortie autorouteTransports publics Intérieur Armoires encastrées hallGrand salon | séjourLumineux Equipement technique Chauffage principal Pompe à chaleur air-eau N'hésitez pas à nous contacter pour davantage d'informations.Au plaisir de vous rencontrer.Nos meilleures salutations.

Verfügbarkeit

Bezugstermin:
22. März 2026

Kosten

Kaufpreis:
CHF 890'000

Angaben

Objektkategorie
Eigentum
Objektreferenz
7f11c071-6f5a-413c-b35f-7b1ace9c039a
PLZ/Ort
1964 Conthey
Region
District de Conthey
Wohnfläche
145 m²
Anzahl Zimmer
5.5
Baujahr
2026

Merkmale und Ausstattung

Schöne Aussicht
Parkplatz

Kontakt

Mélanie Savioz-Follonier
  • Mélanie Savioz-Follonier
  • Follonier FM SA
  • gibt Ihnen gerne Auskunft.
  • Nummer Anzeigen

Auch inseriert auf:

homegate.ch