Wohnobjekt

Villa jumelée à Collombey

CHF 1'050'000

 | 

160 m²

 | 

5.5 Zimmer

1868 Collombey

Villa jumelée à Collombey - Karte
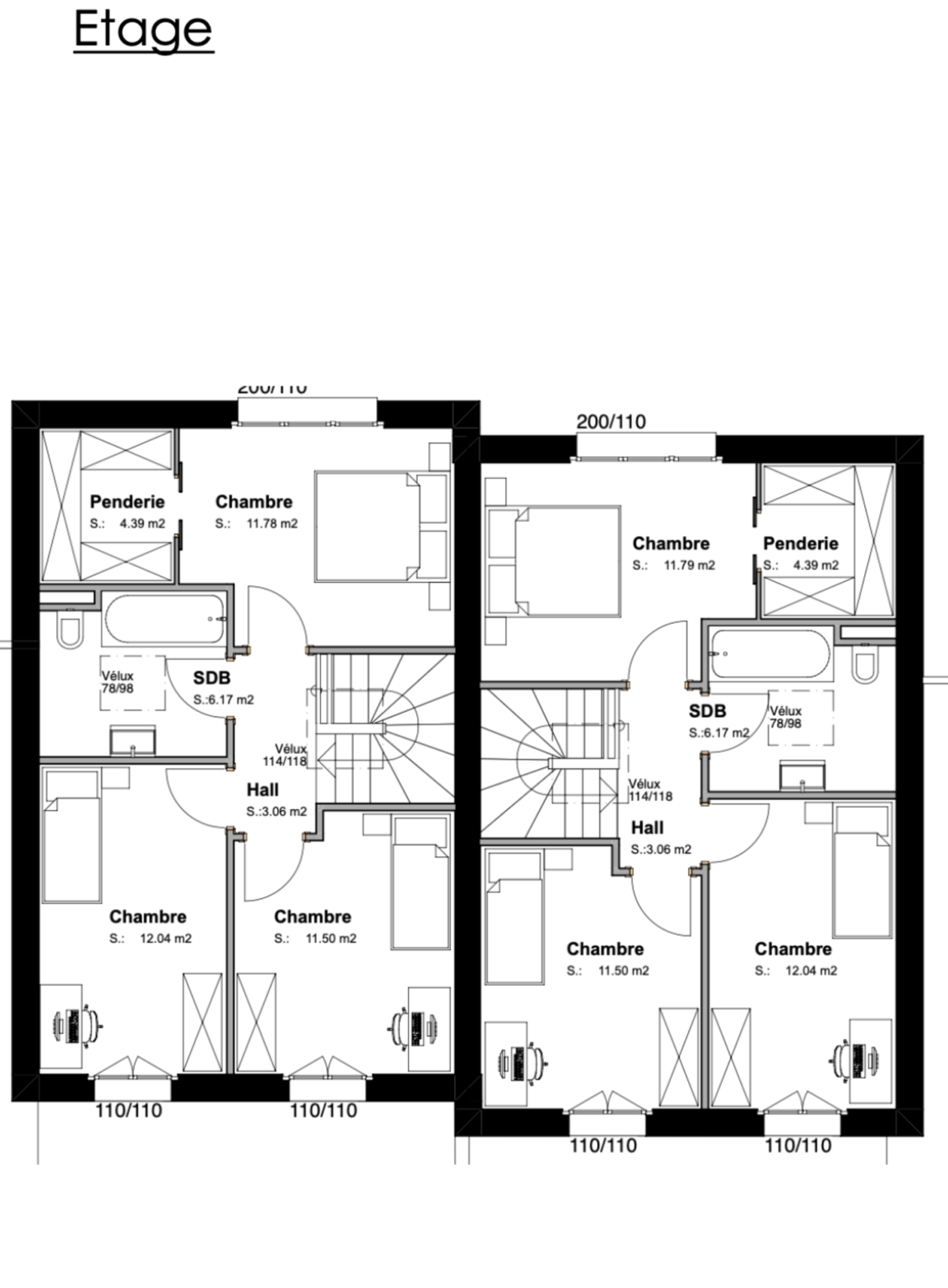
Située dans un environnement paisible et recherché de Collombey, cette superbe villa jumelée moderne de 5,5 pièces offre 160 m² alliant confort, fonctionnalité et élégance.Distribution :Rez-de-chaussée :- Hall d'entrée avec armoire murale- Buanderie- WC- Cage d'escalier avec économat- Cuisine ouverte, moderne et conviviale- Salle à manger- Séjour- Terrasse avec jardinÉtage :- Couloir avec cage d'escalier- Une salle de bain- Une suite parentale avec dressing- Trois chambresAnnexes et extérieurs :- Garage- Local technique- Places de parc extérieuresSes points forts:- Architecture contemporaine et finitions de qualité au choix des acquéreurs- Environnement paisible, proche de toutes commodités- Espaces intérieurs harmonieux et baignés de lumièreCette villa séduit par sa modernité, sa luminosité et sa distribution fonctionnelle, parfaite pour une famille souhaitant profiter d'un cadre de vie paisible tout en restant proche des commodités.SITUATIONAu coeur du Chablais valaisan, la commune de Collombey-Muraz séduit par son cadre naturel exceptionnel et son art de vivre harmonieux.Entourée de majestueuses montagnes, à deux pas du lac Léman et à proximité immédiate des stations de ski, elle offre un environnement privilégié où nature et confort moderne se rencontrent.Commune dynamique et accueillante, Collombey-Muraz se distingue par ses infrastructures modernes, sa vie locale animée et son esprit familial.Entre traditions rurales et développement urbain maîtrisé, elle incarne parfaitement l'équilibre entre authenticité, qualité de vie et accessibilité.

Kosten

Kaufpreis:
CHF 1'050'000

Angaben

Objektkategorie
Eigentum
Objektreferenz
283ad847-3c0d-497f-9015-7aae373b4acf
PLZ/Ort
1868 Collombey
Region
District de Monthey
Wohnfläche
160 m²
Grundstücksfläche
543 m²
Anzahl Zimmer
5.5
Baujahr
2026

Merkmale und Ausstattung

Schöne Aussicht

Kontakt

Immo Expérience Sàrl
  • Immo Expérience Sàrl
  • Immo Expérience Sàrl
  • gibt Ihnen gerne Auskunft.
  • Nummer Anzeigen

Auch inseriert auf:

homegate.ch