Wohnobjekt

Collombey, neues Projekt einer 5.5-Zimmer-Villa

CHF 1'150'000

 | 

178 m²

 | 

5.5 Zimmer

1868 Collombey

Collombey, neues Projekt einer 5.5-Zimmer-Villa - Karte
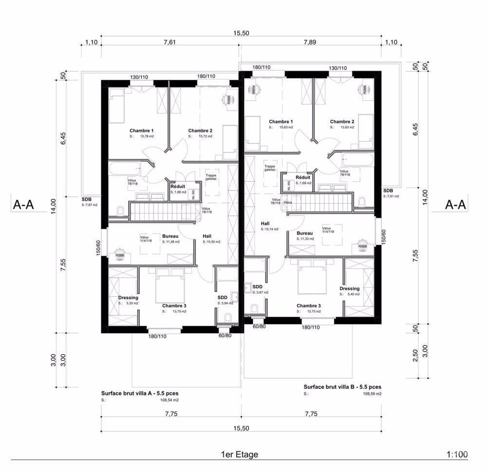
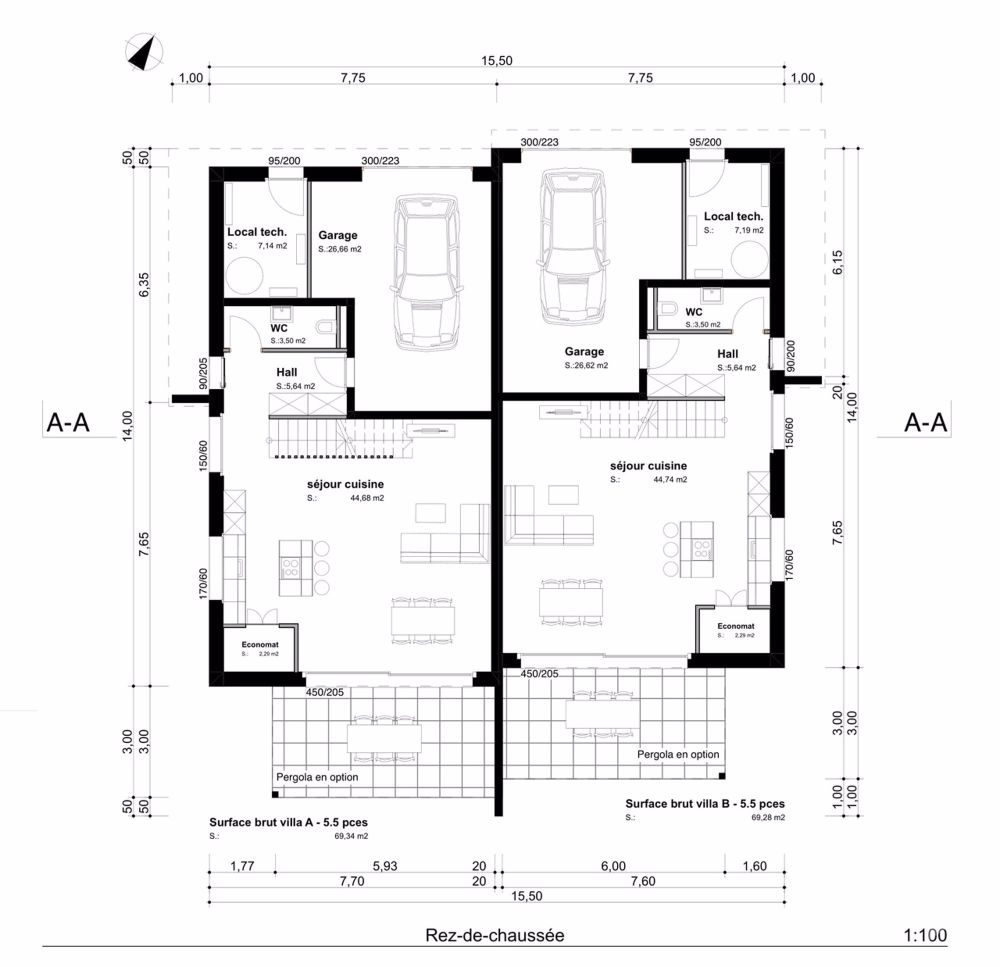
Valimmobilier SA hat die Ehre, Ihnen ein neues Bauprojekt von 4 modernen Wohnungen in Collombey vorzustellen. In einem sympathischen Viertel von Collombey können Sie Eigentümer dieser contemporaryen 5.5-Zimmer-Villa mit 178 m2 Wohnfläche, Garage und privatem Garten werden. Das Viertel ist nah an allen Aktivitäten und liegt weniger als 5 Minuten von der Autobahnausfahrt St-Triphon entfernt. Diese Reihenhaus, gebaut von regionalen Investoren, bietet viele Vorteile und sehr geräumige Räume. In traditioneller Bauweise ist es ideal für eine Familie mit seinem großen Wohnzimmer, das zum Garten hin offen ist, seinen 2 Zimmern von 14 und 16 m2, seinem Elternschlafzimmer von über 23 m2 und seinem Büro/Zimmer von 11 m2. Ein Dachboden, Stauräume und eine Waschküche werden ebenfalls sehr geschätzt. Die Wahl der Oberflächen ist dem Käufer überlassen (Küche, Fliesen, Farbe etc.). Die Arbeiten werden bald beginnen. Das Grundstück ist komplett eben, die Baumaterialien und Oberflächen sind von hoher Qualität mit angemessenen Budgets (z.B. 30'000 CHF für die Küche). Für mehr Energieeffizienz ist jedes Haus an die Fernheizung angeschlossen und mit Photovoltaikpaneelen ausgestattet. Das Objekt bietet auch viele Parkplätze, die im Preis inbegriffen sind. Eine kleinere Variante mit 4.5 Zimmern für 131 m2 ist auch verfügbar. Die Aufteilung dieser Villa von 617 m3 ist wie folgt: Erdgeschoss: Wohnzimmer von 45 m2 mit offener Küche zum Esszimmer und WohnzimmerSpeisekammer von 2,30 m2Eingangshalle von 5,6 m2 mit EinbauschränkenGästetoilette von 3,5 m2Technikraum von 7 m2Garage von 26 m2Pflasterter Balkon (Pergola optional), Garten und Parkplätze Im Obergeschoss: 1 Elternschlafzimmer von 23 m2 mit Ankleide und Bad2 Zimmer von 14 und 16 m21 Zimmer/Büro von 11 m2Flur von 15 m2Abstellraum von 2 m2 mit Platz für eine WaschmaschineBadezimmer von 8 m2 mit Waschbecken, Badewanne und WC Dachboden: Dachboden von 13 m2, zugänglich über eine Falltür Hinweis: Das Dorf Collombey ist einer der 5 Dörfer der Gemeinde Collombey-Muraz (Bezirk Monthey) im Wallis. Kanton, der für seine vielen sozialen Vorteile und seine moderaten Steuern (Krankenkasse, Fahrzeugsteuer, Kapitalleistung und andere Steuern) bekannt ist. Diese Gemeinde bietet viele Vorteile für Familien (Kinderkrippen, Grundschulen und Orientierungsschulen, Kindergärten, Sportvereine, Altersheime usw.). Das Dorf liegt weniger als 5 Minuten von der Autobahnausfahrt St-Triphon und dem Riviera-Chablais-Krankenhaus entfernt. Die zweitgrößte Gemeinde im Unterwallis, Collombey-Muraz, liegt 20 Minuten von den Skigebieten (Portes du Soleil und Lac Léman) entfernt. Dieses Objekt kann als Zweitwohnsitz oder Hauptwohnsitz verkauft werden. Sie möchten mehr Informationen erhalten, das Grundstück besichtigen? Kontaktieren Sie mich telefonisch, per E-Mail oder besuchen Sie uns in einer unserer Agenturen im Chablais (Aigle, Collombey-Muraz oder Torgon) und wir werden Sie sehr gerne beraten. Alle unsere Objekte finden Sie auf www.valimmobilier.ch - kostenlose Bewertung Ihres Objekts, professionelle, helle und qualitativ hochwertige Fotos, Luftaufnahmen und optimale Objekthervorhebung.

Kosten

Kaufpreis:
CHF 1'150'000

Angaben

Objektkategorie
Eigentum
Objektreferenz
c4af562f-fe3b-47f7-82b4-a0a1b517a184
PLZ/Ort
1868 Collombey
Region
District de Monthey
Wohnfläche
178 m²
Grundstücksfläche
475 m²
Anzahl Zimmer
5.5
Baujahr
2026

Merkmale und Ausstattung

Balkon
Garage
Kinderfreundlich

Kontakt

  • Valimmobilier SA
  • Avenue de la Gare 39, 1964, Conthey
  • Nummer Anzeigen

Auch inseriert auf:

homegate.ch