Wohnobjekt

4 villas Mitoyennes + 2 appartements - GRANDS PRAZ

CHF 725'000

 | 

4.5 Zimmer

Rue des Grands-Praz 14, 1906 Charrat

4 villas Mitoyennes + 2 appartements - GRANDS PRAZ - Karte
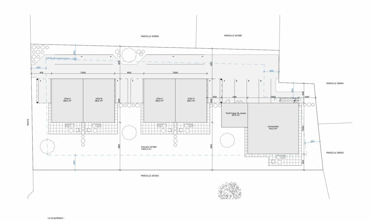
Charrat - Joli projet de 4 villas mitoyennes + 1 villa de 2 appartements de 4.5 pces Villas contemporaines à Charrat - Cadre idéal pour les familles
À Charrat, dans un environnement verdoyant et calme, à proximité immédiate du centre du village et à seulement 5 minutes de Martigny et des accès autoroutiers, découvrez ce joli projet de 4 villas mitoyennes et 2 appartements de 4.5 pièces.
Villas 4.5 pièces - env. 121 m²Orientation plein sud, espaces lumineux et distribution optimisée :
Rez-de-chaussée :
Hall avec armoire vestiaireCuisine ouverte entièrement équipéeSalle à manger et séjour avec accès terrasse & jardinSalle d'eau avec doucheRéduitÉtage :
3 chambres (env. 10 à 12 m²)Salle de bain avec baignoire et colonne de lavageInclus1 place non couverte comprise dans le prixPossibilité de couvrir la place pour CHF 10'000.-Local technique communJardin privatifLes atouts du projet :
Petite promotion à taille humaineQuartier résidentiel, calme et ensoleilléGare de Fully/Charrat à proximitéÉcoles, commerces et commodités à quelques minutesChauffage au sol par pompe à chaleur air/eauFinitions au gré du preneurVente en résidence principale ou secondaireUn cadre de vie privilégié, idéal pour s'installer en famille ou réaliser un excellent investissement.Dossier détaillé à disposition.
ET SI VOUS CHANGIEZ D'AIR ?....

Kosten

Kaufpreis:
CHF 725'000

Angaben

Objektkategorie
Eigentum
Objektreferenz
b891a294-9d1d-4fce-99fd-1d6b666f5a00
Adresse
Rue des Grands-Praz 14
PLZ/Ort
1906 Charrat
Region
Martigny
Anzahl Zimmer
4.5
Baujahr
2026

Kontakt

Anita Tissot
  • Anita Tissot
  • Anita Tissot Géobio-Immo Sàrl
  • gibt Ihnen gerne Auskunft.
  • Nummer Anzeigen

Auch inseriert auf:

homegate.ch