Wohnobjekt

Neubau ALPINA / Eigenheim statt Kompromiss – Ihr neues Familienhaus für CHF 790'000.- inkl. PP

CHF 790'000

 | 

90 m²

 | 

4.5 Zimmer

Obere Ringstrasse, 3935 Bürchen

Neubau ALPINA / Eigenheim statt Kompromiss – Ihr neues Familienhaus für CHF 790'000.- inkl. PP - Karte
Ihr eigenes Haus in Bürchen – durchdacht, nachhaltig und bezahlbarEin eigenes Haus. Ein eigener Garten. Ruhe, Sonne und Platz für die Familie – ohne ein Budget von über einer Million.
An der Oberen Ringstrasse in Bürchen (VS) entsteht dieses moderne 4½-Zimmer-Einfamilienhaus, das sich bewusst auf das Wesentliche konzentriert: Qualität, Funktionalität und langfristige Werthaltigkeit.
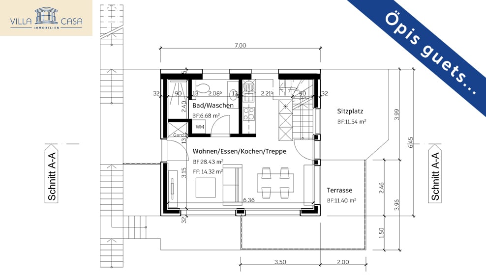
Mit 122 m² Nutzfläche, einer durchdachten Raumaufteilung und moderner Technik bietet dieses Haus genau das, was Familien wirklich brauchen – nicht mehr, aber auch nicht weniger.
Darum passt dieses Haus zu IhnenNeubau in solider Bauweise
Helle Räume, ruhige Lage, viel Sonne
Gestaltungsspielraum im Innenausbau
Ein Haus, das heute bezahlbar ist – und auch morgen finanziell tragbar bleibt.
Warum Bürchen?Bürchen steht für Sonne, Natur und Lebensqualität. Kinder wachsen hier sicher auf, die Berge beginnen vor der Haustüre und trotzdem sind Visp und Brig gut erreichbar. Ein Ort, an dem Familien ankommen und bleiben.
PreisCHF 790’000.– inkl. Bauland (560m² oder 385m²) und ein Parkplatz Ein realistischer Preis für ein neues Einfamilienhaus – ehrlich, transparent und zukunftsorientiert.
Mehr Zuhause. Ein neues Haus für Familien, die bewusst entscheiden.
Haben Sie Fragen, möchten Sie das Neubauprojekt näher kennenlernen mit einer Besichtigung vom Standort oder dürfen wir Sie bei der Finanzierung unterstützen?
Ich freue mich, Sie persönlich kennenzulernen – auch am Wochenende.
Ihr Ansprechpartner: Markus Gerber

Kosten

Kaufpreis:
CHF 790'000

Angaben

Objektkategorie
Eigentum
Objektreferenz
01b731b4-ce65-4a85-ba29-65df3532db74
Adresse
Obere Ringstrasse
PLZ/Ort
3935 Bürchen
Region
Raron
Wohnfläche
90 m²
Grundstücksfläche
560 m²
Anzahl Zimmer
4.5
Baujahr
2026

Merkmale und Ausstattung

Parkplatz

Kontakt

Markus Gerber
  • Markus Gerber
  • Villa Casa AG
  • gibt Ihnen gerne Auskunft.
  • Nummer Anzeigen

Auch inseriert auf:

homegate.ch