Wohnobjekt

Neue 5,5-Zimmer-Wohnung

CHF 1'423'000

 | 

120 m²

 | 

5.5 Zimmer

Route d'Arzier 11, 1264 St-Cergue

Neue 5,5-Zimmer-Wohnung - Karte
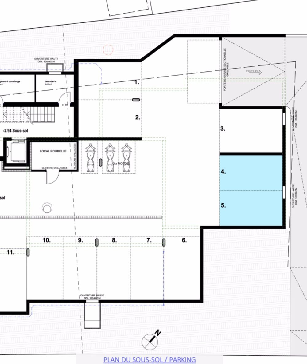
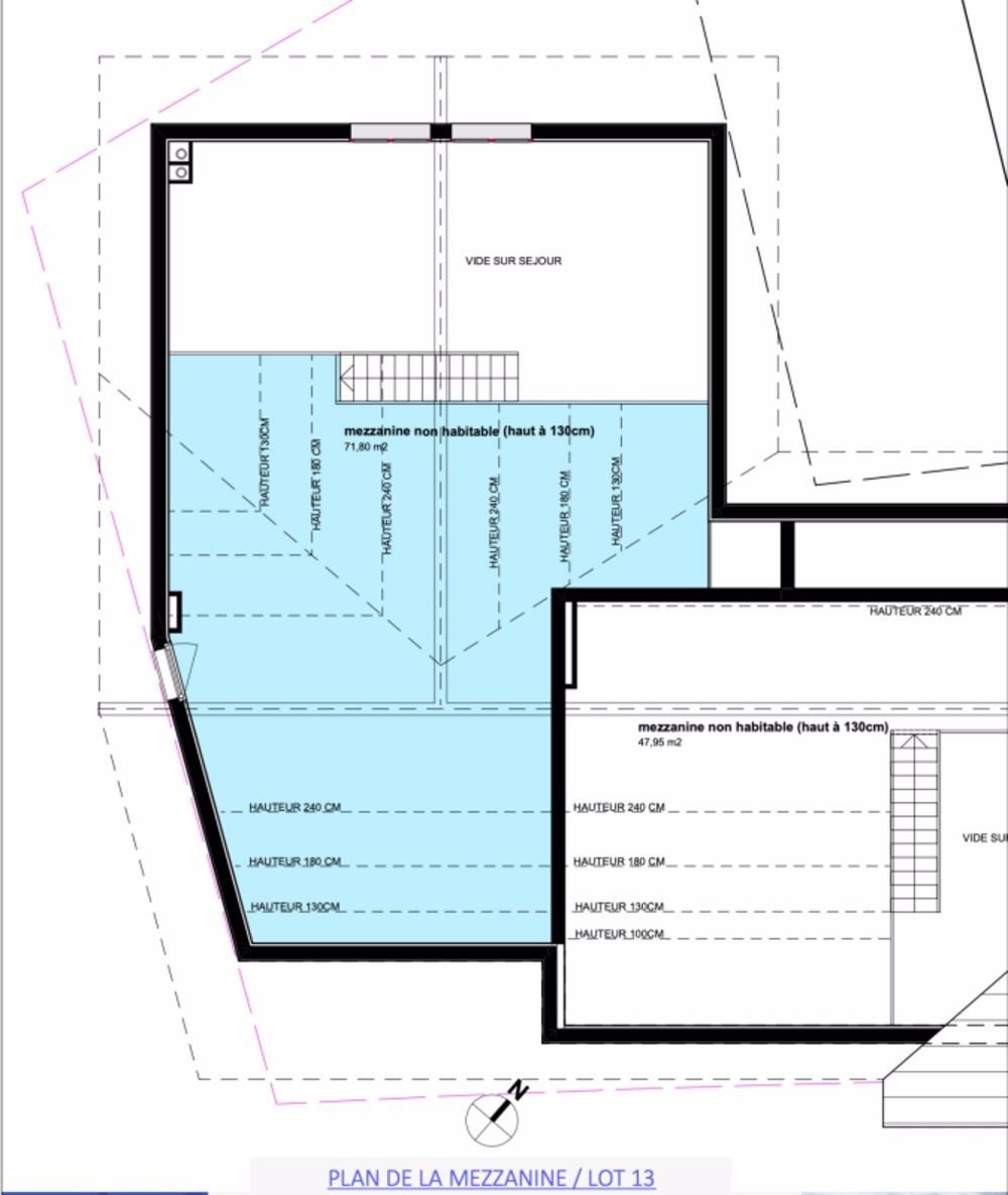
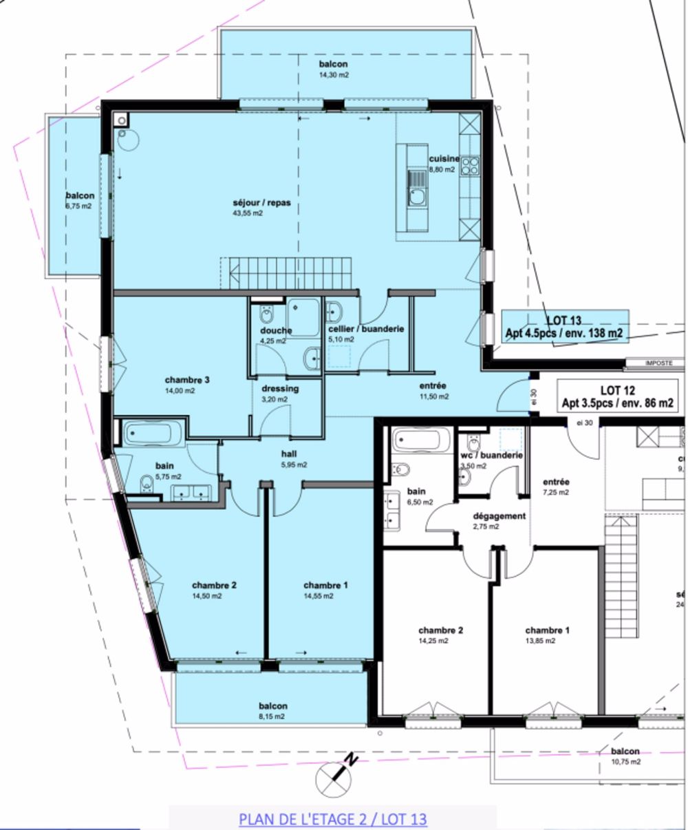
Letzte verfügbare Einheiten: Neue 5,5-Zimmer-Wohnung: Sie liegt im Zentrum des Dorfes Saint-Cergue und bietet die Möglichkeit, im Herzen des Waadtländer Juras zu leben, mit privilegiertem Zugang zu allen Annehmlichkeiten. Der Bahnhof, nur 100 m von der Residenz entfernt, ermöglicht es, leicht mit dem Zug nach Nyon, zum Genfersee und in die Juragebirge zu gelangen. Die Autobahnanschlüsse sind in wenigen Minuten über die Straße erreichbar. Einheit 13: 5,5-Zimmer-Wohnung Offene Küche mit großem Wohnzimmer von 43,5 m2 3 große Schlafzimmer, darunter ein Elternschlafzimmer 2 Badezimmer Keller und Waschküche Ein großes Podest von 72 m2 Drei Balkone Ein Keller im Untergeschoss Parkplätze im unterirdischen Parkhaus für 35'000.- CHF Der Bauunternehmer hat besonderes Augenmerk auf die Suche nach Komfort, Energieeffizienz und Klimaschutz gelegt. Das Gebäude profitiert von der Minergie-Zertifizierung. Nicht verbindliche Informationen und 3D-Bilder

Kosten

Kaufpreis:
CHF 1'423'000

Angaben

Objektkategorie
Eigentum
Objektreferenz
a30f845c-53c7-4060-9b6d-40c511e4fc62
Adresse
Route d'Arzier 11
PLZ/Ort
1264 St-Cergue
Region
District de Nyon
Wohnfläche
120 m²
Anzahl Zimmer
5.5
Etage
2
Baujahr
2025

Merkmale und Ausstattung

Balkon
Lift
Garage
Kinderfreundlich

Kontakt

  • ALTISS IMMOBILIER Sàrl
  • Chemin du Temps Perdu 7, 1273, Arzier-Le Muids
  • Nummer Anzeigen

Auch inseriert auf:

homegate.ch