Wohnobjekt

Große neue 4.5-Zimmer-Wohnung. Im Herzen des Dorfes St-Cergue

CHF 850'000

 | 

103 m²

 | 

4.5 Zimmer

Route d'Arzier 9, 1264 St-Cergue

Große neue 4.5-Zimmer-Wohnung. Im Herzen des Dorfes St-Cergue - Karte
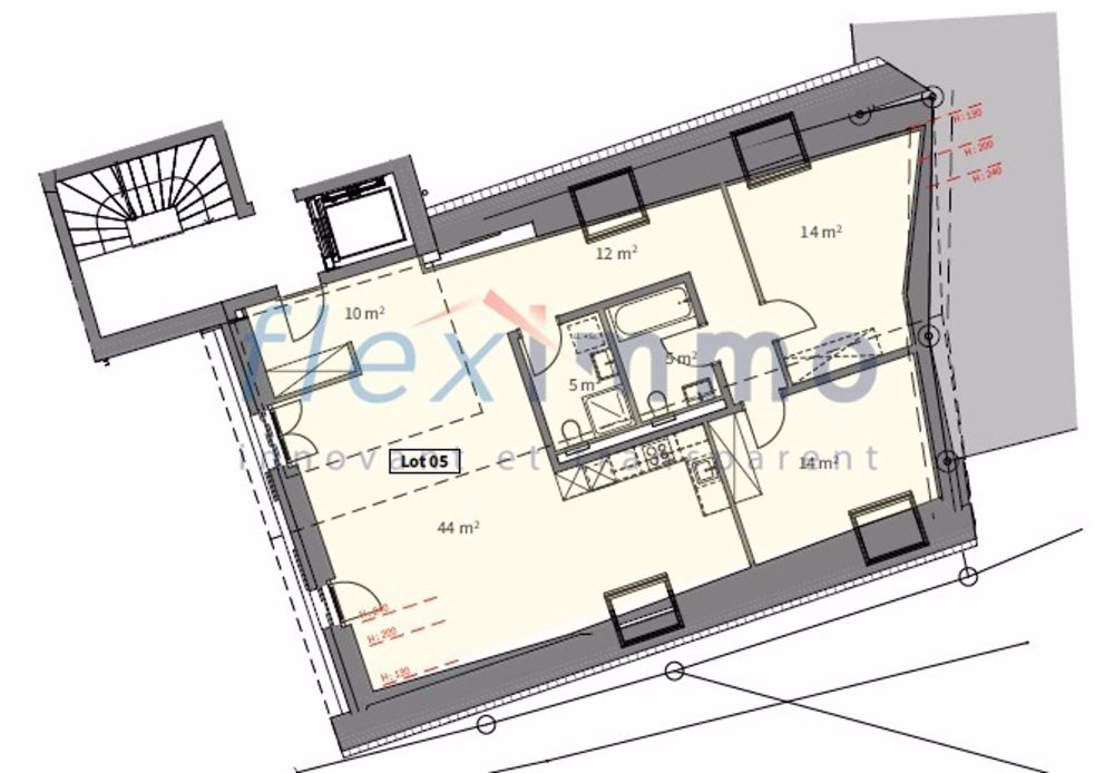
Nichée à 1'041 mètres d'altitude au centre du village pittoresque village de Saint-Cergue, Les Résidences du Grand Air allient le charme authentique du Jura vaudois à la modernité architecturale. Ces appartements offrent une qualité de vie exceptionnelle à leurs futurs occupants, entre nature préservée et accessibilité aux grands centres lémaniques. Ein privilegiierter Standort Im Herzen des Parc naturel régional du Jura vaudois, Saint-Cergue bénéficie d'un cadre naturel exceptionnel mit bemerkenswerten Panoramen auf den Genfersee, den Mont-Blanc und die Alpenkette. Der Dorf-Bahnhof bietet ein authentisches und dynamisches Umfeld, mit allen Geschäften und Dienstleistungen in der Nähe sowie einem aktiven Vereinsleben. Die Anbindung ist hervorragend: Die Eisenbahnlinie Nyon-St-Cergue-La Cure (NStCM) liegt 5 Minuten zu Fuß von der Residenz entfernt und verbindet den Bahnhof von Saint-Cergue mit Nyon in nur 35 Minuten, mit Abfahrten alle 30 Minuten. Von Nyon aus erreichen Sie die CFF-Netze und die Autobahn nach Genf und Lausanne. Der Straßenzugang ist ebenso praktisch, mit nur 15 km bis Nyon. Ein harmonisches architektonisches Projekt Dieses Immobilienprogramm verbindet die Achtung des Erbes mit zeitgenössischer Schöpfung: Die sorgfältige Umwandlung eines traditionellen Dorfhauses und die Schaffung eines neuen Gebäudes mit drei Wohnungen bilden ein ausgewogenes architektonisches Ensemble. Die sechs Wohnungen, von 2,5 Zimmern bis 4,5 Zimmern, darunter ein prächtiges Duplex, sind darauf ausgelegt, Helligkeit und Volumen zu maximieren. Hochwertige Leistungen Bau und Ausführung Qualitätsbau nach den letzten Normen in Bezug auf Wärme- und Schalldämmung. Komfort und Ausstattung Aufzug, der alle Ebenen (0 bis 3) bedient.Fernheizung mit individueller Abrechnung und Photovoltaikpanele für die Warmwassererzeugung.Bodenheizung in allen Räumen mit individueller thermostatischer Regelung.Volleingerichtete Küchen: Qualitätsausstattung mit Easyquartz-Origins-Arbeitsplatten, Siemens-Hochleistungsgeräten (Budgets von 15'000 bis 21'500 CHF TTC je nach Einheit). Möglichkeit, die Ausführung zu wählen.Elegante Badezimmer: Hochwertige Sanitärkeramik von Bringhen by Saneo SA, mit Wahlmöglichkeiten für Konfigurationen, einschließlich Badewannen und Duschen je nach Wohnung. Ausführung nach Wahl. Innenarchitektur Parkett und Fliesen nach Wahl bei den Lieferanten der Baustelle. Küche und Badeinrichtung können nach Belieben des Mieters geändert werden. Garderobenschrank und Schrank im Elternschlafzimmer sind inbegriffen. Private Keller, zwei überdachte Parkplätze pro Wohnung und Außenbereiche für die Einheiten 1, 2, 3, 4 und 6 (Terrassen, Balkone je nach Einheit) vervollständigen die Leistungen. Eine Gelegenheit zum Erwerb auf dem Plan Diese Residenz bietet eine seltene Gelegenheit, ein neues Immobilienobjekt in einer der begehrtesten Gemeinden des Waadtländer Juras zu erwerben. Verkauf auf dem Plan nach PPE-Regime, das Steuereinsparungen und Notarkosten ermöglicht, Bauherrengarantie nach SIA-118-Norm. Kontakt und Informationen Um detaillierte Pläne, genaue Flächen und Verkaufspreise jeder Einheit zu entdecken, steht unser Team Ihnen zur Verfügung.

Kosten

Kaufpreis:
CHF 850'000

Angaben

Objektkategorie
Eigentum
Objektreferenz
3ac1b53a-07a3-4cf2-abd7-bdb52fae7442
Adresse
Route d'Arzier 9
PLZ/Ort
1264 St-Cergue
Region
District de Nyon
Wohnfläche
103 m²
Anzahl Zimmer
4.5
Etage
1
Baujahr
2026

Merkmale und Ausstattung

Kabelfernsehen
Lift
Rollstuhlgängig

Kontakt

  • Fleximmo SA
  • Rue de la Gare 18, 1260, Nyon
  • Nummer Anzeigen

Auch inseriert auf:

homegate.ch