Wohnobjekt

Nouvelle promotion : appartement de 3.5 pièces avec balcons couverts

CHF 1'785'000

 | 

94 m²

 | 

3.5 Zimmer

A Rolle, 1180 Rolle

Nouvelle promotion : appartement de 3.5 pièces avec balcons couverts - Karte
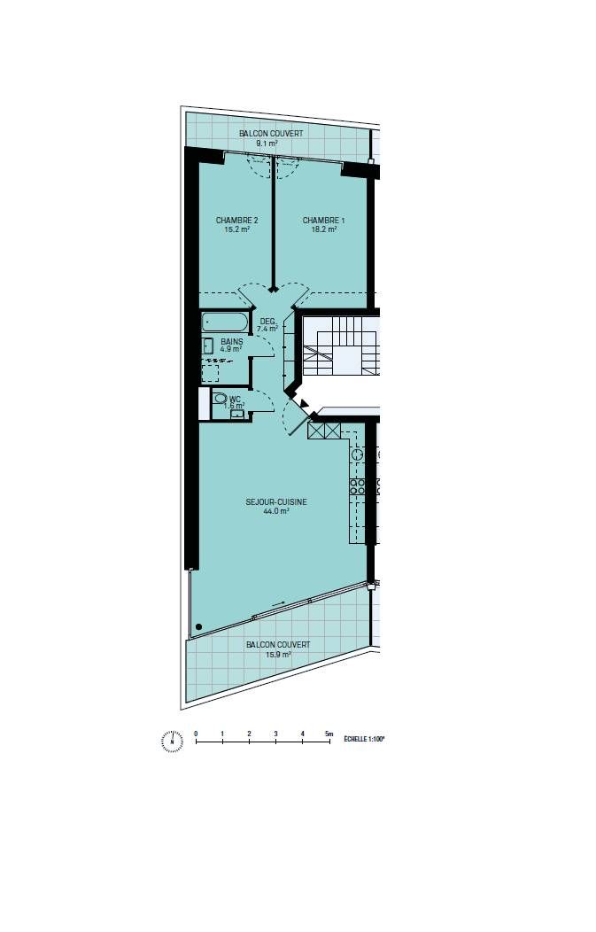
Panorama de rêve ! Faites de l'exceptionnel votre lieu de résidence !Bernard Nicod SA a le plaisir de vous présenter sa nouvelle promotion Baie d'Opale . Celle-ci saura vous émerveiller avec ses immeubles de haut standing à l'architecture contemporaine et sa situation idyllique.Située à 70m du lac Léman, longeant la plage de Rolle, ce projet est réalisé par notre Entreprise Générale Bernard Nicod SA et prévoit 6 immeubles PPE. La Baie d'Opale comprend des logements de 1.5 pièces à 5.5 pièces de conception moderne et propose des espaces de vie généreux ainsi qu'une excellente luminosité. Des locaux commerciaux sont également disponibles à la vente.Les appartements du rez-de-chaussée ont un jardin privatif et tous les logements bénéficient de terrasses ou balcons. 11 attiques avec vue panoramique et des rooftop terrasses offrent jusqu'à 249m2 de surface pondérée.Un espace fitness sera mis à disposition des copropriétaires. Le sous-sol abritera l'ensemble des locaux technique, les caves, buanderies et un parking souterrain.Les aménagements extérieurs de qualité et très soignés mettrons en valeur l'architecture contemporaine des immeubles qui seront à la hauteur des plus exigeants.Cet appartement de 3.5 pièces se trouve au deuxième étage du bâtiment D3.Il se compose comme suit :Un hall d'entrée avec armoires murales, un séjour / cuisine ouverte de 44 m2 avec accès à un premier balcon couvert, une salle de bain avec arrivées d'eau pour la colonne de lavage, un WC séparé, deux chambres à coucher avec accès à un deuxième balcon couvert.Une place de parc intérieure (entre CHF 48'000.- - et 65'000.- par unité en sus) complète ce bien. Des places de parc intérieures pour motocycles sont disponibles.LES ATOUTS : - Labélisé Minergie P Eco- Pompe à chaleur à sondes géothermiques- Panneaux photovoltaïque pour une diminution des coûts de votre facture énergétique- Ventilation : système double flux- Thermostat d'ambiance dans toutes les pièces- Construction par l'Entreprise Générale BERNARD NICOD SALIVRAISON : D1 D2 D3 = 31.03.2025 B2 = 31.05.2025B1 Centre = 30.09.2025B1 Ouest = 31.10.2025Objets rares à découvrir ! Vue Lac et Mont-blanc à perte de vue.Information et visites : Alexandra JEREZ & Tania LEITE 024 424 24 26

Kosten

Kaufpreis:
CHF 1'785'000

Angaben

Objektkategorie
Eigentum
Objektreferenz
634a9d14-45aa-4e49-a2a5-1ef83120208a
Adresse
A Rolle
PLZ/Ort
1180 Rolle
Region
District de Nyon
Wohnfläche
94 m²
Anzahl Zimmer
3.5
Etage
2
Baujahr
2025

Merkmale und Ausstattung

Balkon
Lift
Schöne Aussicht
Parkplatz
Rollstuhlgängig

Kontakt

Tania Leite et Alexandra Jerez
  • Tania Leite et Alexandra Jerez
  • Bernard Nicod | Yverdon Ventes
  • gibt Ihnen gerne Auskunft.
  • Nummer Anzeigen

Auch inseriert auf:

homegate.ch