Wohnobjekt

Neue Promotion Prilly Buissonnière - 3,5 Zimmer 2. Etage

CHF 945'000

 | 

80 m²

 | 

3.5 Zimmer

1008 Prilly

Neue Promotion Prilly Buissonnière - 3,5 Zimmer 2. Etage - Karte
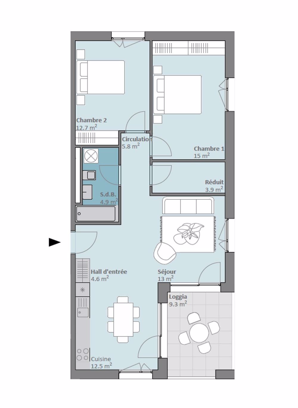
LOT 21 - 3,5 Zimmer zu verkaufen - IM HERZEN VON PRILLYErleben Sie Eleganz und absoluten Komfort in dieser wunderschönen 3,5-Zimmer-Wohnung, ideal im Zentrum von Prilly gelegen.? Errichtet im 2. Stock eines Gebäudes, das nach den letzten Technologien im Bauwesen und raffiniert in seiner Konzeption erstellt wird, verführt dieses seltene Gut durch seinen Raum, seine Helligkeit und seine Erreichbarkeit.Mit seinen 80 m² perfekt durchdachter Wohnfläche bietet diese Wohnung:Zwei geräumige Schlafzimmer für ein optimales WohngefühlEin elegantes Badezimmer und ein sehr praktischer AbstellraumEin 9 m² großer Balkon, der einen wahren Entspannungsraum im Freien bietet, das ganze Jahr über von Licht durchflutetMinergie-GebäudeEine außergewöhnliche AdresseHier zu leben, bedeutet, das Beste von Prilly in Reichweite zu haben:?Die Grund- und Sekundarschulen liegen nur wenige Meter entfernt, Ihre Kinder können dorthin zu Fuß gehen, sicher und ohne Reisebeschränkungen.?Die öffentlichen Verkehrsmittel verbinden das Stadtzentrum von Lausanne in weniger als 10 Minuten, während die Bahnhof Prilly-Malley, die Sportzentren, das Freibad und die Einkaufszentren in wenigen Augenblicken erreichbar sind.Komfort, Modernität und ErreichbarkeitFür einen modernen Lebensstil konzipiert, ist die Wohnung für Familien geeignet und rollstuhlzugänglich. Jedes Detail wurde entworfen, um einen harmonischen Lebensraum zu bieten, der sowohl praktisch als auch prestigeträchtig ist.Ein seltenes LebensumfeldZwischen Urbanität und Serenität ist dieses Appartement die ideale Adresse für diejenigen, die eine höhere Lebensqualität suchen, im Herzen eines dynamischen und gesuchten Viertels. Ein Gut, das nicht aufhören wird, an Wert zu gewinnen!Ein Parkplatz im unterirdischen Garage im Wert von CHF 50'000 kommt zum Preis hinzu.Gesamtpreis: CHF 995'000Lassen Sie diese einzigartige Gelegenheit nicht verpassen!?Kontaktieren Sie uns noch heute, um dieses Immobilienjuwel zu entdecken und sich von der Kunst des Wohnens in Prilly verführen zu lassen.Website der Promotion: https://prillybuissonniere4.chLOSE DER PROMOTION: (16 Wohnungen)ErdgeschossLos 01 - 4,5 Zimmer · 122 m² · 3 Schlafzimmer · Balkon 19 m² · Garten 140 m² · 1 Innenparkplatz · CHF 1'415'000Los 02 - 4,5 Zimmer · 129 m² · 3 Schlafzimmer · Balkon 10 m² · Garten 158 m² · 1 Innenparkplatz · CHF 1'565'000Los 03 - 2,5 Zimmer · 65 m² · 1 Schlafzimmer · Balkon 7 m² · Garten 63 m² · CHF 800'0001. EtageLos 11 - 3,5 Zimmer · 80 m² · 2 Schlafzimmer · Balkon 9 m² · 1 Innenparkplatz · CHF 940'000Los 12 - 4,5 Zimmer · 113 m² · 3 Schlafzimmer · Balkon 10 m² · 1 Innenparkplatz · CHF 1'465'000Los 13 - 2,5 Zimmer · 59 m² · 1 Schlafzimmer · Balkon 7 m² · CHF 690'000Los 14 LUP - 1,5 Zimmer · 42 m² · 1 Schlafzimmer · Balkon 7 m² · CHF 370'0002. EtageLos 21 - 3,5 Zimmer · 80 m² · 2 Schlafzimmer · Balkon 9 m² · 1 Innenparkplatz · CHF 945'000Los 22 - 4,5 Zimmer · 113 m² · 3 Schlafzimmer · Balkon 10 m² · 1 Innenparkplatz · CHF 1'475'000Los 23 - 2,5 Zimmer · 59 m² · 1 Schlafzimmer · Balkon 7 m² · CHF 700'000Los 24 LUP - 1,5 Zimmer · 42 m² · 1 Schlafzimmer · Balkon 7 m² · CHF 380'0003. EtageLos 31 - 3,5 Zimmer · 75 m² · 2 Schlafzimmer · Balkon 6 m² · 1 Innenparkplatz · CHF 1'000'000Los 32 - 4,5 Zimmer · 110 m² · 3 Schlafzimmer · Balkon 7 m² · 1 Innenparkplatz · CHF 1'545'000Los 33 - 2,5 Zimmer · 56 m² · 1 Schlafzimmer · Balkon 7 m² · CHF 740'000Los 34 LUP - 1,5 Zimmer · 40 m² · 1 Schlafzimmer · Balkon 5 m² · CHF 380'000DachgeschossLos 41 - Loft · 105 m² · 2 Schlafzimmer · Terrasse 32 m² · 1 Innenparkplatz · CHF 1'525'000

Kosten

Kaufpreis:
CHF 945'000

Angaben

Objektkategorie
Eigentum
Objektreferenz
ceb04503-fd03-45f9-9c9a-383949721b55
PLZ/Ort
1008 Prilly
Region
Lausanne
Wohnfläche
80 m²
Anzahl Zimmer
3.5
Etage
2
Baujahr
2026

Kontakt

  • Rockwell Properties SA
  • Rue Etraz 12, 1003, Lausanne

Auch inseriert auf:

immoscout24.ch