Wohnobjekt

Proche de la gare, dans un nouveau quartier verdoyant

CHF 520'000

 | 

88 m²

 | 

3.5 Zimmer

Rue de la Vignette 9, 1530 Payerne

Proche de la gare, dans un nouveau quartier verdoyant - Karte
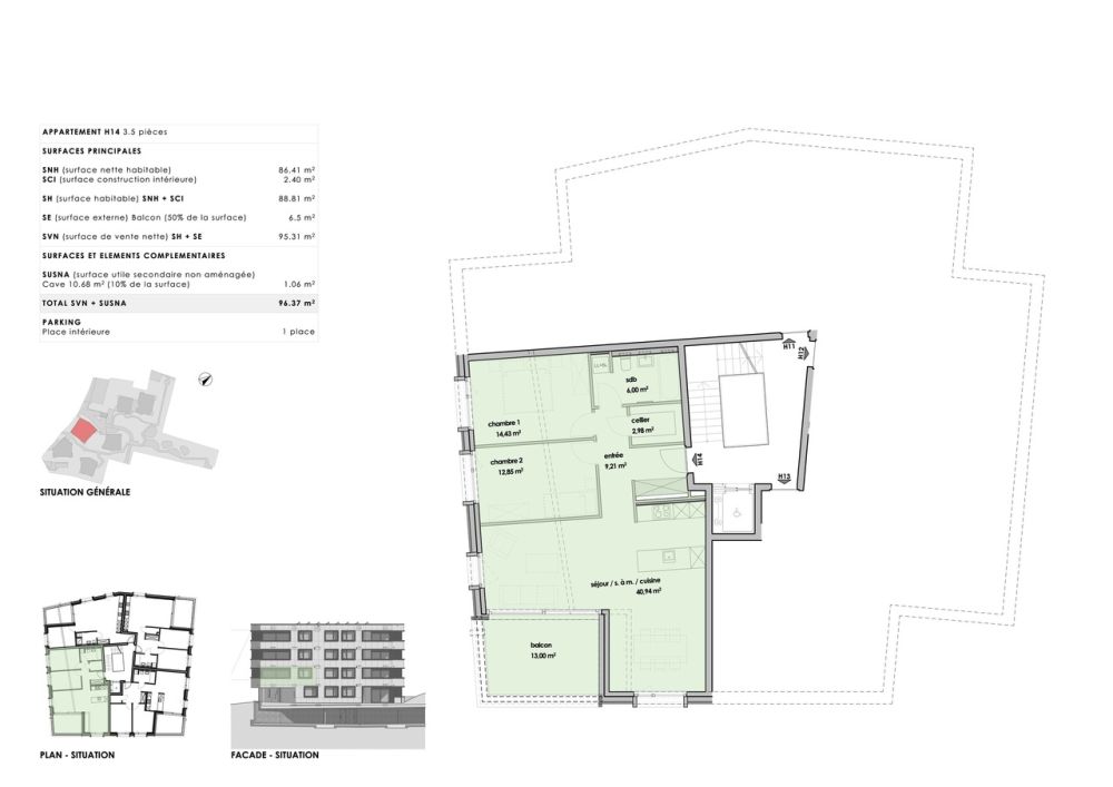
Appartements modernes, de qualité supérieure, très bien équipés, proches de la gare de Payerne, dans un nouvel immeuble résidentiel de 15 appartements aux topologies multiples, parfaitement connectés, implantés au sein d'un grand espace vert central protégé et aménagé, véritable coeur du quartier, comprenant chemins piétons, zones de détente et aires de jeux. Appartement de 3.5 pièces au 1er étage- Espace à vivre de plus de 40m2, cuisine avec îlot, cellier, loggia plein sud- 2 grandes chambres- Salle-de-bain avec baignoire et pré-installation pour une colonne de lavage- Entrée aménagée d'armoires encastrées- Cave- Local vélosLien vers le site dédié de la promotion : https://payerne.maillardimmo.ch/fr

Kosten

Kaufpreis:
CHF 520'000

Angaben

Objektkategorie
Eigentum
Objektreferenz
ae975024-ccd3-40ed-8e11-45730d42fbf8
Adresse
Rue de la Vignette 9
PLZ/Ort
1530 Payerne
Region
Broye-Vully
Wohnfläche
88 m²
Anzahl Zimmer
3.5
Etage
1
Baujahr
2026

Merkmale und Ausstattung

Balkon
Lift
Kinderfreundlich
Rollstuhlgängig

Kontakt

  • Maillard ImmoServices SA
  • Place Saint-Jacques 50, 1680, Romont
  • Nummer Anzeigen

Auch inseriert auf:

homegate.ch