Wohnobjekt

Nouvelle promotion - Le chantier a démarré : duplex de 5.5 pièces avec balcons

CHF 870'000

 | 

139 m²

 | 

5.5 Zimmer

A Orges, 1430 Orges

Nouvelle promotion - Le chantier a démarré : duplex de 5.5 pièces avec balcons - Karte
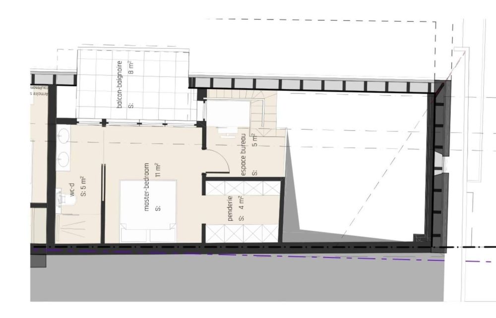
EN EXCLUSIVITE CHEZ BERNARD NICOD SA.Découvrez la nouvelle promotion " Le domaine du Belvédère " qui offre une vue imprenable sur le lac de Neuchâtel et les Alpes. Nichée dans le charmant village d'Orges, elle est orientée plein sud et offre un cadre de vie paisible et verdoyant à tous ses résidents.Situé en bordure de zone agricole, ce projet comprend 8 appartements, une villa individuelle et un local commercial répartis dans 3 bâtiments distincts qui sauront garder le charme et l'authenticité de la ferme existante.Aménagez vos pièces, choisissez la cuisine de vos rêves et finissez votre intérieur selon vos goûts. Votre futur logement sera spacieux, confortable et adapté à votre mode de vie.Cet appartement de 5.5 pièces se situe au 2ème étage et dans les combles, il se compose comme suit :Vous découvrirez une spacieuse entrée équipée de nombreuses armoires murales, un vaste séjour avec cuisine ouverte d'environ 38 m², offrant un accès direct au premier balcon.La partie nuit comprend trois grandes chambres à coucher, dont une de 16 m², ainsi qu'une salle de bains avec baignoire, double lavabo, WC et emplacement pour une colonne de lavage. Un réduit de 3 m² complète ce niveau et offre un espace de rangement très appréciable.Au 2? niveau, se trouve une magnifique suite parentale comprenant un espace bureau ouvert sur le séjour, un grand dressing équipé de quatre armoires, ainsi qu'une salle de douche avec WC et double lavabo. La suite parentale bénéficie également d'un accès direct au second balcon.Une cave et une ou deux places de parc extérieures (CHF 15'000.- l'unité) complètent ce bien. Il est possible de poser une borne de recharge électrique.Des jardins suspendus seront réservés exclusivement aux copropriétaires ce qui est un atout unique et précieux.L'immeuble offre à ses co-propriétaires un carnotzet convivial et chaleureux, idéal pour des moments de partage et de détente. Chaque résident dispose également d'un casier à vin privatif, parfait pour conserver et savourer leurs précieuses bouteilles dans des conditions optimales.L'ensemble des finitions sont aux choix des futurs propriétaires qui profiteront d'agréables budgets mis à leur disposition. Votre logement sera réalisé par des spécialistes aguerris qui seront là pour répondre à toutes vos questions et vous conseiller tout au long du processus de choix. Ils vous guideront et concrétiseront vos souhaits !ATOUTS :- Chaque appartement dispose d'un extérieur, balcon, terrasse ou jardin- Panneaux photovoltaïques pour réduction de vos factures d'énergie- Finitions au choix de l'acheteur- Pompe à chaleur avec sondes géothermiques- Fenêtres triple vitrage- Finitions de qualité- Plein SUD- En bordure de la zone village et longeant la zone agricole protégéeLa construction est réalisée par des artisans régionaux et des matériaux écologiques. La qualité de l'isolation thermique de l'enveloppe correspond aux exigences de Minergie. La production photovoltaïque permet une très forte réduction des coûts de l'énergie consommée. L'eau de pluie sera récupérée et utilisée pour les robinets extérieurs, les WC et les machine à laver le linge.Vente en quote-part terrain pour des frais d'achat réduits !LIVRAISON : novembre 2026Informations et visites ALEXANDRA JEREZ et TANIA LEITE 024 424 24 26

Kosten

Kaufpreis:
CHF 870'000

Angaben

Objektkategorie
Eigentum
Objektreferenz
88d75c1a-1725-4945-b07a-6f28c32b96ff
Adresse
A Orges
PLZ/Ort
1430 Orges
Region
Jura-Nord vaudois
Wohnfläche
139 m²
Anzahl Zimmer
5.5
Etage
2

Merkmale und Ausstattung

Balkon
Parkplatz

Kontakt

Tania Leite et Alexandra Jerez
  • Tania Leite et Alexandra Jerez
  • Bernard Nicod | Yverdon Ventes
  • gibt Ihnen gerne Auskunft.
  • Nummer Anzeigen

Auch inseriert auf:

homegate.ch