Wohnobjekt

Prächtige Doppelhaushälfte mit 5.5 Zimmern in Le Mont-sur-Lausanne (Lot A)

CHF 1'790'000

 | 

5.5 Zimmer

1052 Le Mont-sur-Lausanne

Prächtige Doppelhaushälfte mit 5.5 Zimmern in Le Mont-sur-Lausanne (Lot A) - Karte
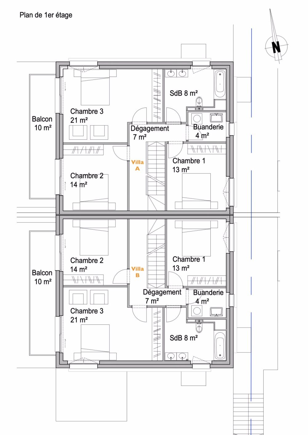
Entdecken Sie diese prächtige Doppelhaushälfte mit 5.5 Zimmern auf den Plänen, gelegen in der charmanten kleinen Stadt Mont-sur-Lausanne. Diese Immobilie verbindet modernen Komfort und Eleganz in einer grünen Umgebung. Höhepunkte der Immobilie : Wohnfläche von 165 m² auf 2 Etagen Grundstück von 700 m² mit großzügigem Außenbereich Wohnvolume von 763 m³ 2 Badezimmer für optimalen Komfort Balkon/Terrasse zum Genießen sonniger Tage Halbe Kelleretage oder optional vollständig Parkplätze und überdachte Autostellplätze Wohnbereiche : -Das Wohnzimmer und das Esszimmer sind offen und schaffen einen hellen und luftigen Wohnbereich, mit großen Fenstern, die einen malerischen Blick auf die grüne Umgebung bieten und Zugang zur Terrasse. -Der Schlafbereich im Obergeschoss mit 3 Schlafzimmern, einem Badezimmer und der Waschküche, um die Arbeit zu erleichtern. -Das Elternschlafzimmer im Dachgeschoss, das geräumig und einladend ist, ein Badezimmer, ein Balkon und insgesamt 59 m² Fußbodenfläche für einen komplett privaten Bereich. -Der Keller, der eine 12 m² große Keller für jedes Wohngebäude bietet- einen 10 m² großen Technikraum einen 7 m² großen Keller Möglichkeit, den Keller vollständig auszubauen (OPTIONAL) Die Villen werden auch mit photovoltaischen Solarpaneelen ausgestattet, die mindestens 20 % des Strombedarfs abdecken, was zu einer größeren Energieautonomie und einer Reduzierung der Kohlenstoffbilanz beiträgt. Die Ausführungen sind vollständig anpassbar, so dass jeder Käufer ein Interieur nach seinem Geschmack schaffen kann. Zusätzlich sind Erweiterungsoptionen wie : -die Erweiterung des Kellers -der Anbau einer Veranda -ein Gartenhäuschen -eine geschlossene Garage Die Genehmigungen, um dies sofort zu tun. Der Bauunternehmer bietet somit maximale Flexibilität, um auf die spezifischen Bedürfnisse jeder Familie einzugehen. Umwelt : Öffentliche Verkehrsmittel Linja 8: Verbindet Le Grand-Mont direkt mit dem Zentrum von Lausanne Linja 54: Verbindet Cheseaux, Crissier und Renens Gare. Linja 60: Bedient auch die Gemeinde und verbindet die verschiedenen Stadtteile von Mont-sur-Lausanne mit dem Zentrum von Lausanne. Ein ideales Wohnambiente Diese Gemeinde verbindet den Charme einer kleinen Stadt und bietet umfassende Dienstleistungen, einschließlich qualitativ hochwertiger Schulen, Nahversorgung und Sport-, Gesundheits- und Kultureinrichtungen. Nähe und Erreichbarkeit Dank seiner privilegierten geografischen Lage ist Le Mont-sur-Lausanne perfekt an die Hauptverkehrsachsen angeschlossen, was es ermöglicht, Lausanne in wenigen Minuten mit dem Auto oder den öffentlichen Verkehrsmitteln zu erreichen. Darüber hinaus erleichtern die nahegelegenen Autobahnanschlüsse die Fortbewegung. Dieses Projekt ist in der Nähe von Dienstleistungen wie Supermärkten, Bäckereien, Metzgern, Apotheken, Fitnessstudios, Kinderärzten und Zahnärzten zwischen Le Mont, Cugy und Romanel-sur-Lausanne.

Verfügbarkeit

Ab Sofort

Kosten

Kaufpreis:
CHF 1'790'000

Angaben

Objektkategorie
Eigentum
Objektreferenz
4144ea81-0c41-46cd-aeed-5382b952307d
PLZ/Ort
1052 Le Mont-sur-Lausanne
Region
Lausanne
Grundstücksfläche
700 m²
Anzahl Zimmer
5.5
Baujahr
2025

Merkmale und Ausstattung

Balkon
Kinderfreundlich

Kontakt

  • Route de Granges 66, 1616, Attalens
  • Nummer Anzeigen

Auch inseriert auf:

homegate.ch