Wohnobjekt

Le Mont-sur-Lausanne - Villa de 5.5 pièces

CHF 1'745'000

 | 

5.5 Zimmer

1052 Le Mont-sur-Lausanne

Le Mont-sur-Lausanne - Villa de 5.5 pièces - Karte
Magnifique villa Ce magnifique projet de deux villas mitoyennes de 5.5 pièces saura séduire des familles désireuses de privilégier le cadre de vie tout en étant proche des commodités et des avantages de la ville.
En lui-même, le projet architectural s'inscrit dans une démarche de respect des normes environnementales les plus récentes avec l'équipement de pompes à chaleur air/eau et des panneaux photovoltaïques produisant au moins 20% des besoins en électricité. L'étiquette énergétique aura la note B tant pour l'efficacité énergétique que pour l'enveloppe du bâtiment.
Rez-de-chaussé (68 m2 )Espace de vie complètement ouvert pour le séjour, la cuisine et la salle à manger. Larges baies vitrées pour accéder à la terrasse et au jardin. Un WC visiteurs.
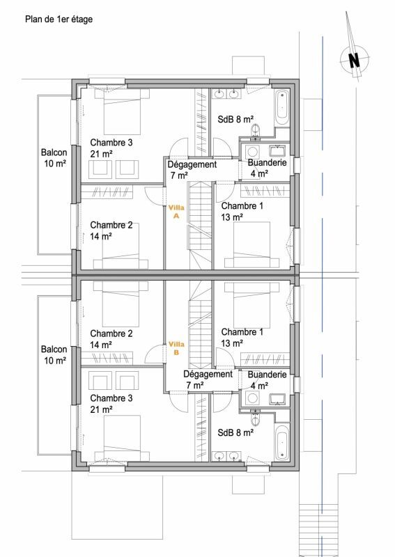
Étage (68 m2)Hall de distribution, trois grandes chambres, une salle de bains et une buanderie. Deux des chambres ont accès à un balcon de 10 m2
Combles (29 m2)Les combles seront rendus bruts. Toutefois, pour un montant de Fr. 45'000.-, ils pourront être complètement équipés pour obtenir une suite parentale de près de 30 m2 avec un accès à un balcon-baignoire de 8 m2.
Sous-solLocal technique, cellier et cave
Villa A - CHF 1'745'000.-Surface habitable 165 m2Surface utilisable 128 m2 dont : comble non-habitable 30 m2, sous-sol 29 m2, terrasse 33 m2, balcons 18 m2, couvert à voiture 18 m2Jardin 460 m2, terrain complet 700 m2, volume 763 m3
------------
Villa B - Réservée
Le chantier démarrera à la vente de la première villa, livraison prévue au printemps 2027.
budget cuisine : Fr. 25'000.-budget sanitaire : Fr. 15'000.-finitions personnalisablespossibilité d'agrandissement du sous-solajout d'une véranda possible pour la villa Aajout possible d'un cabanon pour la villa Aajout possible d'un garage pour la villa Apermis délivré pour ces optionsAppelez Thierry au 079 135 37 02 pour toute question complémentaire ou une visite sur place !

Kosten

Kaufpreis:
CHF 1'745'000

Angaben

Objektkategorie
Eigentum
Objektreferenz
297ccbf6-e635-4177-8503-4f2f06e9cb92
PLZ/Ort
1052 Le Mont-sur-Lausanne
Region
Lausanne
Grundstücksfläche
700 m²
Anzahl Zimmer
5.5
Baujahr
2026

Merkmale und Ausstattung

Balkon
Garage

Kontakt

Thierry Rochat
  • Thierry Rochat
  • Votre Immo, Thierry Rochat
  • gibt Ihnen gerne Auskunft.
  • Nummer Anzeigen

Auch inseriert auf:

homegate.ch