Wohnobjekt

TÜREN AUF BAUSTELLE GEÖFFNET! ZÖGERN SIE NICHT, UNS ZU KONTAKTIEREN

CHF 1'645'000

 | 

102 m²

 | 

4.5 Zimmer

Chemin de Craivavers 7, 1012 Lausanne

TÜREN AUF BAUSTELLE GEÖFFNET! ZÖGERN SIE NICHT, UNS ZU KONTAKTIEREN - Karte
Das Projekt Lausanne Lisière tritt in eine neue Phase ein! Es ist der ideale Moment, um Eigentümer einer contemporary, nachhaltigen und perfekt in Lausanne Chailly gelegenen Wohnung zu werden. Nutzen Sie diese einzigartige Gelegenheit, um sich in einem Lebensumfeld zu projizieren, das Natur, Urbanität und architektonische Qualität verbindet. In einer exklusiven PPE mit nur 2 kleinen Gebäuden mit 4 Wohnungen entdecken Sie diese 4,5-Zimmer- und 5,5-Zimmer-Wohnungen, die Modernität, Komfort und energetische Effizienz verbinden. In einem ruhigen und grünen Viertel werden Sie von den großzügigen Räumen und der atemberaubenden SICHT AUF DEN SEE und die Berge, die diese Wohnungen bieten, begeistert sein. Höhepunkte des Projekts: o
Baubeginn läuft o
Helle, moderne und mit hochwertigen Materialien gebaute Wohnungen o
Ruhiges und grünes Viertel in Lausanne mit allen Annehmlichkeiten in der Nähe Ökologisches Engagement: - Minergie-P-Zertifizierung, Garant für energetische Effizienz und Nachhaltigkeit. - Nutzung der Solarenergie mit Speicherung über integrierte Batterien. Vorteile der Immobilien: Helles und geräumiges Appartement Große Balkone Große private Gärten, ein wahres Idyll Neubau mit Minergie-P-Zertifizierung, garantierend hohe energetische Effizienz Batterien für optimierte Autoverbrauch der Solarenergie Stellplätze verfügbar Vereinfachte Notarkosten und reduzierte Übertragungsrechte, ein unbestreitbarer finanzieller Vorteil Ein privilegiertes Domizil: Gesuchtes und ruhiges Viertel Seeblick und Bergblick Ein paar Minuten zu Fuß von Schulen, Geschäften, Bus und Metro entfernt Schneller Zugang zur Autobahn via Lausanne-Vennes Verpassen Sie diese Gelegenheit nicht! Kontaktieren Sie mich noch heute unter 076 223 50 50, um die vollständige Dokumentation zu erhalten oder eine detaillierte und personalisierte Präsentation des Projekts und Ihrer Finanzierung zu organisieren. Diese neue und effiziente Immobilie bietet eine seltene Gelegenheit in einem idealen Lebensumfeld in Lausanne. Direktverkauf vom Bauunternehmer ohne Zwischenhändler Fertigstellung Sommer 2027 Dorothée Lavieville Geschäftsführerin 076 223 50 50 [email protected] ARTA Sa

Kosten

Kaufpreis:
CHF 1'645'000

Angaben

Objektkategorie
Eigentum
Objektreferenz
c6af678f-efd8-4bf0-bf72-24e0b8a8800a
Adresse
Chemin de Craivavers 7
PLZ/Ort
1012 Lausanne
Region
Lausanne
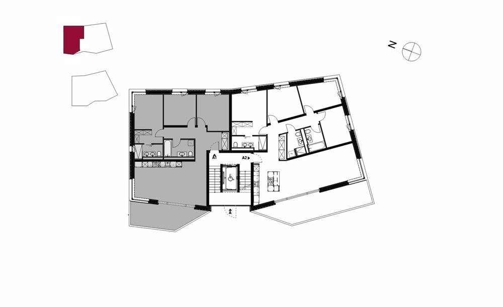
Wohnfläche
102 m²
Anzahl Zimmer
4.5
Etage
EG
Baujahr
2026

Merkmale und Ausstattung

Balkon
Garage
Schöne Aussicht

Kontakt

  • ARTA SA
  • Chemin de Praz 16, 1023, Crissier
  • Nummer Anzeigen

Auch inseriert auf:

homegate.ch