Wohnobjekt

Appartement 4.5 pièces à Lausanne

CHF 1'820'000

 | 

155 m²

 | 

4.5 Zimmer

A Lausanne, 1000 Lausanne 26

Appartement 4.5 pièces à Lausanne - Karte
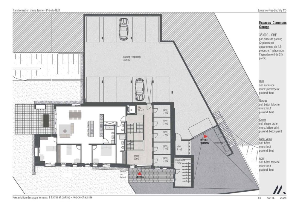
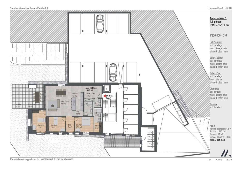
Cet appartement de 4.5 pièces de 155 m2 se situe au rez-de-chaussée, il bénéficie d'une belle terrasse de 40 m2 et un grand jardin.2 places de parc intérieures complète ce bien.Prix appartement : CHF 1'820'000.-2 places de parc : CHF 70'000.-Prix total : 1'890'000.-

Verfügbarkeit

Bezugstermin:
30. Juni 2026

Kosten

Kaufpreis:
CHF 1'820'000

Angaben

Objektkategorie
Eigentum
Objektreferenz
b972cadb-fbec-4e87-ab39-3886cce76d96
Adresse
A Lausanne
PLZ/Ort
1000 Lausanne 26
Region
Lausanne
Wohnfläche
155 m²
Anzahl Zimmer
4.5
Etage
EG

Merkmale und Ausstattung

Parkplatz

Kontakt

  • Régie Duboux SA | Lausanne
  • Rue du Petit-Chêne 26, 1003, Lausanne
  • Nummer Anzeigen

Auch inseriert auf:

homegate.ch