Wohnobjekt

4 villas jumelées par les garages neuves à vendre à Grens dès CHF 1"950"000.–

CHF 1'950'000

 | 

5.5 Zimmer

Route de Chéserex, 1274 Grens

4 villas jumelées par les garages neuves à vendre à Grens dès CHF 1"950"000.– - Karte
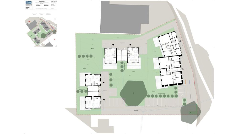
Une nouvelle promotion résidentielle à Grens, dans le cadre d’un projet de construction de 2 x 2 villas jumelées par les garages, alliant confort actuel, prestations soignées et choix de finitions selon budgets prévus.
Prix dès CHF 1’950’000.– à CHF 2’050’000.-
Une nouvelle réalisation résidentielle à Grens
ALTAG-Constructions vous propose à Grens une nouvelle promotion de 4 villas jumelées par les garages, individuelles selon le morcellement du terrain selon plan de situation. Cette réalisation a été pensée pour offrir des espaces généreux, des prestations techniques actuelles et un cadre de vie agréable.
Les villas proposent une surface PPE de 152.96 m² chacune, avec des prix de vente allant de CHF 1’950’000.– à CHF 2’050’000.– selon les lots. Cette nouvelle affaire s’adresse aux acquéreurs recherchant une villa neuve à Grens, avec une organisation intérieure adaptée à une vie quotidienne confortable et à un achat patrimonial durable.
Les atouts du projet
4 villas jumelées par les garages
Villas individuelles selon le morcellement du terrain selon plan de situation
Surface PPE par villa : 152.96 m²
Sous-sol avec hall, local technique, 2 caves et disponible
Rez-de-chaussée avec hall, armoire, WC séparé, cuisine ouverte et séjour-salle à manger
Étage avec 3 chambres, dressing, salle de douche, salle de bain-douche et balcon
Grenier non chauffé sur le garage
Terrasse et jardin selon plan de situation
Chauffage par pompe à chaleur air-eau avec panneaux solaires
Chauffage au sol
Fenêtres et portes-fenêtres en PVC triple vitrage
Stores commandés électriquement
1 garage par villa, avec 2 places de parc selon la configuration et les plans du projet
Terrains clôturés avec portail pour jardin et terrasse
Des prestations actuelles et soignées
Le projet bénéficie notamment d’un système de chauffage moderne par pompe à chaleur air-eau avec panneaux solaires, d’un chauffage au sol, de fenêtres à triple vitrage et de stores électriques. Ces prestations répondent à une recherche de confort, de fonctionnalité et de qualité constructive.
Les acquéreurs pourront également choisir plusieurs éléments de finition en plus-values selon descriptif, notamment les cuisines, les appareils sanitaires, les peintures, les carrelages et les parquets, selon les budgets prévus et l’état d’avancement du chantier. Cette souplesse permet d’envisager une villa plus personnalisée, tout en conservant une base technique cohérente et qualitative. Le descriptif prévoit notamment un budget de CHF 28’000.– pour la cuisine et de CHF 18’000.– pour les appareils sanitaires par villa.
Un cadre de vie pensé pour le confort au quotidien
Cette promotion réunit plusieurs qualités particulièrement recherchées : des villas bien distribuées, une surface confortable, des équipements techniques actuels et des extérieurs privatifs avec terrasse, jardin et balcon selon plans. Le projet répond aussi bien aux attentes de familles qu’à celles d’acquéreurs recherchant une villa neuve de qualité à Grens.
Avec une surface PEE de 152.96 m² par villa, cette nouvelle promotion propose une offre cohérente, capable de répondre à différents besoins résidentiels tout en maintenant une cohérence d’ensemble dans le positionnement du projet.
Pourquoi demander le dossier du projet ?
Recevez les plans, le descriptif, les prix, les informations détaillées du projet et les éléments nécessaires pour étudier sereinement votre futur achat. Notre équipe vous renseigne rapidement sur les villas proposées et les prochaines étapes.
Demander la brochure Recevoir les plans avec les m2 de jardin, la PPE, les prix et le descriptif Planifier une visite
Contact
ALTAG-Constructions Route de la Bellangère 13 1271 Givrins Alain Tagini +41 79 772 65 80 [email protected] www.altag-constructions.ch

Verfügbarkeit

Verfügbar ab:
13. April 2026

Kosten

Kaufpreis:
CHF 1'950'000

Angaben

Objektkategorie
Kauf
Objektreferenz
9635e2f6-f41f-4267-bd3f-765bece37468
Adresse
Route de Chéserex
PLZ/Ort
1274 Grens
Region
District de Nyon
Anzahl Zimmer
5.5

Merkmale und Ausstattung

Balkon
Garage
Parkplatz

Kontakt

Alain TAGINI
  • Alain TAGINI
  • WK Immobilier Sàrl
  • gibt Ihnen gerne Auskunft.
  • Nummer Anzeigen

Auch inseriert auf:

homegate.ch