Wohnobjekt

Gelegenheit zum Handeln - 3,5-Zimmer-Wohnung mit Loggia

CHF 725'000

 | 

74 m²

 | 

3.5 Zimmer

1422 Grandson

Gelegenheit zum Handeln - 3,5-Zimmer-Wohnung mit Loggia - Karte
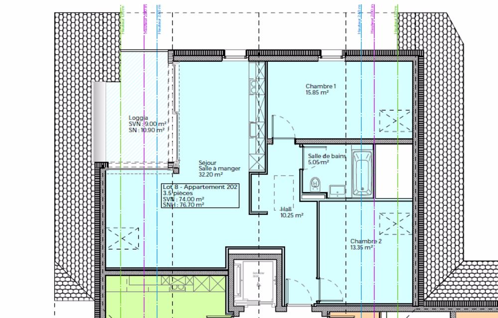
KREAL Immobilier bietet Ihnen diese 3,5-Zimmer-Wohnung in einer neuen Promotion von 9 Wohnungen in PPE an, die sich in einem ruhigen Wohnviertel in Champagne befindet, nur wenige Minuten vom See entfernt und im Herzen einer grünen Umgebung. Das Projekt wurde entwickelt, um den Bewohnern einen hervorragenden Lebenskomfort zu bieten, während es den aktuellen Energiestandards entspricht.Das Gebäude, dessen Fertigstellung für Oktober 2025 geplant ist, wird mit einem Fußbodenheizungssystem ausgestattet sein, das von einer Luft-Wasser-Wärmepumpe gespeist wird, was eine sanfte und homogene Wärme in jeder Wohnung gewährleistet. Drei-Scheiben-Fenster sorgen für eine optimale thermische und akustische Isolierung, während Photovoltaik-Solarmodule die Installationen ergänzen. Ein Aufzug erleichtert den Zugang zu den Etagen, und jede Wohnung verfügt über ein Türsprechsystem sowie individuelle Thermostate in jedem Raum, was eine personalisierte Steuerung der Heizung ermöglicht.Diese Wohnung befindet sich im letzten Stock des Gebäudes und bietet eine Wohnfläche von etwa 74 m². Sie besteht aus einer voll ausgestatteten offenen Küche, die auf einen hellen Wohnbereich führt, zwei Schlafzimmern mit schöner Größe, einem Badezimmer und einem geräumigen Dachboden, der direkt von der Wohnung aus zugänglich ist. Dieser zusätzliche Raum bietet verschiedene Möglichkeiten für eine Anpassung an Ihre Bedürfnisse.Eine Loggia ergänzt dieses Objekt, die direkt vom Wohnzimmer/Esszimmer aus zugänglich ist, ideal, um einen privaten Außenbereich in Ruhe zu genießen.Die zukünftigen Eigentümer profitieren auch von einem privaten Keller, einem Fahrradraum und einer gemeinsamen Waschküche. Ein Innenparkplatz ist verfügbar (CHF 20'000.- zusätzlich zum Verkaufspreis), mit der Option, eine Ladestation für Elektrofahrzeuge zu installieren.Möchten Sie dieses Traumobjekt entdecken? Kontaktieren Sie uns ohne Verzögerung.

Kosten

Kaufpreis:
CHF 725'000

Angaben

Objektkategorie
Eigentum
Objektreferenz
2928f1c8-7e51-41fe-bfeb-82e79eea8ab9
PLZ/Ort
1422 Grandson
Region
Jura-Nord vaudois
Wohnfläche
74 m²
Anzahl Zimmer
3.5
Baujahr
2025

Merkmale und Ausstattung

Schöne Aussicht

Kontakt

  • Kreal Immobilier SA
  • Rue du Lac 16B, 1020, Renens VD
  • Nummer Anzeigen

Auch inseriert auf:

immoscout24.ch