Wohnobjekt

Neubau, 3.5 Zimmer mit Garten und Terrasse

CHF 1'025'000

 | 

78 m²

 | 

3.5 Zimmer

Place du Tilleul, 1026 Denges

Neubau, 3.5 Zimmer mit Garten und Terrasse - Karte
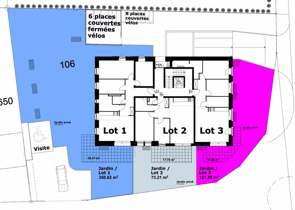
Wir haben die Freude, Ihnen eine seltene Gelegenheit anzubieten, eine wunderschöne 3.5-Zimmer-Wohnung PPE (ca. 78m2 Wohnfläche, Lot 3) mit Garten (ca. 120m2, Süd- und Ostausrichtung) in einer neuen Wohnanlage im Zentrum des Dorfes Denges zu erwerben. Dieses Gebäude (mit Tiefgarage) mit 9 Wohnungen wird auf einem schönen Grundstück (überwiegend Südausrichtung) in einer ruhigen Umgebung in der Nähe aller Annehmlichkeiten errichtet. Diese Neubau besteht in der kompletten Sanierung eines ländlichen Dorfhauses. Die Wohnungen, von Studios bis 4,5 Zimmern mit Balkonen oder Gärten, werden von einem guten ökologischen Ertrag profitieren, dank einer Wärmepumpe und Photovoltaikpaneelen. Die Qualitätsausführungen werden nach dem Wunsch des Käufers und dem Vertragsentwurf der Gesamtausführung erfolgen. Der Baubeginn ist für Herbst 2025 geplant, die Fertigstellung für April/Mai 2027. Der Verkaufspreis von CHF 1'025'000 enthält einen Keller und einen Parkplatz. Wir freuen uns, Ihnen bei einem Treffen weitere Informationen über dieses Projekt zu geben.

Kosten

Kaufpreis:
CHF 1'025'000

Angaben

Objektkategorie
Eigentum
Objektreferenz
56c8b523-2a8e-4c64-95e0-058792fb4f3b
Adresse
Place du Tilleul
PLZ/Ort
1026 Denges
Region
Morges
Wohnfläche
78 m²
Anzahl Zimmer
3.5
Etage
EG
Baujahr
2027

Merkmale und Ausstattung

Balkon
Lift
Garage
Schöne Aussicht
Rollstuhlgängig

Kontakt

  • FG Invest SA
  • Chemin de Grassiaz 2, 1112, Echichens
  • Nummer Anzeigen

Auch inseriert auf:

homegate.ch