Wohnobjekt

Nouvelle promotion : appartement neuf de 4.5 pièces

CHF 715'000

 | 

78 m²

 | 

4.5 Zimmer

A Corcelles-sur-Chavornay, 1374 Corcelles-sur-Chavornay

Nouvelle promotion : appartement neuf de 4.5 pièces - Karte
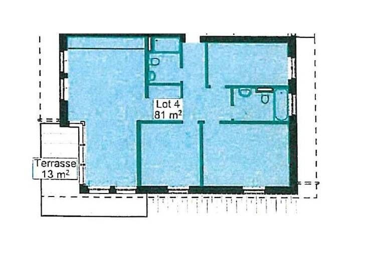
NOUVELLE PROMOTION A CORCELLES-SUR-CHAVORNAYCet appartement de 4.5 pièces se situe au 1er étage de l'immeuble A. Il offre une surface habitable d'environ 81 m2 et est conçu pour offrir un espace de vie confortable et fonctionnel.L'appartement dispose d'un balcon de 13 m2.Il se compose comme suit :Un hall d'entrée avec armoires murales. La partie jour avec le séjour/cuisine donnant accès au balcon et une salle de douche/WC. La partie nuit se compose de deux chambres à coucher, un bureau et une salle de bains avec WC.L'immeuble propose également d'autres commodités pour les résidents, telles qu'un parking souterrain, une buanderie commune et un local vélo.Deux places de parc intérieures (30'000 CHF l'unité en sus), ainsi qu'une cave complètent ce bien. Livraison : environ septembre 2026Finitions au choix de l'acquéreurVente en quote-part terrain pour des frais d'achat réduits !INFORMATIONS ET VISITES : ALEXANDRA JEREZ et TANIA LEITE : 024 424 24 26

Kosten

Kaufpreis:
CHF 715'000

Angaben

Objektkategorie
Eigentum
Objektreferenz
823e7156-0c63-43a9-9e77-bb9ec148aa7d
Adresse
A Corcelles-sur-Chavornay
PLZ/Ort
1374 Corcelles-sur-Chavornay
Region
Jura-Nord vaudois
Wohnfläche
78 m²
Anzahl Zimmer
4.5
Etage
1
Baujahr
2026

Merkmale und Ausstattung

Balkon
Lift
Parkplatz

Kontakt

Tania Leite et Alexandra Jerez
  • Tania Leite et Alexandra Jerez
  • Bernard Nicod | Yverdon Ventes
  • gibt Ihnen gerne Auskunft.
  • Nummer Anzeigen

Auch inseriert auf:

homegate.ch