Wohnobjekt

Neue Promotion: Neuwertiges 4.5-Zimmer-Apartment

CHF 790'000

 | 

78 m²

 | 

4.5 Zimmer

1374 Corcelles-sur-Chavornay

Neue Promotion: Neuwertiges 4.5-Zimmer-Apartment - Karte
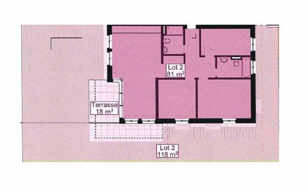
NEUE PROMOTION IN CORCELLES-SUR-CHAVORNAY Dieses 4.5-Zimmer-Apartment befindet sich im Erdgeschoss des Gebäudes A. Es bietet eine Wohnfläche von etwa 81 m2 und ist darauf ausgelegt, einen komfortablen und funktionalen Lebensraum zu bieten. Das Apartment verfügt über eine Terrasse von 17 m2 und einen Garten von 118 m2. Es besteht aus: Einem Eingangsbereich mit Einbauschränken. Der Tagbereich mit Wohnzimmer/Küche bietet Zugang zur Terrasse und zum Garten und einem Duschbad/WC. Zwei Schlafzimmern, einem Büro und einem Badezimmer/WC. Das Gebäude bietet auch weitere Annehmlichkeiten für die Bewohner, wie eine Tiefgarage, eine gemeinsame Waschküche und einen Fahrradraum. Zwei Innenparkplätze (30'000 CHF pro Einheit zusätzlich) sowie ein Keller vervollständigen dieses Objekt. Corcelles-sur-Chavornay ist ein Dorf im Jura-Nord vaudois, das eine grüne Umgebung und eine ideale Lebensqualität bietet. Nur 3 Minuten von Chavornay, 15 Minuten von Yverdon-les-Bains und 30 Minuten von Lausanne entfernt, verbindet es Ruhe und städtische Nähe. Es verfügt über alle wesentlichen Annehmlichkeiten. Fertigstellung: etwa September 2026 Ausführung nach Wunsch des Käufers Verkauf in Erbpacht zur Reduzierung der Kaufkosten! INFORMATIONEN UND BESICHTIGUNGEN: ALEXANDRA JEREZ 079 945 43 90 und TANIA LEITE 076 577 34 32

Kosten

Kaufpreis:
CHF 790'000

Angaben

Objektkategorie
Eigentum
Objektreferenz
21ec6061-32d0-4269-9e69-a27d9f284b98
PLZ/Ort
1374 Corcelles-sur-Chavornay
Region
Jura-Nord vaudois
Wohnfläche
78 m²
Anzahl Zimmer
4.5
Etage
EG
Baujahr
2026

Merkmale und Ausstattung

Lift

Kontakt

  • Rue de la Plaine 42, 1400, Yverdon-les-Bains
  • Nummer Anzeigen

Auch inseriert auf:

homegate.ch