Wohnobjekt

En exclusivité - "Domaine des Perrières" dernier Lot disponible !

CHF 2'300'000

 | 

96 m²

 | 

3.5 Zimmer

1296 Coppet

En exclusivité - "Domaine des Perrières" dernier Lot disponible ! - Karte
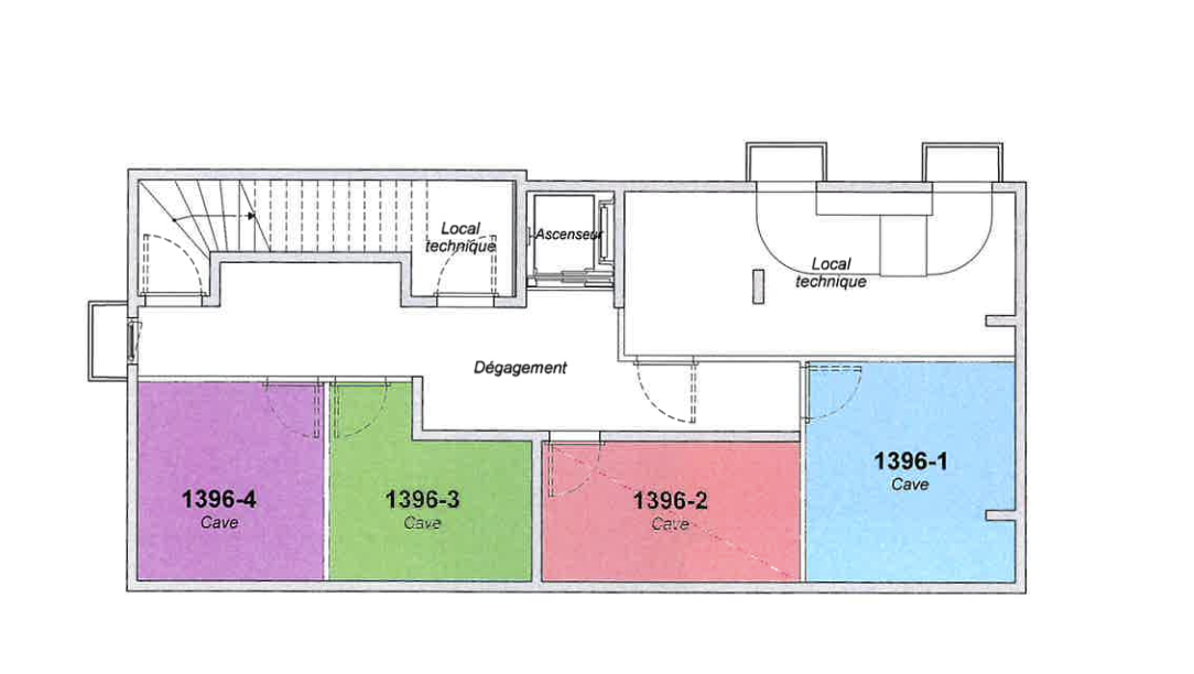
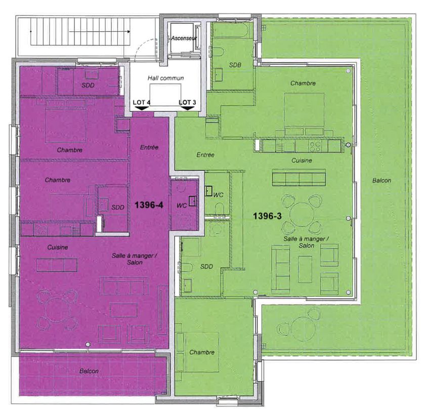
Venez découvrir cette promotion exclusive de de 4 appartements de haut standing dans le recherché quartier des Perrières à Coppet. Vous bénéficierez de beaux espaces intérieurs et extérieurs.Idéalement situés, non loin du lac, ils offrent un cadre de vie paisible et privilégié, tout en restant proches des commodités facilitant ainsi le quotidien des résidents.Le dernier appartement de 3,5 pièces offre:Descriptif:- 2 chambres à coucher- 2 salles de bain- 1 wc visiteur- 1 cuisine ouverte- 1 salon /salle à mangerAvantages:- Grande terrasse avec très belle vue lac- Grandes baies vitrées offrant une luminosité optimale et une vue dégagée sur la nature environnante- Plage de Coppet 5 min à pied- Gare 5 min à piedsNe manquez pas cette opportunité unique de devenir propriétaire d'un appartement de standing au sein du Domaine des Perrières, alliant confort moderne et cadre de vie privilégié.Place de parking en sus:-Box simple : CHF 50'000.--Box double : CHF 100'000.-Livraison prévue automne 2026.

Kosten

Kaufpreis:
CHF 2'300'000

Angaben

Objektkategorie
Eigentum
Objektreferenz
a603caec-0ae6-453a-90ff-c9e13394716d
PLZ/Ort
1296 Coppet
Region
District de Nyon
Wohnfläche
96 m²
Anzahl Zimmer
3.5
Etage
2
Baujahr
2025

Merkmale und Ausstattung

Schöne Aussicht

Kontakt

MC Properties
  • MC Properties
  • MC Properties
  • gibt Ihnen gerne Auskunft.
  • Nummer Anzeigen

Auch inseriert auf:

homegate.ch